文章详情
Under The Sea餐吧,俄罗斯 / DA bureau
137****7830
案例

2023-03-29

1
202

Under the Sea(在海底)位于圣彼得堡历史街区中心,是一家小型寿司餐吧。

Under the Sea is a small sushi bar in the historical center of Saint – Petersburg.

▼项目概览,Overall view ©Sergey Melnikov

客户希望拥有一个在视觉和建造上都具有独特性的项目。最初,他们只提供了餐厅的名字——Under the Sea(在海底),以及位于历史建筑中的一处110平方米的空间。这是设计的最初起点。

Our clients came to us with an idea to make something unusual in visual and construction terms. They only had the name of the restaurant – Under the Sea and 110 sq.m. space in a historical building. It was our starting point.

▼主用餐空间,Main dining area ©Sergey Melnikov

空间中的一个优势是它的天花板高度,因此设计者决定将它作为整个空间的视觉焦点,同时放置一些关键性的结构——这便是天花板下方巨大木质结构的由来。该结构由40多个木块组成,其造型犹如巨大的多边形波浪,这使得用餐的顾客犹如置身于虚拟的水面之下——类似的体验也呼应了餐厅的名字——Under the Sea。

One of the advantages of the space was its ceiling height, so we decided to use it as a visual magnet of the whole space and place some key structure there. This is how the massive wooden structure under the ceiling appeared. This construction consists of more than 40 wooden pieces and refers us to a huge polygonal wave, so visitors sit under metaphorical water. And this is a reference to the restaurant’s name – Under the Sea.

▼巨大的木质结构成为整个空间的焦点,The massive wooden structure becomes the focus of the whole space ©Sergey Melnikov

▼木质结构带来波浪般的观感,Waves formed by the wooden structure ©Sergey Melnikov

作为视觉的参照,设计结合了日本和斯堪的纳维亚的极简主义。设计者想要做出极度干净和简约的设计,以此将视觉重点聚焦在食物上而不是在装潢上——这是为什么空间的墙面都被粉刷成了白色、所有功能性元素都是由不锈钢制作而成、定制的桌子和白色的餐具,都在强调餐厅的餐品。

As a visual reference, we took a combination of Japanese and Scandinavian minimalism. We wanted to make really clean and simple design, that would help to make the main focus on food, not on the decor – that’s why the entire walls are just painted white, all the functional elements are made of stainless steel, custom-made tables with white tabletops emphasizes dishes of this place.

▼极简的白色墙面,Wall painted in white ©Sergey Melnikov

▼不锈钢材质的功能性元素,Functional elements made by stainless steel ©Sergey Melnikov

▼定制的桌子,Custom-made tables ©Sergey Melnikov

本项目面临的主要问题是天花板的结构:由于这个空间属于历史建筑的一部分,它的结构非常的脆弱,并且承受不住任何重物。所以设计者建造了一个巨大的金属笼子来解决这个问题,从而使得承重结构从天花板转移到了金属笼子的侧边。金属笼子后续被石膏墙所覆盖。

With the ceiling structure we faced the main problem: since the space is a part of a historical building – its constructions were very weak and couldn’t carry anything heavy on the ceiling. A huge metallic cage was constructed all over the space and this solution let us move load from ceiling to side elements of the cage. Later on, the cage was covered by the plaster walls.

▼笼状天花板结构,Cage-like ceiling structure ©Sergey Melnikov

▼木质结构细节,Details of the wooden structure ©Sergey Melnikov

▼餐厅卫生间,Toilet of the restaurant ©Sergey Melnikov

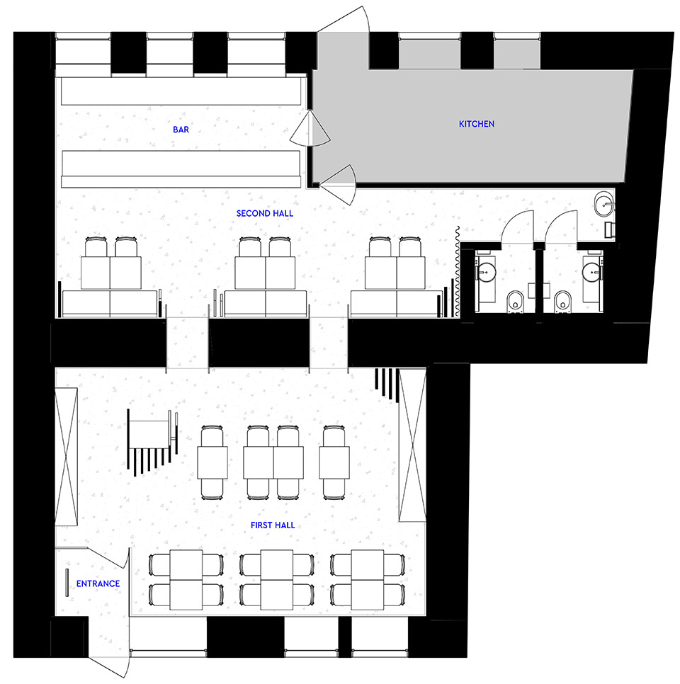
▼首层平面图,plan ©DA bureau

DA bureau – Anna Lvovskaia, Boris Lvovskiy, Fedor Goreglyad, Maria Romanova
Project team – Anna Lvovskaia, Boris Lvovskiy, Fedor Goreglyad, Maria Romanova, Julia Gritsuk
Location – Russia, Saint-Petersburg, Vosstaniya st 23 Year of implementation – 2019
Area – 90 m2
Timescales – 7 months
Photography – Sergey Melnikov