2025-11-06

中兴傲舍
AUTHOR
与空间共写的叙事诗
“AUTHOR”——从命名开始,这座建筑便向每一位踏入者递出了一支隐形的笔。设计师琚宾以“作者”为喻,将空间从静态的客体转化为可被书写、可被参与的创作场域,使建筑不再仅被观赏,而是与人共同完成一场动态的精神合著。


建筑外立面以绿色凹面结构勾勒出柔和的波动,曲线赋予体块生动的流动感。透明玻璃与金属格栅的巧妙组合,模糊了内与外的界限,邀请自然光与城市景致悄然渗入,使建筑既独立自信,又向环境温和敞开。

室内,线条成为空间的语言。流畅动线与适度留白共同谱写出舒展的节奏,设计在收放之间掌握着精准的分寸,既引导行为,也给予探索的自由。格栅作为关键语素,被重新组合为可渗透的立面与天花。当阳光穿过,光影与结构展开即兴对话,空间因而具备了时间的维度——每一刻的光影,每一次的凝视,都成为独一无二的片段。

一道延展的背景墙与几何楼梯共同构筑了空间的视觉锚点。纵深的结构语言增强了场景的张力,光影在其间安静流淌,营造出沉静而平衡的基调。与此同时,天花的层次与立面的秩序交错共舞,结构的理性美学成为艺术的容器。设计的克制与留白,并非空洞,而是为思考腾出余地,让人在行走中感知建筑的呼吸。




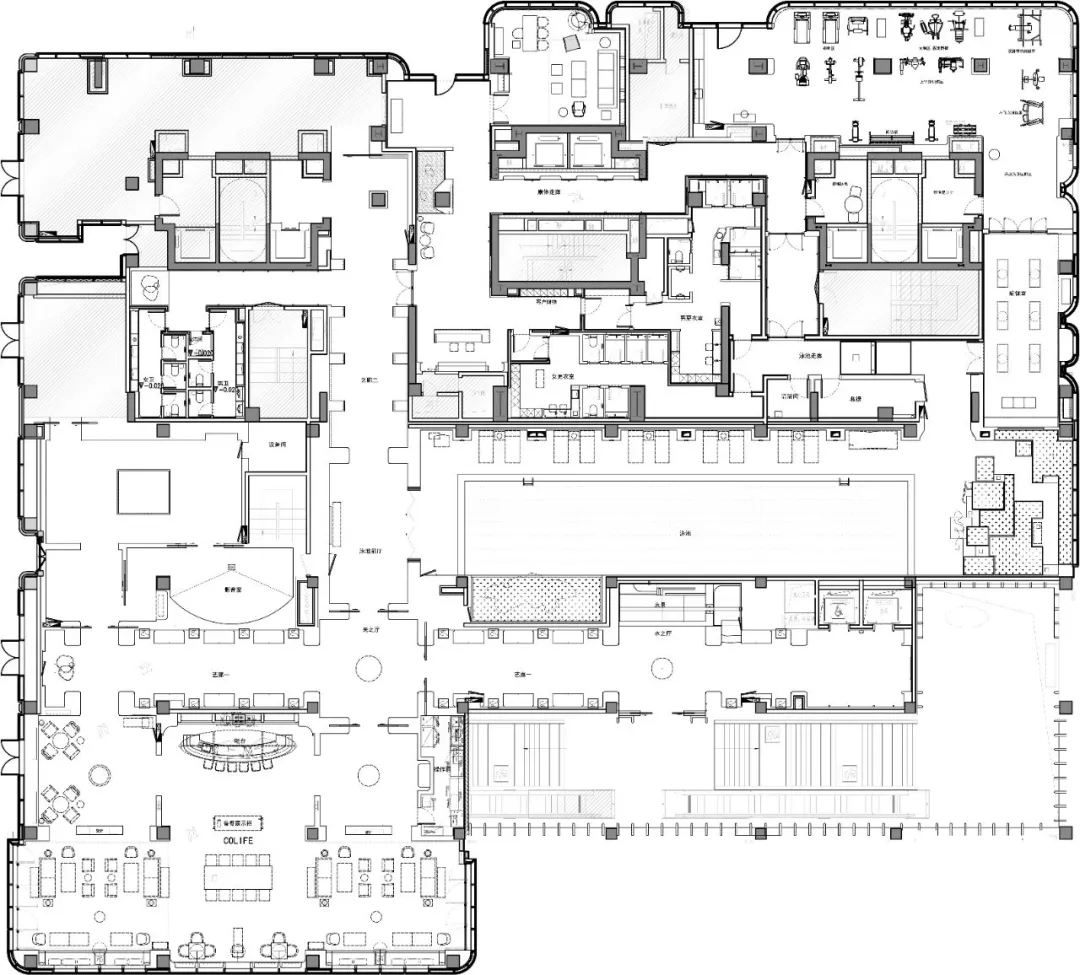
步入二层展厅,线性布局建立起清晰的秩序,为每件艺术品提供了恰如其分的展示尺度。微妙的布局变化与通透的隔断,在序列感中保留了游走的张力,使艺术体验沉浸而私密。

真正的艺术体验,不止于视觉的瞬间,更在于离场后的回响与思绪的延展。基于此,空间被构想为“城市客厅”。会客区、酒吧区与洽谈区以开放布局无缝衔接,各功能区在流动中保持独立,在秩序中蕴含自由,构建出层次丰富且礼序得体的社交图谱。




空间整体对称,彰显稳定感;局部则通过材料、色彩与尺度的细腻调控,注入人文温度。无论是独处冥思,还是社交畅谈,空间都以一种近乎无声的包容,支持着不同情绪的切换。



深棕色背景墙与壁炉共同构成洽谈区的温暖核心,营造出适于深度交流的舒缓氛围。酒廊与餐厅无缝衔接,低饱和的色调与温润的材质共同诠释着现代生活中的“烟火气”。各洽谈区在相似的功能下展现细微的设计变化,满足多元审美与场景需求——或静坐阅读,或凭窗品茗,每个人都能在此找到属于自己的叙事节奏。

泳池畔,绿植延伸了自然的边界,与水景形成生态呼应。碧色理石墙面与水体协调共生,强化了人与自然的感官联结。














在AUTHOR | 中兴傲舍,设计始终回归真实的生活现场,而非形式的堆砌。艺术在此找到了落脚点,并赋予生活更深的精神维度。它向每一位到访者发出邀请:体验,不仅是感知环境,更是一场对生活方式的探索,一次自我与空间的真诚对话。在这里,每个人都是自己体验的“作者”。



项目信息
项目名称:AUTHOR | 中兴傲舍
项目设计:HSD水平线设计 琚宾
项目空间:1980㎡
设计类型:售楼处

琚宾
室内设计师、建筑师
琚宾,中国当代极具影响力的室内设计师与建筑师,以其独特的东方美学视角和跨文化的设计思维,在业界享有盛誉。作为水平线设计品牌的创始人兼首席创意官,他的作品超越了单纯的风格界定,游走于建筑、室内、产品与艺术之间,致力于探寻空间与人文、历史与当下的深层连接。
琚宾的设计语言根植于深厚的中国传统文化,但他并非简单地复制古典符号,而是以现代的设计手法进行解构与转译。他擅长运用光线、材料、以及留白艺术,营造出宁静、内省且富有诗意的空间氛围。在他的作品中,常见对景、借景等传统造园手法与现代极简主义线条的巧妙融合,使空间不仅满足功能需求,更成为可观、可游、可居的精神栖居地。
他的代表作,如“糖舍”阳朔阿丽拉酒店,将废弃的老糖厂建筑与现代酒店功能完美结合,在保留历史痕迹的同时注入当代活力,成为地域文化再生的典范。此外,诸如“西塘Næra”良壤酒店、“竹衣” 等系列作品,也都深刻体现了其对材料本性、工艺细节以及空间叙事性的极致追求。
琚宾屡获国内外权威大奖,其设计理念与实践深刻影响了年轻一代设计师。他通过作品持续探讨“传统的当代性”这一命题,不仅重塑了东方美学在现代设计中的表达方式,更推动了具有中国人文精神的设计走向世界舞台。
-END-
图片和文案来源网络,版权归原作者所有,如有侵权请联系删除~