2026-01-05
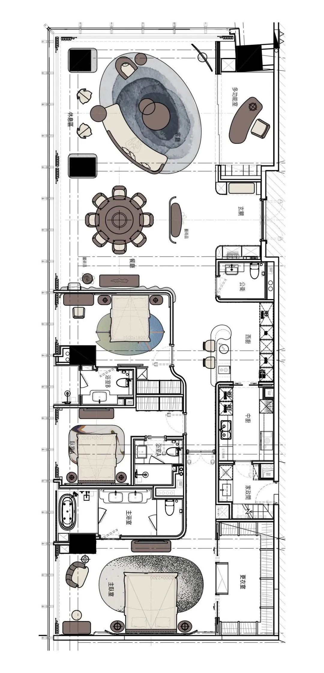
在390㎡的空间中,邱德光进行了一场大胆的美学融合。他以白色为基调,摒弃传统巴洛克的繁复,用简化的造型与流动的曲线,构筑了一个兼具西方艺术神韵与东方哲学意境的家。

空间以浮雕般的线性元素勾勒轮廓,从玄关延伸至内部,形成动态的视觉引导。设计核心在于“山水意境”的现代化转译:圆形吊顶象征“海纳百川”,朦胧的墙面肌理宛如水墨,而大面积落地窗引入的光影,则成为最自然的动态画卷。


设计师彻底打破僵硬的隔断,以流畅的弧形动线串联各功能区。客厅作为中心,向四周自然发散。弧形吊顶、圆润的转角、乃至花瓣造型的餐椅与吊灯,皆以柔和的曲线力量,赋予空间行云流水般的整体感与生命力。




西厨巧妙地隐于转角,嵌入式酒柜彰显现代简练美学。卧室通过旋转门保持私密与通透的平衡。偶尔点缀的青蓝色,如山水画中的石青,瞬间点亮素雅空间。








在这处居所中,邱德光举重若轻。他并未堆砌风格符号,而是以当代设计语言——干净的线条、柔和的形态、留白的意境——重新诠释了巴洛克的动感与东方的内敛。最终,一个仿佛自然生长、充满呼吸感与诗意栖居感的家,从容呈现。






关于设计师
邱德光
邱德光是中国设计界领军人物,被誉为“新装饰主义大师”。他创立邱德光设计事务所,以独特的艺术融合风格深刻影响了中国高端居住美学。
其核心设计哲学在于将西方古典艺术精神(如巴洛克、洛可可)与东方意境哲学(山水、留白)进行当代转译,开创了奢华感与艺术性并重的“新装饰主义”风格。他的作品以流动的曲线、雕塑感的空间和戏剧性的视觉效果著称,强调“空间是可居住的艺术”。
作为行业标杆,邱德光的作品兼具极高的商业价值与艺术价值,是顶级豪宅与地产项目的重要设计范本,代表了当代中国室内设计融合东西、贯通古今的卓越水准。
-END-
图片和文案来源网络,版权归原作者所有,如有侵权请联系删除~
欧模网,成立于2007年,是国内专业的3D模型下载网站,
致力于为建筑、室内、家具、3D设计师提供高品质,
高精度的3D模型以及其他相关设计素材。