2026-02-04
一位成功企业家在家乡黑森林打造梦想家园,其商业生涯期间完成地块选定与建筑成型,退休后专注于家居设计,建筑师Ippolito Fleitz Group全程陪伴其完成室内设计之旅。
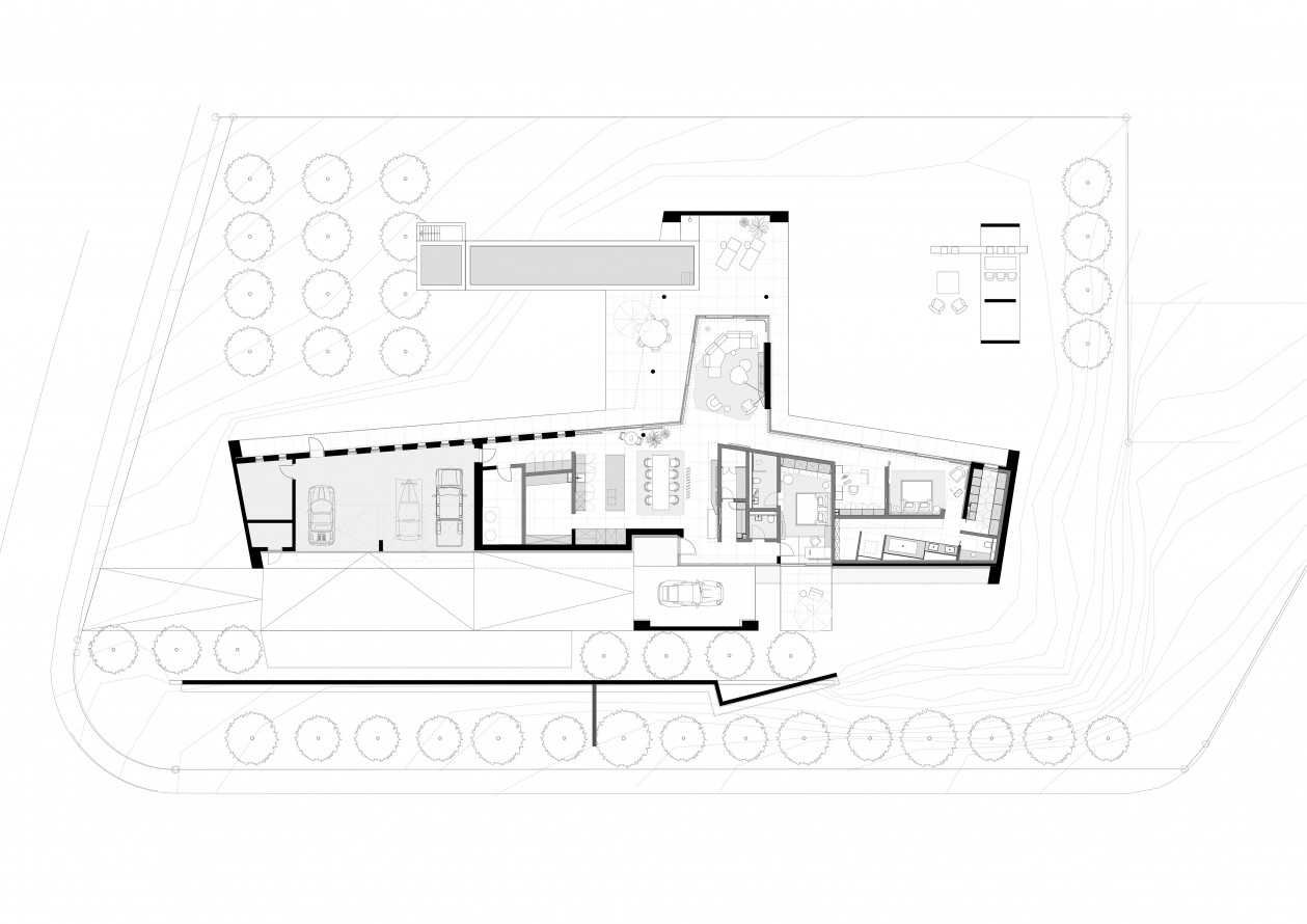
建筑设计由Thomas Fabrinsky Architekten负责,整体定位为现代平房,配套设施完善,包含车库(含4个客户汽车存放位)、小型游泳池,环绕绿化的宽大玻璃窗,以及保障未来舒适体验的无障碍通道。室内设计阶段,客户投入大量时间,通过与设计团队材料实验室的合作,逐渐喜爱上大胆色彩、优质材料与精致工艺,深度参与并享受设计过程。
最终室内采用开放式布局,实现住宅各区域的统一,以及室内外空间的无缝衔接,黑色天花板奠定了大胆、对比鲜明的整体基调。雕塑物品凭借自身色彩、形态与材质,形成独特空间标识,同时与整体设计和谐呼应;不同纹理(光面、哑光、柔软吸水)的材料与日光、人造光相互作用,不断重塑空间感知,引导视觉焦点。
突出的休息区设计延伸至景观深处,模糊了室内外的界限;统一的材料语言与带有精美图形网络的黑色天花板,进一步整合空间。大幅面平面设计从休息室贯穿至带顶棚泳池区与室外火坑(与主空间稍作分隔),生动灵动的线条与玻璃幕墙的严谨几何形态、泳池建筑的简洁感形成有意对比,丰富空间层次。























平面布置图

-END-
图片和文案来源网络,版权归原作者所有,如有侵权请联系删除~
欧模网汇集室内、建筑、景观、家居全品类优质3d模型,覆盖多元风格与全场景需求。同步更新前沿设计案例、行业资讯与实用灵感,素材下载便捷,内容专业丰富,助力设计师高效创作,轻松实现设计方案的完整落地。