2026-03-10
项目位于巴西弗洛里亚诺波利斯,地处海岛滨海地带,被水域与热带原生植被环绕,由ENTRE Arquitetos为Vivo通信打造片区分支机构办公空间,设计锚定场地在地性与通信行业属性,实现自然肌理、空间效率与办公功能的精准适配。
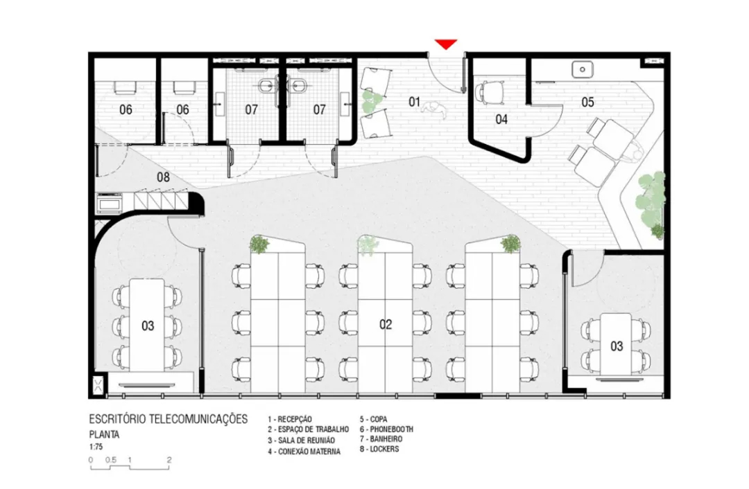
设计提取海岸线曲线、潮汐流动的自然形态为核心语言,弱化刻意造型,依托光影与材质衔接地域特质与科技调性,摒弃传统办公的封闭刻板,以开放逻辑重构协作场景。空间采用辅助功能靠边、核心区开放的布局策略,后勤、储物等附属功能沿入口墙体集中整合,以连续格栅门板做一体化包覆,消解零碎功能区的界面割裂,释放中央区域作为核心办公与公共协作场,同时最大化引入自然采光,强化空间通透度,适配当代集体优先、灵活联动的办公模式。
核心办公区设于全域动线节点,串联各封闭功能空间,形成无遮挡的互联场域;开放区选用烤漆金属、浅淡饰面及中性浅色调,依托材质反光性提升空间光感,弱化体量厚重感。区域内定制两组悬浮发光装置,形态隐喻圣卡塔琳娜岛轮廓,既作为视觉核心,又营造均匀漫射光环境,贴合人体办公尺度。
定制工作台兼顾动线过渡、储物收纳功能,自然融入亲生物设计逻辑,工位间加装隔音挡板优化声学舒适度,在有限尺度内平衡开放协作与独立办公需求。整体设计不做冗余装饰,以极简手法回应海岛场地特质,兼顾通信品牌的科技感与办公空间的实用性,跳出传统办公定位,成为混合办公模式与在地设计结合的实用型载体。












项目信息
设计:ENTRE Arquitetos
设计团队:Juliana Pimenta、Tais Fagundes
地址:巴西 弗洛里亚诺波利斯
面积:130 平方米
时间:2025年
摄影:Mariana Boro
-END-
图片和文案来源网络,版权归原作者所有,如有侵权请联系删除~