2026-03-19
皮鲁莱斯住宅是位于圣米格尔德阿连德(墨西哥)最古老社区之一Valle del Maíz边缘的六栋住宅之一。该场地地势陡峭,主要生长着本地树木和植被——以胡椒树、金合欢、豆科灌木和仙人掌为主。
这片街区保留了其城市结构的原始布局,街道沿着等高线平行延伸,地块则顺应天然地势纵向倾斜延伸。这种传统布局基于水利与农业考量,使得径流水得以用于灌溉。
与体现这座城市近期发展特征的新建封闭社区不同,该设计力求与瓦莱德尔迈兹既有的街区肌理相融合。这些住宅保持着与邻近地块相似的尺度和比例,确保每栋房屋都与街道保持直接联系,并与周边的形态、植被及场所特征建立起和谐对话。
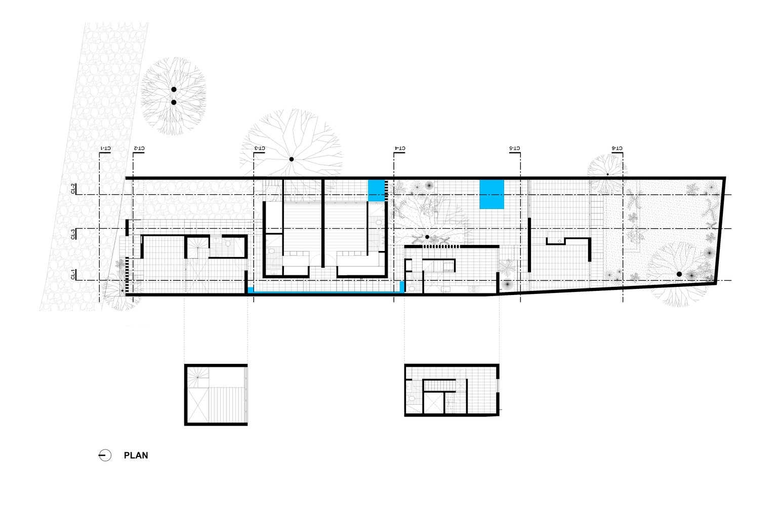
每栋住宅由四个功能体块构成,分别容纳不同的建筑功能。从街道向内延伸的空间序列依次为:商店体块、卧室体块、厨房及服务体块,最后是起居餐饮体块。六栋住宅的体块始终保持相同的尺寸与比例,变化仅在于它们根据现有树木的位置调整了在各自地块中的布局。
各体量间的流通通过沿途显露的庭院、门廊、楼梯与花园得以实现。高度变化、明暗交错、水景元素与植被共同勾勒出住宅内外空间的多样环境。
砖块被选作墙体的理想材料,因其能以标准单元形式调节高度与平台层差。此外,作为墨西哥中部巴希奥地区广泛采用的建材,它兼具本土性与经济性。每个展馆的外墙设计更为厚重,兼顾结构性与功能性需求:既容纳设备管线,又提供声热隔绝效能,同时庇护内部空间免受外界环境影响。

































