2018-04-08
设计公司:Cox Architecture
位置:澳大利亚
类型:图书馆 教育建筑
材料:木材 玻璃 瓷砖 石材 金属 钢
项目规模:12000平方米
完成日期:2017年
路易斯·马西森爵士图书馆的主要重建工作将一个重要但很老旧的设施变成了一个充满活力又吸引人的学习环境,为学生和学者们提供了一个更高效的工作场所。图书馆的学生数量不断增加,有着丰富的或正式或轻松的学习环境,图书馆的参观者们仿佛参加一个展示独特历史物品和精美艺术品的快乐的探索旅程。
▼图书馆入口

▼入口门厅采用了形式感极强的天花板,一直延伸到室外

从功能上看,图书馆的再开发扩大了图书馆对学生、研究人员和外宾的吸引力,改进了服务,增强用户舒适度和导向功能。当代学生需要适合个人的、安静的学习环境的同时也受益于以团体为基础的、并无缝细致地整合现代科技加以辅助的主动学习模式。入口设计的加强以及新增的咖啡屋使得该图书馆成为了莫纳什大学克莱顿校区的学术与情感交流中心。
▼从首层开始的通高空间组成图书馆中最开放的公共空间


▼天花板上的巨大装饰物将空间具象化

▼装饰物细节


▼位于二层的信息中心

▼交通空间同时也是公共空间,提供桌椅供学生进行个人学习或少数人的团体学习


▼口袋空间提供更安静的学习空间

▼平行四边形体块的一角延伸至室外成为后方出入口以及二层的口袋空间

▼后方的室外花园,提供多处座椅

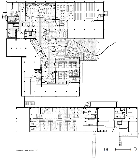
▼首层平面

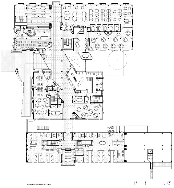
▼二层平面

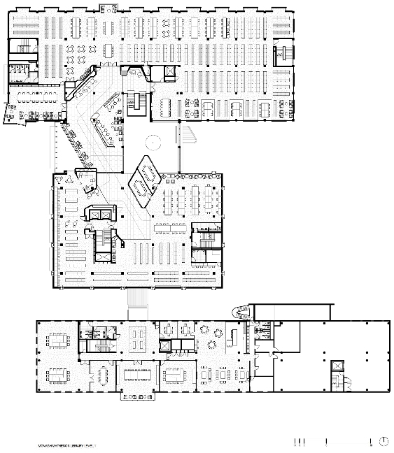
▼三层平面

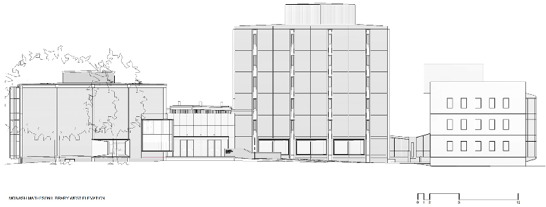
▼正立面

▼剖面

▼天花板造型设计3D模型
