模型详情
1/5
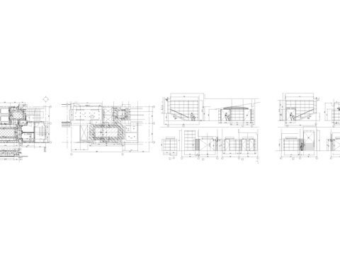
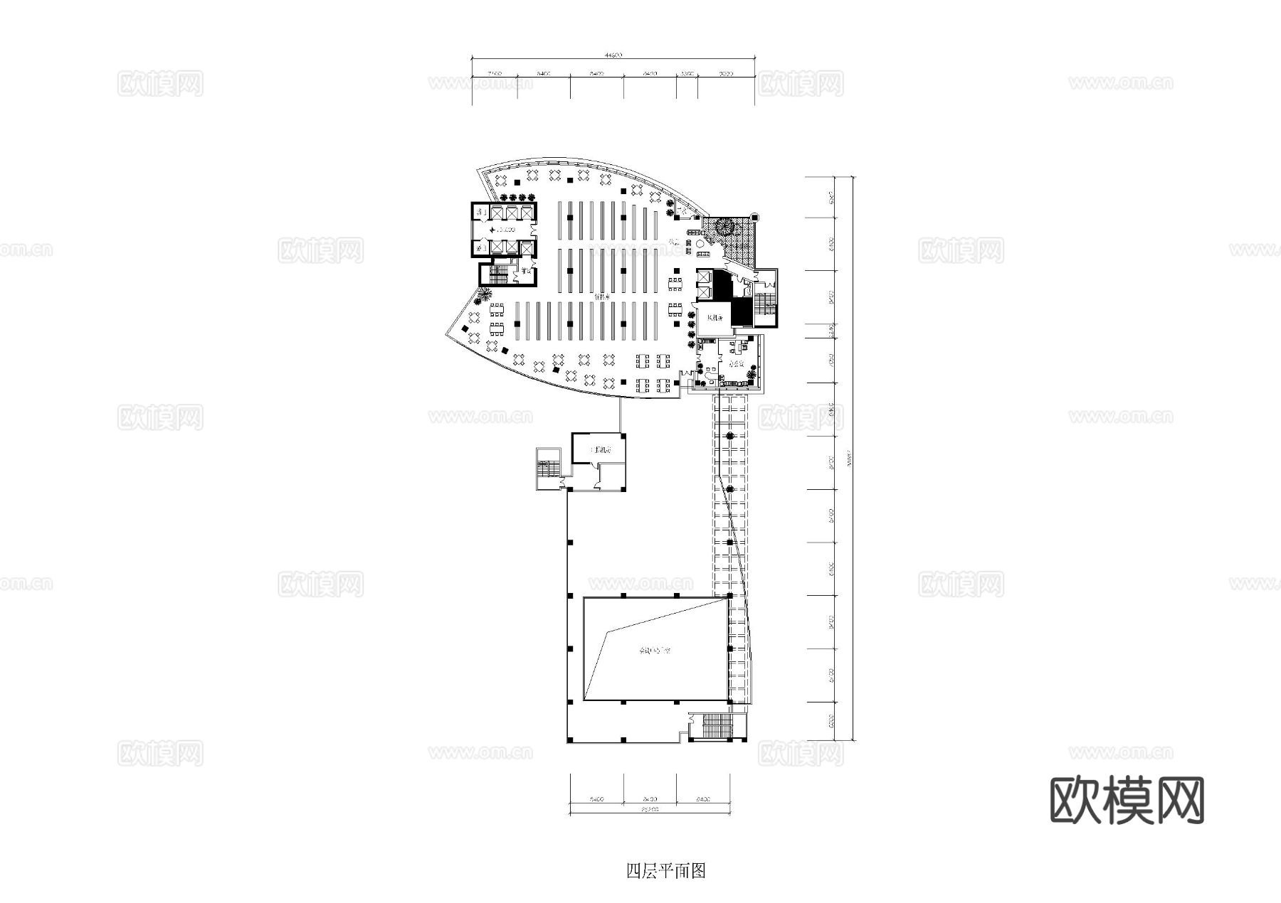
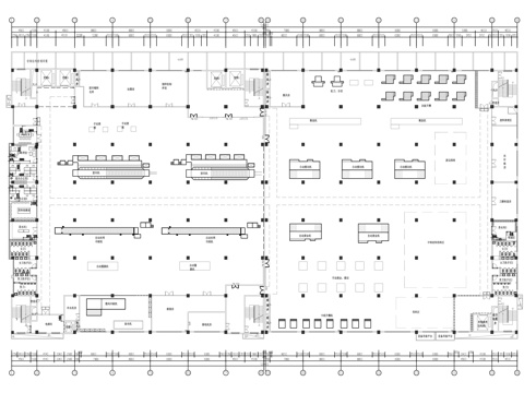
合肥电力公司电网生产调度楼cad施工图
ID:
3934640
合肥电力公司电网生产调度楼cad施工图 ID-3934640
所需欧币:
56
发布时间:
2025-01-16
下载请使用电脑登录欧模网,建议先收藏
收藏
分享
137****1157
关注
为您推荐
合肥洲际酒店公区室内工装CAD施工图cad施工图
生物制品生产制造工程BMS系统CAD施工图整套cad施工图
华润合肥幸福里3-15平层室内家装CAD施工图cad施工图
生产车间平面布置图cad施工图
生产车间平面布置图cad施工图
住宅楼单元楼居住建筑CAD施工图集 40套cad施工图
阜宁县金沙湖电力公司营业厅室内工装CAD施工图整套3dmaxcad施工图
锂电池生产车间平面图cad施工图
合肥置地广场C座29层样板房办公室室内工装CAD施工图整套cad施工图
旋转楼梯异型楼梯CAD图库cad施工图
曲线楼梯旋转楼梯CAD图库cad施工图
楼梯走廊cad施工图
旋转楼梯扶手楼梯CAD图库cad施工图
旋转楼梯复式楼梯CAD图库cad施工图
旋转弧形楼梯CAD图库cad施工图
户外钢架楼梯CAD图库cad施工图
旋转楼梯平面CAD图库cad施工图
旋转曲线楼梯CAD图库cad施工图
楼梯大样详图CAD施工图集 10套cad施工图
楼梯立面楼梯大样cad施工图
点击加载更多
分享到
复制链接
保存海报
取消
请选择收藏夹
+新增收藏夹
新增收藏夹
取消
确认
退出查看