模型详情
1/8
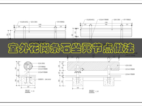
园林景观雕塑施工详图(详图10例)cad施工图
ID:
4060927
园林景观雕塑施工详图(详图10例)cad施工图 ID-4060927
所需欧币:
36
发布时间:
2025-03-18
下载请使用电脑登录欧模网,建议先收藏
收藏
分享
小伊
关注
为您推荐
廊架详图cad施工图
园林景观小节点CAD施工详图集 6套cad施工图
园林景观给排水大样做法CAD施工详图集cad施工图
园林景观挡土墙大样详图CAD施工图集 20套cad施工图
园林景观生态驳岸剖面大样CAD施工图详图集cad施工图
园林景观休闲亭子CAD施工图详图集 152套cad施工图
园林景观围墙围挡大样详图CAD施工图集 40套cad施工图
景观坐凳详图cad施工图
栏杆详图cad施工图
景观坐凳详图cad施工图
纳福窗详图cad施工图
栏杆详图cad施工图
栏杆详图cad施工图
景观雕塑底座做法详图CAD施工图集 7套cad施工图
栏杆详图cad施工图
景观坐凳详图cad施工图
景观坐凳详图cad施工图
园林景观踏步台阶阶梯CAD施工详图集 25套cad施工图
园林景观特色景墙CAD施工详图集 52套cad施工图
乡村矮墙施工图详图cad施工图
点击加载更多
分享到
复制链接
保存海报
取消
请选择收藏夹
+新增收藏夹
新增收藏夹
取消
确认
退出查看