模型详情
1/2
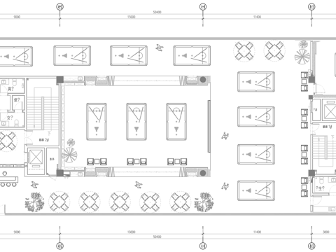
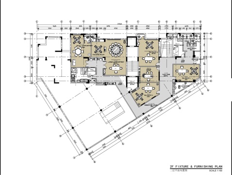
1200㎡私人休闲会所平面布置图cad施工图
ID:
4286246
1200㎡私人休闲会所平面布置图cad施工图 ID-4286246
所需欧币:
36
发布时间:
2025-04-30
下载请使用电脑登录欧模网,建议先收藏
收藏
分享
疾风之剑
关注
为您推荐
现代极简办公会所平面布置图cad施工图
现代新中式会所 两层酒庄 私人会所cad施工图
酒吧平面布置图cad施工图
1200平办公室 最新平面施工图合集cad施工图
办公平面布置图cad施工图cad施工图
1200平办公室 最新平面施工图合集cad施工图
1200平台球室 最新平面施工图合集cad施工图
创意婚纱馆平面布置图cad施工图
婚纱拍摄馆平面布置图cad施工图
文体书店平面布置图cad施工图
现代婚纱馆平面布置图cad施工图
文化书店平面布置图cad施工图
体检中心平面布置图cad施工图
办公室平面布置图cad施工图
260㎡婚纱馆平面布置图cad施工图
小酒馆平面布置图cad施工图cad施工图
施工组织设计施工总平面布置图施工现场平面布置图施工平面布置图cad施工图
现代家纺店平面布置图cad施工图
300㎡婚纱店平面布置图cad施工图
李小太烧烤平面布置图cad施工图
点击加载更多
分享到
复制链接
保存海报
取消
请选择收藏夹
+新增收藏夹
新增收藏夹
取消
确认
退出查看