模型详情
1/2
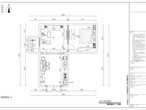
现代极简奶油风服装店平面方案cad施工图
ID:
4828470
现代极简奶油风服装店平面方案cad施工图 ID-4828470
所需欧币:
36
发布时间:
2025-08-11
下载请使用电脑登录欧模网,建议先收藏
收藏
分享
DYD (互关)
关注
为您推荐
现代极简舞蹈室平面方案图cad施工图
现代奶油风婚纱店平面方案图cad施工图
现代极简老年活动中心平面方案图cad施工图
现代极简眼镜店平面方案图cad施工图
现代极简便利店平面方案图cad施工图
现代极简意式手机店展厅平面方案图cad施工图
清静书吧平面方案cad施工图
大型书吧平面方案图cad施工图
汽配厂总平面方案cad施工图
市场方案平面图cad施工图
现代办公空间平面方案图cad施工图
现代烟酒店平面方案图cad施工图
现代牙科诊所平面方案图cad施工图
轰趴馆平面方案图cad施工图
法式墙板展厅平面方案图cad施工图
母婴店平面方案图cad施工图
现代异形服装店平面布局图cad施工图
服装店平面布局图合集cad施工图
现代手表店平面方案图cad施工图
现代出租房平面方案图cad施工图
点击加载更多
分享到
复制链接
保存海报
取消
请选择收藏夹
+新增收藏夹
新增收藏夹
取消
确认
退出查看