模型详情
1/3
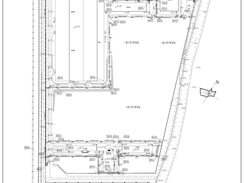
厂区大门平立剖面图cad施工图
ID:
4860834
厂区大门平立剖面图cad施工图 ID-4860834
所需欧币:
16
发布时间:
2025-08-16
下载请使用电脑登录欧模网,建议先收藏
收藏
分享
啦啦咯
关注
为您推荐
217套住宅户型库CAD平立剖面图cad施工图
宴会厅平立施工图cad施工图
园林景观竖向高差地形平立剖CAD施工图集 47套cad施工图
公共卫生间平立剖及隔断节点CAD施工图集 13套cad施工图
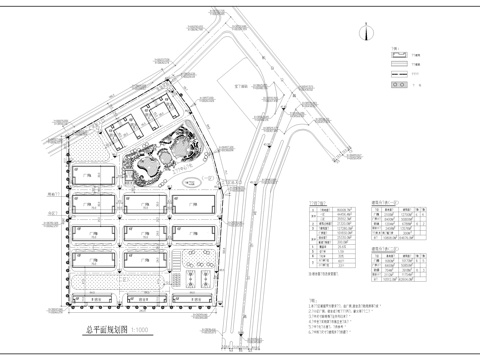
某厂区规划总图cad施工图
厂区食堂建筑施工图cad施工图
广州滨江花园住宅楼建筑平立剖及户型图CAD施工图集cad施工图
某厂区规划图cad施工图
小木桥剖面图cad施工图
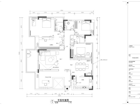
200平大平层cad施工图
立管检修口墙身大样图cad施工图
植物CAD平立面图库cad施工图
植物CAD平立面图库cad施工图
汽车平立面CAD图库cad施工图
景观剖面图 挡墙饰面标准剖面图 嵌草汀步卵石汀步剖面图cad施工图
庭院入口大门景观CAD施工图集cad施工图
中式古典大门cad施工图
植物平立面图库cad施工图
1000平异形展厅,GRGcad施工图
1000平私宴餐饮施工图cad施工图
点击加载更多
分享到
复制链接
保存海报
取消
请选择收藏夹
+新增收藏夹
新增收藏夹
取消
确认
退出查看