模型详情
1/4
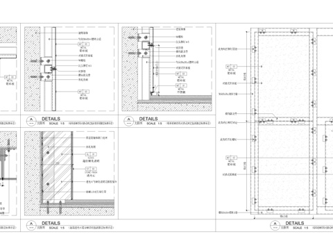
玻纤树脂板、装配式护墙板、干挂护墙板包柱子、包柱子横剖竖剖图cad施工图
ID:
4868965
玻纤树脂板、装配式护墙板、干挂护墙板包柱子、包柱子横剖竖剖图cad施工图 ID-4868965
所需欧币:
36
发布时间:
2025-08-21
下载请使用电脑登录欧模网,建议先收藏
收藏
分享
室内设计大哥大
关注
为您推荐
不锈钢包柱子详图、圆形柱子节点、包柱子大样、金属饰面包柱子cad施工图
干挂瓷砖柱子节点详图cad施工图
蜂窝复合铝板干挂、蜂窝复合铝板包柱、铝板包方柱子圆角、金属板cad施工图
干挂石材柱子节点详图cad施工图
消火栓包柱子暗门、涂料消防栓隐形门、柱子包封消火栓cad施工图
异形柱子包造型、不锈钢板铝蜂窝芯、包柱子暗藏消防栓、商场包柱cad施工图
柱子柱式包柱大样详图CAD施工图集 11套cad施工图
32套包柱做法柱子圆柱节点大样CAD施工图cad施工图
外墙阳角石材包柱干挂节点详图cad施工图
墙面铝蜂窝复合岩板干挂工艺cad施工图cad施工图
石笼网箱标准矮墙景观剖立面CADcad施工图
墙面瓷砖干挂工艺cad施工图
墙面节点 仿石砖干挂详图 瓷砖干挂详图 施工图cad施工图
护墙板 柜板 门板 垭口节点图cad施工图
铝板包柱包梁节点图cad施工图
石材干挂包柱标准做法cad施工图
园林景观竖向高差地形平立剖CAD施工图集 47套cad施工图
石材干挂标准做法cad施工图
中式古建筑剖立面檐角雕花CAD施工图集 26套cad施工图
欧式立柱 栏杆柱子柱头 柱子扶手 花瓶柱 铁艺栏杆柱子 围栏cad施工图
点击加载更多
分享到
复制链接
保存海报
取消
请选择收藏夹
+新增收藏夹
新增收藏夹
取消
确认
退出查看