模型详情
1/2
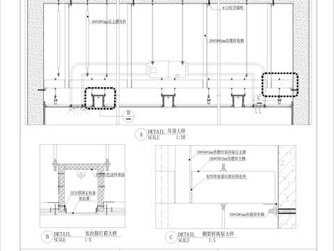
吊顶图 星空吊顶 铝板星空顶 星空顶 吊顶节点cad施工图
ID:
4878326
吊顶图 星空吊顶 铝板星空顶 星空顶 吊顶节点cad施工图 ID-4878326
所需欧币:
86
发布时间:
2025-08-26
下载请使用电脑登录欧模网,建议先收藏
收藏
分享
T_T
关注
为您推荐
6套铝板天花吊顶节点大样图星空顶CAD施工图cad施工图
钢架吊顶CAD节点cad施工图
蜂窝铝板吊顶大样图cad施工图
铝板天花吊顶CADcad施工图
穿孔透光铝板吊顶、天花冲孔铝板吊顶、冲孔铝板透光做法、透光板cad施工图
吊顶节点 轻钢龙骨吊顶 钢架吊顶 钢架转换层节点 石膏板吊顶cad施工图
吊顶窗帘盒节点图cad施工图
12个会议室吊顶节点图cad施工图
包梁吊顶 弧形包梁 弧形吊顶包梁节点 异形天花包梁 天花吊顶cad施工图
14个会议室吊顶节点图cad施工图
多种天棚吊顶节点大样图cad施工图
15个会议室吊顶节点图cad施工图
包梁吊顶CADcad施工图
全轻钢龙骨吊顶骨架(高位无吊顶)cad施工图
坡屋顶吊顶(纵向剖面)cad施工图
坡屋顶吊顶(横向剖面)cad施工图
10套悬浮叠级天花吊顶节点图CAD施工详图cad施工图
现代硬装模块 吊顶剖面 吊顶装饰线条 电梯平面cad施工图
天棚吊顶钢架转换层做法cad施工图
吊顶内部钢构转换层构造cad施工图
点击加载更多
分享到
复制链接
保存海报
取消
请选择收藏夹
+新增收藏夹
新增收藏夹
取消
确认
退出查看