模型详情
1/8
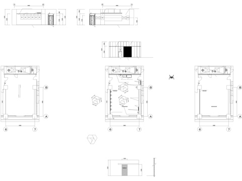
约630平方办公室空间CAD施工图效果图cad施工图
ID:
4887604
约630平方办公室空间CAD施工图效果图cad施工图 ID-4887604
所需欧币:
56
发布时间:
2025-08-29
下载请使用电脑登录欧模网,建议先收藏
收藏
分享
室内设计大哥大
关注
为您推荐
公寓空间cad施工图
办公空间施工图cad施工图
办公空间施工图cad施工图
办公空间施工图cad施工图
办公空间施工图cad施工图
29套办公空间办公室CAD平面图合集cad施工图
20套办公空间施工图cad施工图
店铺空间 商业空间cad施工图
办公楼办公空间施工图cad施工图
办公楼办公空间施工图cad施工图
西餐厅餐饮空间施工图cad施工图
现代风格家居空间家具动态CAD施工图库 47组cad施工图
办公楼办公空间施工图cad施工图
办公空间平面图cad施工图
办公空间布局方案cad施工图
办公空间平面图cad施工图
23套快餐店餐饮空间快餐厅CAD施工图附效果图cad施工图
20套中餐厅饭店餐饮空间CAD施工图cad施工图
室内装修家装空间模块家具CAD施工图块合集cad施工图
大堂办公室施工图cad施工图
点击加载更多
分享到
复制链接
保存海报
取消
请选择收藏夹
+新增收藏夹
新增收藏夹
取消
确认
退出查看