模型详情
1/3
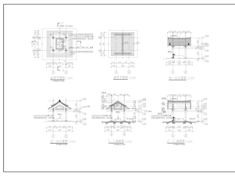
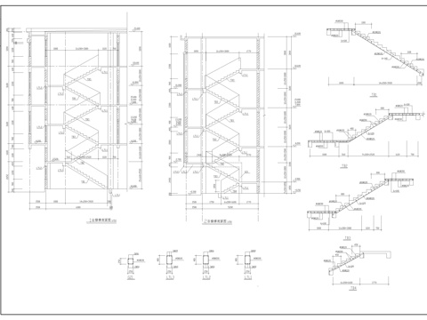
园林古建全套建筑cad施工图
ID:
4888728
园林古建全套建筑cad施工图 ID-4888728
所需欧币:
106
发布时间:
2025-08-29
下载请使用电脑登录欧模网,建议先收藏
收藏
分享
会跳舞的猫
关注
为您推荐
商业仿古建筑歇山斗拱全套CAD施工图集cad施工图
古建筑园林牌坊牌楼CAD施工图集 6套cad施工图
建筑类全套图纸cad施工图
古建筑园林殿堂楼阁CAD施工图集 3套cad施工图
古建筑园林牌坊牌楼CAD扩初施工图集 7套cad施工图
园林景观古建塔佛塔塔楼建筑CAD施工图集 12套cad施工图
某厂房建筑全套施工图cad施工图
中式古建筑CAD图块cad施工图
古建筑 亭 悬山顶 中式古建筑 洗手亭cad施工图
苏州生活垃圾集运中心建筑CAD施工图全套cad施工图
深圳利是佳商住大厦建筑CAD施工图全套cad施工图
天华苏州体育中心建筑CAD施工图全套cad施工图
古建园林大样构造详图CAD施工图集 20套cad施工图
献县中医医院康复楼建筑CAD施工图全套cad施工图
呼和浩特交警指挥中心建筑CAD施工图全套cad施工图
北京平煤集团总医院建筑CAD施工图全套cad施工图
益阳口味王槟榔冷库冰库建筑CAD施工图全套cad施工图
古建园林古塔CAD施工图大样详图集 2套cad施工图
重庆铜溪中心卫生院建筑CAD施工图全套cad施工图
什邡洛水镇敬老院建筑CAD施工图全套cad施工图
点击加载更多
分享到
复制链接
保存海报
取消
请选择收藏夹
+新增收藏夹
新增收藏夹
取消
确认
退出查看