模型详情
1/6
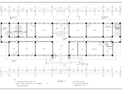
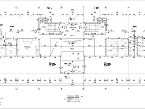
金螳螂设计某办公大楼研发楼幕墙设计专业全套图纸cad施工图
ID:
4900726
金螳螂设计某办公大楼研发楼幕墙设计专业全套图纸cad施工图 ID-4900726
所需欧币:
106
发布时间:
2025-09-03
下载请使用电脑登录欧模网,建议先收藏
收藏
分享
CCD设计师
关注
为您推荐
金螳螂室内设计CAD施工图制图规范完整全套cad施工图
奶粉厂设计图纸cad施工图
家装豪宅全案设计图纸cad施工图
幕墙设计标准件大全cad施工图
23个柜子设计详图全套cad施工图
建筑类全套图纸cad施工图
200平豪宅全案设计图纸cad施工图
某车间设计方案图cad施工图
建筑幕墙工程设计CAD施工图制图规范图集cad施工图
某厂房建筑全套施工图cad施工图
南海影剧院剧场建筑设计CAD施工图全套cad施工图
制衣厂研发楼施工图cad施工图
欧式居住区华润金悦湾一期景观设计CAD施工图全套cad施工图
成都麓湖绿地公园全域景观规划设计CAD施工图全套cad施工图
周庄私人雅居设计室内家装CAD施工图全套cad施工图
嘉兴现代平层住宅室内家装设计CAD施工图全套cad施工图
某工厂综合楼cad施工图
藏式办公楼全套cad施工图
设备控制图建筑设计电气CAD施工图 电气图纸cad施工图
研发中心建筑施工图cad施工图
点击加载更多
分享到
复制链接
保存海报
取消
请选择收藏夹
+新增收藏夹
新增收藏夹
取消
确认
退出查看