模型详情
1/1
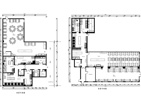
大食堂 员工食堂平面方案图cad施工图
ID:
4902323
大食堂 员工食堂平面方案图cad施工图 ID-4902323
所需欧币:
16
发布时间:
2025-09-05
下载请使用电脑登录欧模网,建议先收藏
收藏
分享
DYD (互关)
关注
为您推荐
厂区食堂建筑施工图cad施工图
企业学校员工餐厅学生食堂建筑CAD施工图集 25套cad施工图
食堂粗加工区面点区布置平面图cad施工图
食堂餐具回收标识、收银台标识、餐厅食堂标识设计cad施工图
大学食堂水电暖施工图cad施工图
大型书吧平面方案图cad施工图
市场方案平面图cad施工图
清静书吧平面方案cad施工图
法式墙板展厅平面方案图cad施工图
母婴店平面方案图cad施工图
成都景观植物平面方案图cad施工图
汽配厂总平面方案cad施工图
现代办公空间平面方案图cad施工图
现代服装店平面方案图cad施工图
2025高端豪华别墅平面方案图cad施工图
现代烟酒店平面方案图cad施工图
现代牙科诊所平面方案图cad施工图
食堂 餐饮空间 酒吧 饭店 快餐店cad施工图
北航大北区学生食堂室内装饰CAD施工图整套cad施工图
现代极简舞蹈室平面方案图cad施工图
点击加载更多
分享到
复制链接
保存海报
取消
请选择收藏夹
+新增收藏夹
新增收藏夹
取消
确认
退出查看