模型详情
1/8
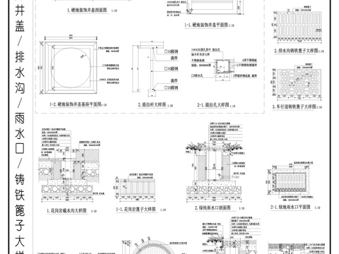
景观排水沟排水篦子井盖收水口CAD施工图集 23套cad施工图
ID:
4944583
景观排水沟排水篦子井盖收水口CAD施工图集 23套cad施工图 ID-4944583
所需欧币:
36
发布时间:
2025-09-15
下载请使用电脑登录欧模网,建议先收藏
收藏
分享
皮肤干燥
关注
为您推荐
绿地雨水口 排水沟 户外井盖 铸铁竹篦子大样图cad施工图
园林景观给排水CAD施工图集 9套cad施工图
园林景观给排水大样做法CAD施工详图集cad施工图
厨房排水沟CADcad施工图
砾石排水沟cad施工图cad施工图
排水沟明沟导沟节点大样详图CAD施工图集 10套cad施工图
地漏 排水口 井盖 排水孔 排水盖 排污口 井水盖 板井盖cad施工图
市政公路 路基 路面 给排水 通用CAD 施工图集cad施工图
欧式景观亭CAD详图施工图集cad施工图
现代景观休闲廊架CAD施工图集cad施工图
园林景观绿化灌溉排水系统CAD施工图集 9套cad施工图
欧式圆顶休闲景观亭CAD施工图集cad施工图
园林景观喷泉水景给排水CAD施工图集 27套cad施工图
长沙芙蓉新城龟山绿带公园景观、电气、给排水 CAD施工图集cad施工图
园林景观铺装CAD施工图集cad施工图
园林景观休闲廊架CAD施工图集cad施工图
建筑边缘排水沟 卵石排水沟 排水沟 排水盖板剖面图cad施工图
景观垂直绿化植物墙CAD施工图集cad施工图
景观通用CAD施工图详图集 43套cad施工图
下沉广场休闲区景观CAD施工图集cad施工图
点击加载更多
分享到
复制链接
保存海报
取消
请选择收藏夹
+新增收藏夹
新增收藏夹
取消
确认
退出查看