模型详情
1/5
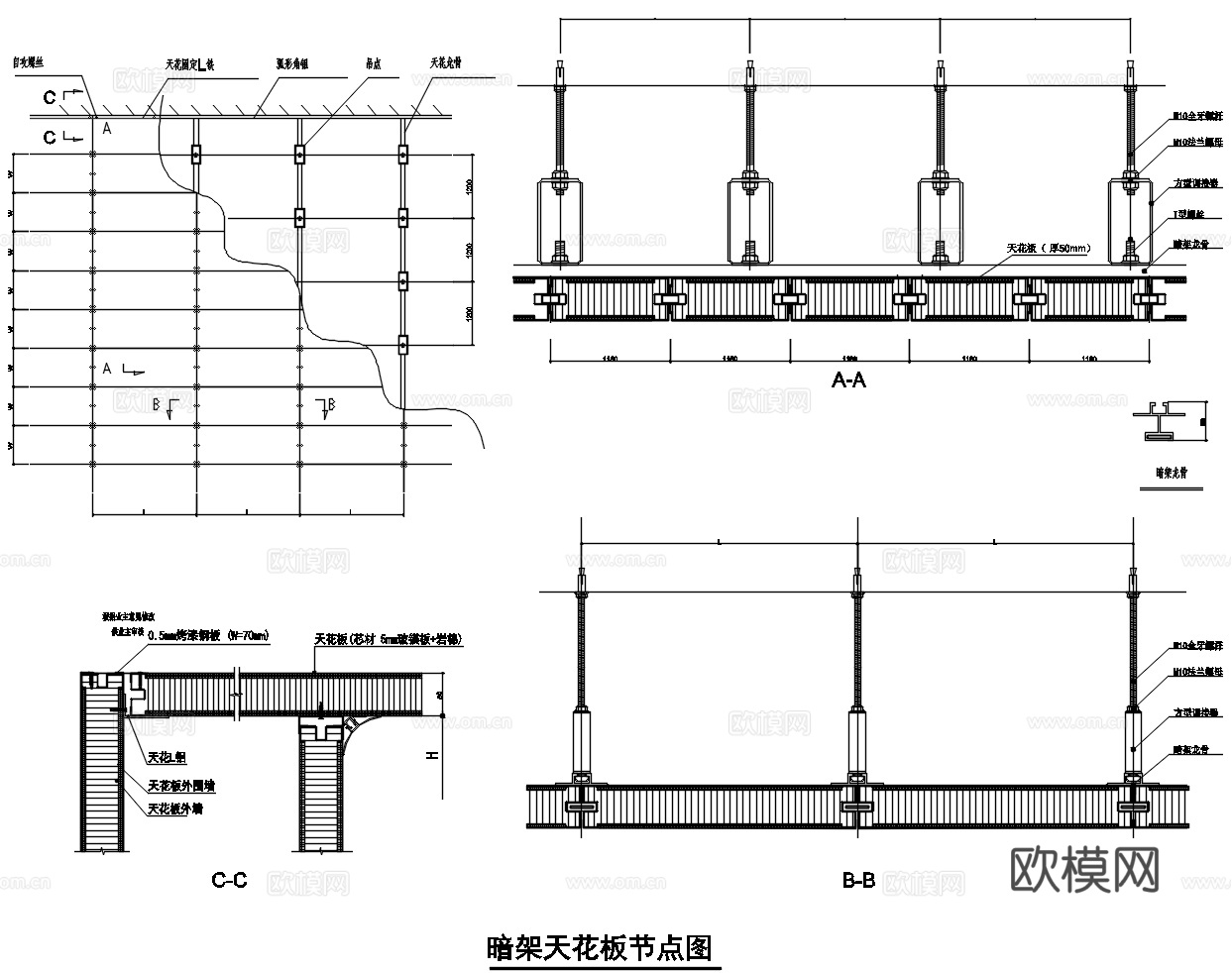
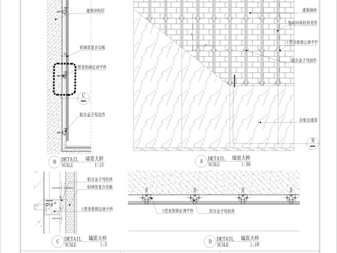
玻镁岩棉夹芯板隔墙、玻镁岩棉洁净板、彩涂钢板隔墙、玻镁彩钢板cad施工图
ID:
4957605
玻镁岩棉夹芯板隔墙、玻镁岩棉洁净板、彩涂钢板隔墙、玻镁彩钢板cad施工图 ID-4957605
所需欧币:
36
发布时间:
2025-09-22
下载请使用电脑登录欧模网,建议先收藏
收藏
分享
室内设计大哥大
关注
为您推荐
彩钢夹芯板隔墙、实验室彩钢板隔断、净化车间专用隔墙、洁净厂房cad施工图
轻钢龙骨隔墙 钢结构隔墙 钢架隔墙 钢架墙节点cad施工图
轻钢龙骨隔墙CADcad施工图
钢化玻璃隔墙节点图cad施工图
玻纤树脂板、装配式护墙板、干挂护墙板包柱子、包柱子横剖竖剖图cad施工图
金螳螂轻钢龙骨纸面石膏板隔墙标准CAD施工图集cad施工图
玻璃轻钢龙骨石膏板隔墙隔断节点CAD施工图集 20套cad施工图
墙面墙体隔墙室内装饰CAD施工图集 26套cad施工图
金螳螂隔墙墙地相接室内装饰节点工艺做法CAD施工图集cad施工图
餐厅矮墙围栏遮挡、餐厅矮墙玻璃隔断、半高钢架护栏隔墙、矮隔断cad施工图
莫兰迪色系彩平素材cad施工图
蜂窝板吊顶CADcad施工图
墙面磁吸板_岩板节点cad施工图
暗架矿棉吸声板节点详图cad施工图cad施工图
金属冲孔板CADcad施工图
墙面铝蜂窝复合岩板干挂工艺cad施工图cad施工图
白板 画板 写字板 屏风cad施工图
冲孔板 穿孔板 透光板铝板 渐变镂空板景墙 金属发光纹理图案cad施工图cad施工图
护墙板 柜板 门板 垭口节点图cad施工图
天花板暗藏式检修口cad施工图
点击加载更多
分享到
复制链接
保存海报
取消
请选择收藏夹
+新增收藏夹
新增收藏夹
取消
确认
退出查看