模型详情
1/8
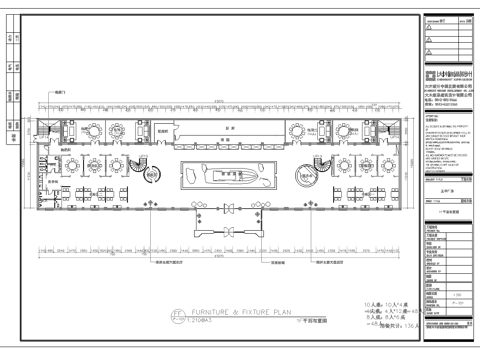
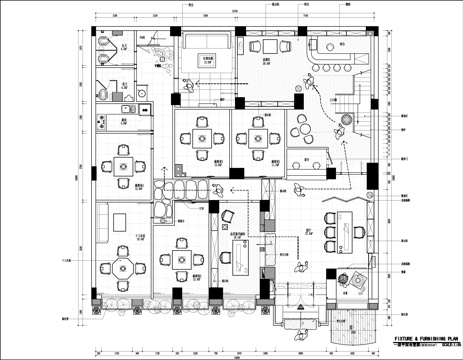
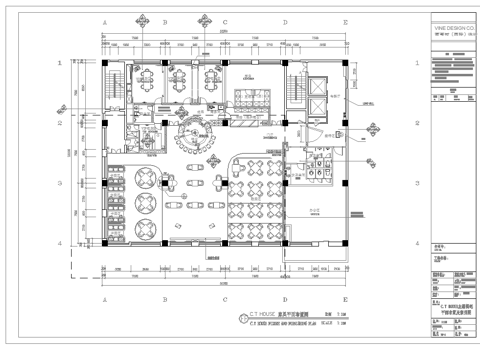
山庄会所前荷塘景观CAD施工图全套cad施工图
ID:
4959083
山庄会所前荷塘景观CAD施工图全套cad施工图 ID-4959083
所需欧币:
16
发布时间:
2025-09-22
下载请使用电脑登录欧模网,建议先收藏
收藏
分享
皮肤干燥
关注
为您推荐
茶楼会所 最新全套施工图合集cad施工图
高档会所餐厅 最新全套施工图合集cad施工图
最新全套 茶楼会所 施工图合集cad施工图
最新全套 会所高档餐厅 施工图合集cad施工图
最新全套 棋牌室会所 施工图合集cad施工图
宁乡玉屏山生态公园景观CAD施工图全套cad施工图
会所cad施工图
现代屋顶花园景观CAD施工图全套cad施工图
昆山颐景园中式大区景观CAD施工图全套cad施工图
会所施工图cad施工图
漳浦县前亭延源酒店景观CAD施工图整套cad施工图
长沙圭塘河滨河带状公园景观CAD施工图全套cad施工图
成都树德中学天府校区景观CAD施工图全套cad施工图
现代滨水生态湿地公园景观CAD施工图全套cad施工图
中式徽派游廊六角景观亭CAD全套施工图cad施工图
新闸村绿满乡村景观改造CAD施工图全套cad施工图
最新全套 清吧 施工图合集cad施工图cad施工图
超大别墅全套施工图cad施工图cad施工图
绿城杭州兰园大区景观CAD施工图全套+文本cad施工图
宁波前湖北路道路景观提升CAD施工图全套cad施工图
点击加载更多
分享到
复制链接
保存海报
取消
请选择收藏夹
+新增收藏夹
新增收藏夹
取消
确认
退出查看