模型详情
1/8
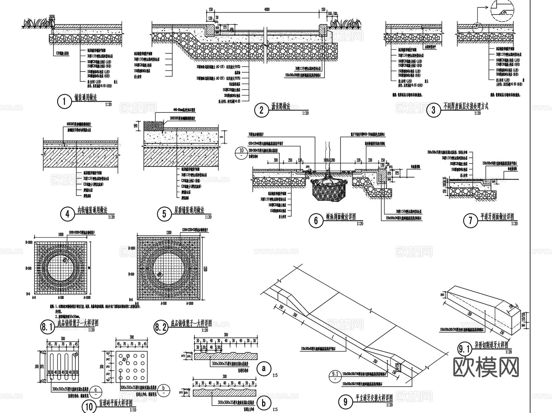
泰和北京石景山长安中心商业综合体景观设计CAD全套施工图集cad施工图
ID:
4960994
泰和北京石景山长安中心商业综合体景观设计CAD全套施工图集cad施工图 ID-4960994
所需欧币:
36
发布时间:
2025-09-22
下载请使用电脑登录欧模网,建议先收藏
收藏
分享
皮肤干燥
关注
为您推荐
北京平煤集团总医院建筑CAD施工图全套cad施工图
居住区大区景观设计CAD施工图集 3套cad施工图
商业仿古建筑歇山斗拱全套CAD施工图集cad施工图
新中式风格中心休闲景观亭凉亭CAD施工图集cad施工图cad施工图
苏州生活垃圾集运中心建筑CAD施工图全套cad施工图
天华苏州体育中心建筑CAD施工图全套cad施工图
泰禾北京院子大区景观CAD施工图全套+SU+文本cad施工图
屋顶花园景观设计CAD平面施工图集 62套cad施工图
重庆铜溪中心卫生院建筑CAD施工图全套cad施工图
别墅花园庭院景观设计整套CAD施工图集 13套cad施工图
苏州金山路垃圾集运中心景观CAD施工图全套cad施工图
长安大唐芙蓉园建筑规划CAD施工图cad施工图
嵊州甘霖镇中心卫生院医疗建筑规划CAD施工图集+文本cad施工图
北京泰禾丽春湖别墅展示区景观CAD施工图全套cad施工图
无障碍栏杆CAD施工图集cad施工图
欧式景观亭CAD详图施工图集cad施工图
现代景观休闲廊架CAD施工图集cad施工图
学校标准篮球场构造节点详图及照明全套CAD施工图集cad施工图
上海徐汇万科中心办公景观CAD施工图全套+文本cad施工图
欧式圆顶休闲景观亭CAD施工图集cad施工图
点击加载更多
分享到
复制链接
保存海报
取消
请选择收藏夹
+新增收藏夹
新增收藏夹
取消
确认
退出查看