模型详情
1/8
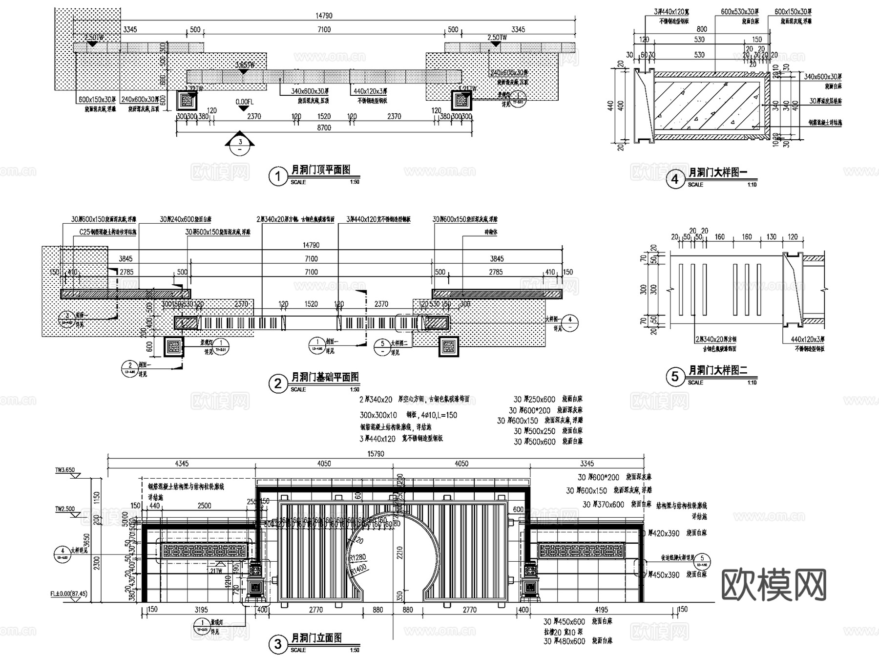
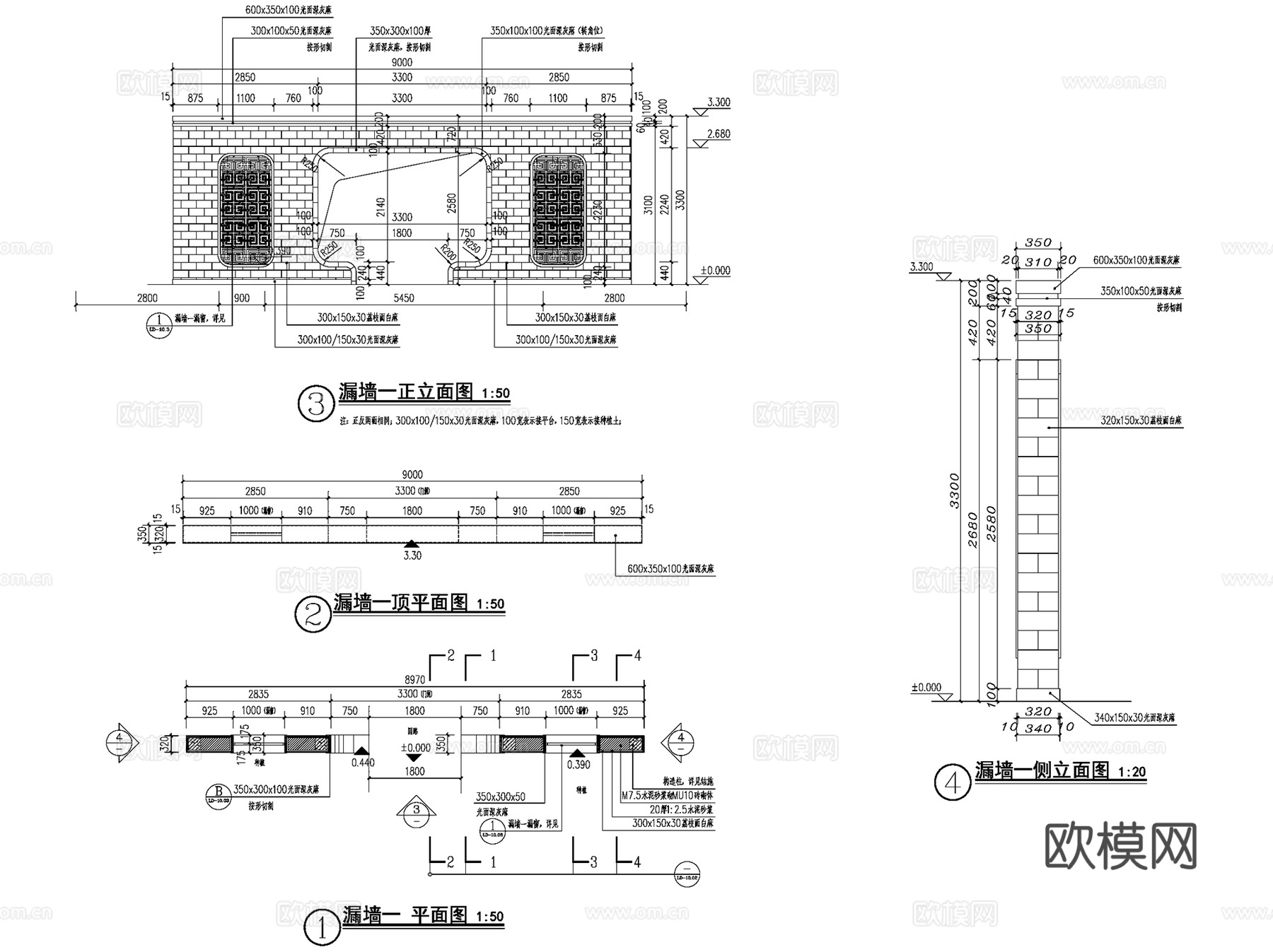
新中式山水景墙景观CAD施工详图集 55套cad施工图
ID:
4987631
新中式山水景墙景观CAD施工详图集 55套cad施工图 ID-4987631
所需欧币:
36
发布时间:
2025-09-28
下载请使用电脑登录欧模网,建议先收藏
收藏
分享
皮肤干燥
关注
为您推荐
欧式叠水景墙水景景观CAD施工图详图集cad施工图
园林景观水景墙节点CAD施工图集 5套cad施工图
景观叠水跌水景墙CAD施工图集 6套cad施工图
新中式景观景墙 CAD施工图集 5套cad施工图
居住区景观山水景墙CAD施工图集 53套cad施工图
景观垂直绿化植物墙CAD施工图集cad施工图
新中式园林景观墙CAD施工图集 5套cad施工图
园林景观水幕景墙水景墙CAD施工图集 20套cad施工图
欧式景观亭CAD详图施工图集cad施工图
现代景观休闲廊架CAD施工图集cad施工图
景观旱喷水景CAD施工图集+SU模型 2套cad施工图
景观水幕瀑布水景CAD施工图集 25套cad施工图
园林景观特色景墙CAD施工图集 30套cad施工图
园林景观休闲水景CAD施工详图集 29套cad施工图
欧式圆顶休闲景观亭CAD施工图集cad施工图
园林景观铺装CAD施工图集cad施工图
新中式格栅景墙CAD施工图集+SU模型cad施工图
新中式风格中心休闲景观亭凉亭CAD施工图集cad施工图cad施工图
园林景观休闲廊架CAD施工图集cad施工图
新中式片石假山格栅山水景墙CAD施工图集 8套cad施工图
点击加载更多
分享到
复制链接
保存海报
取消
请选择收藏夹
+新增收藏夹
新增收藏夹
取消
确认
退出查看