模型详情
1/8
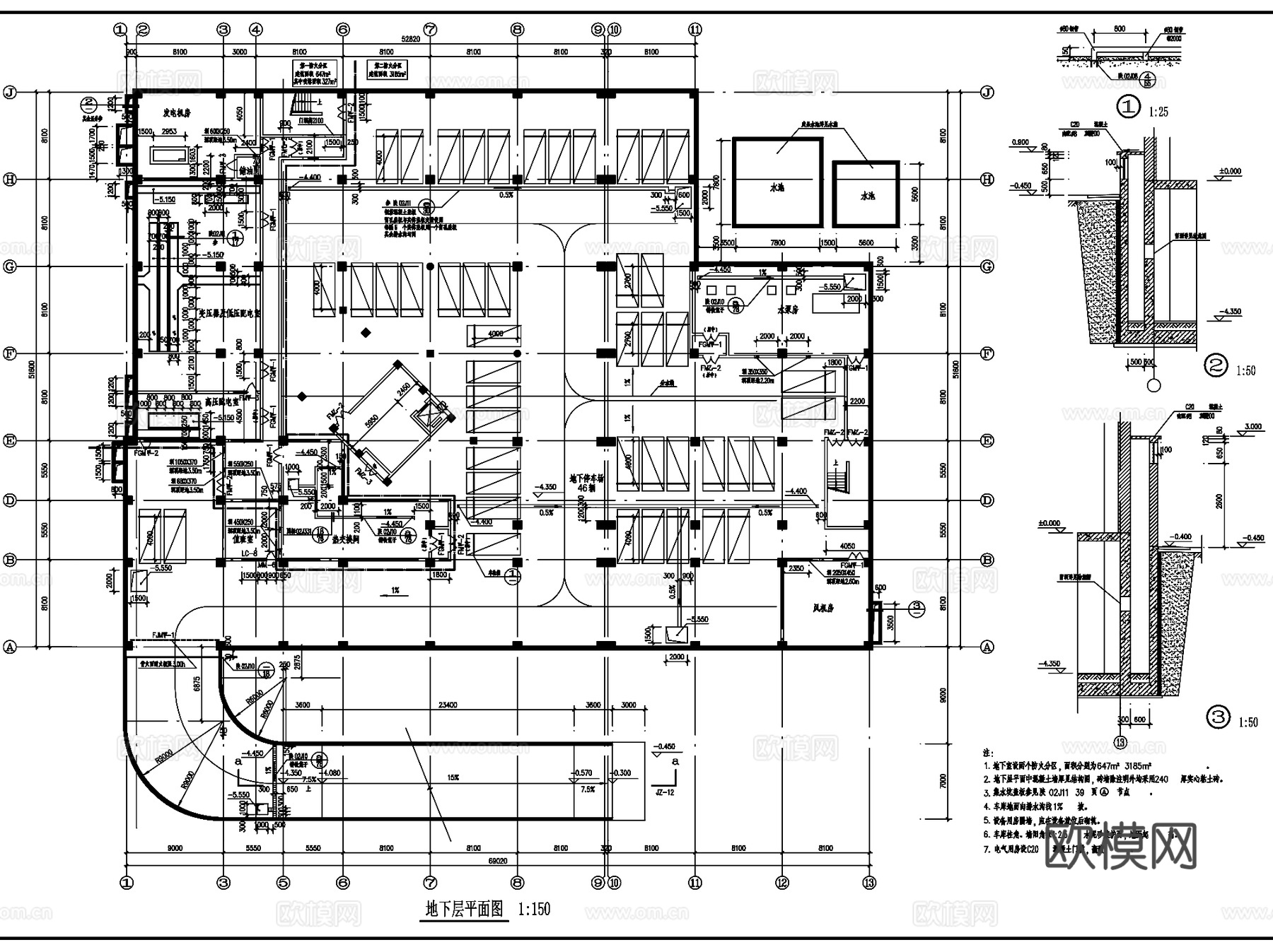
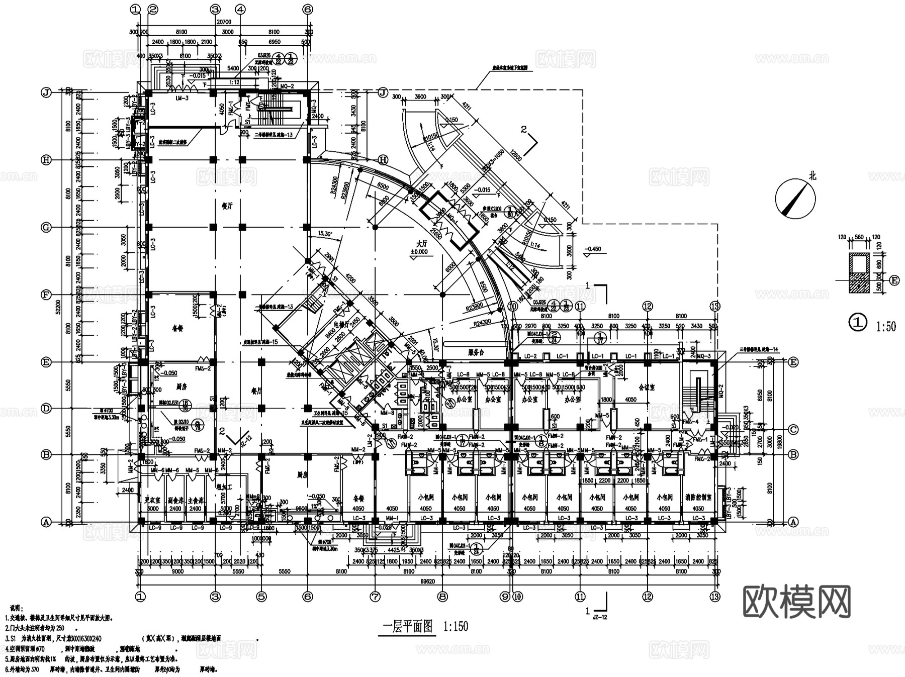
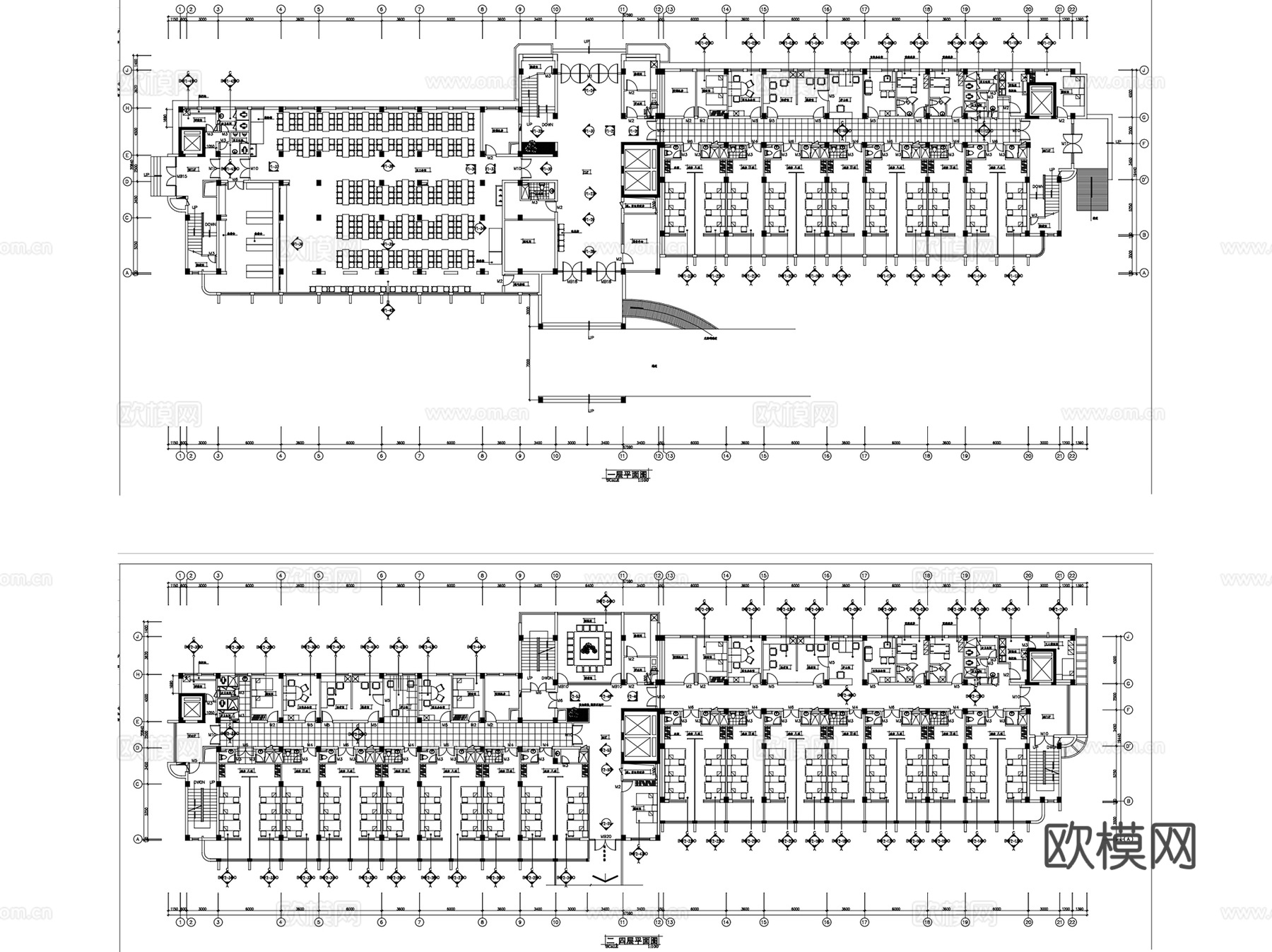
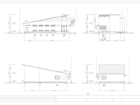
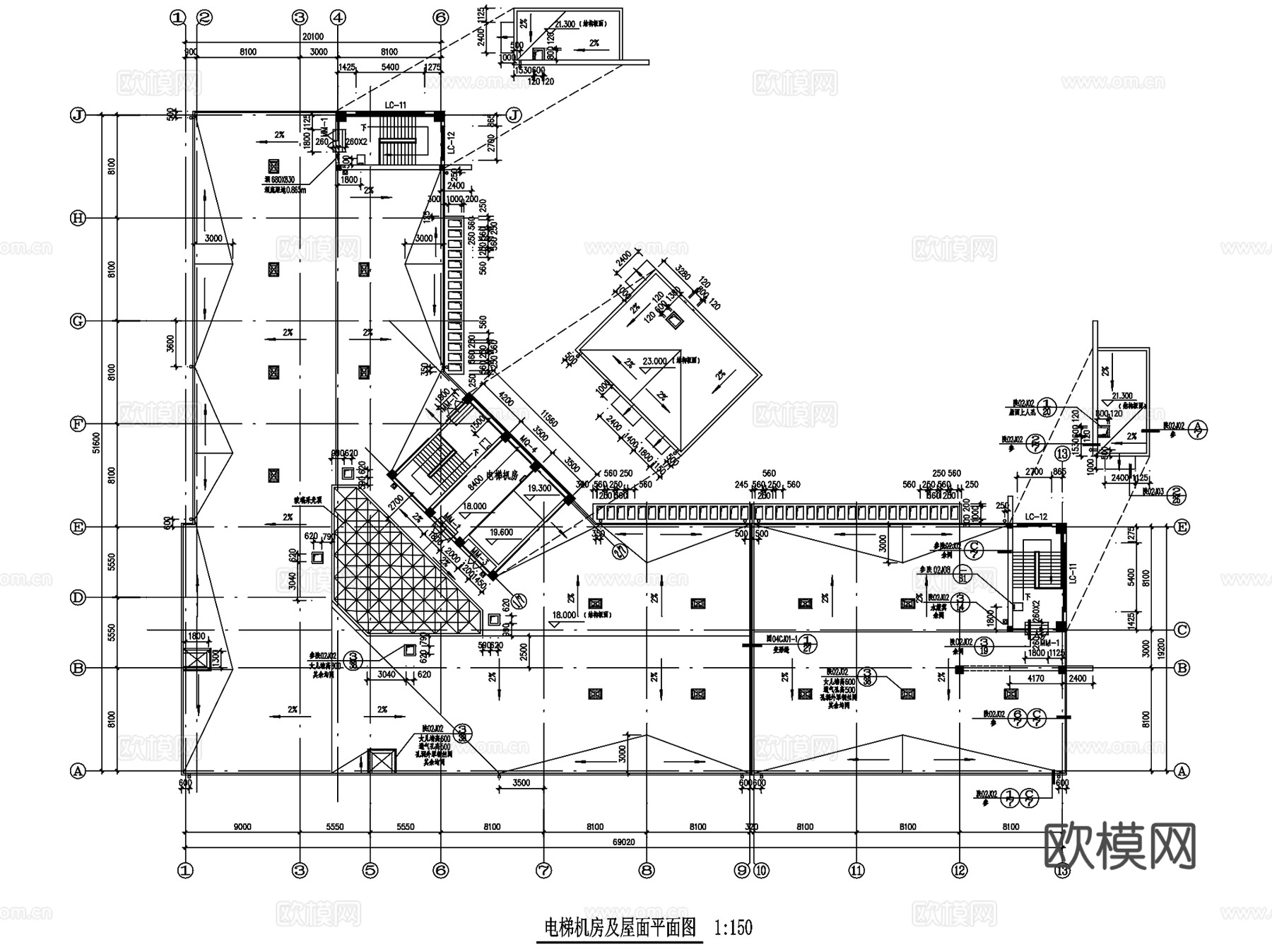
医院疗养院诊所建筑设计CAD施工图集cad施工图
ID:
4987702
医院疗养院诊所建筑设计CAD施工图集cad施工图 ID-4987702
所需欧币:
16
发布时间:
2025-09-28
下载请使用电脑登录欧模网,建议先收藏
收藏
分享
皮肤干燥
关注
为您推荐
医院 诊所cad施工图
医院 建筑 诊所 医疗建筑cad施工图
疗养院养老院福利院建筑CAD施工图集 17套cad施工图
医院诊所医疗空间室内平面布置图CAD施工图集 28套cad施工图
工业旧厂改造建筑设计CAD施工图集 6套cad施工图
护栏CAD图集cad施工图
电影院剧院剧场建筑设计CAD施工图集 14套cad施工图
建筑立面 建筑别墅 牙科诊所 医院cad施工图
茶馆茶楼茶室茶社建筑设计CAD施工图集 30套cad施工图
牙科诊所建筑cad施工图cad施工图
无障碍栏杆CAD施工图集cad施工图
欧式景观亭CAD详图施工图集cad施工图
28套宠物医院宠物店宠物诊所CAD图纸cad施工图
现代景观休闲廊架CAD施工图集cad施工图
医院施工图cad施工图
武穴第一人民医院建筑平面CAD施工图集cad施工图
资阳雁江人民医院扩建建筑CAD平面施工图集+文本cad施工图
欧式圆顶休闲景观亭CAD施工图集cad施工图
屋面节点大样详图CAD施工图集cad施工图
园林景观铺装CAD施工图集cad施工图
点击加载更多
分享到
复制链接
保存海报
取消
请选择收藏夹
+新增收藏夹
新增收藏夹
取消
确认
退出查看