模型详情
1/5
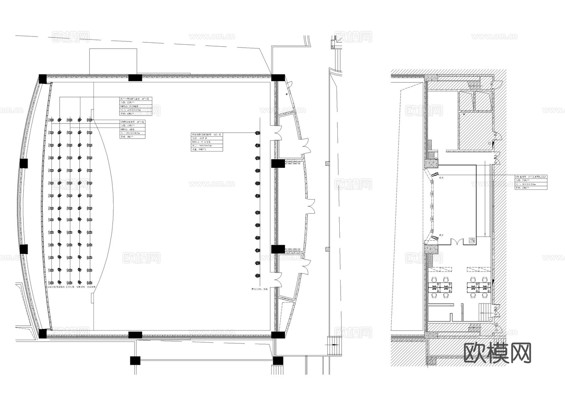
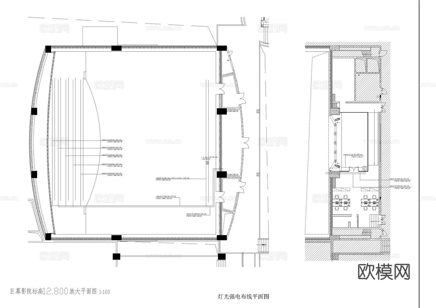
巨幕球幕影院电气施工图cad施工图
ID:
5009112
巨幕球幕影院电气施工图cad施工图 ID-5009112
所需欧币:
36
发布时间:
2025-09-28
下载请使用电脑登录欧模网,建议先收藏
收藏
分享
疾风之剑
关注
为您推荐
球幕影院电气施工图cad施工图
巨幕电气施工图cad施工图
电影院巨幕影厅施工图cad施工图
景观水幕瀑布水景CAD施工图集 25套cad施工图
瀑布水帘水幕景观水景节点CAD施工图集 7套cad施工图
园林景观水幕景墙水景墙CAD施工图集 20套cad施工图
景观水景涌泉水幕镜水面CAD施工图集 80套cad施工图
现代景观水景 镜水面 水幕 叠水 CAD施工图集 15套cad施工图
园林景观水景水幕喷泉水池CAD施工图集 12套cad施工图
电影院平面施工图cad施工图
电影院影厅施工图cad施工图
别墅电气设计施工图cad施工图
新中式庭院电气施工图cad施工图
设备控制图建筑设计电气CAD施工图 电气图纸cad施工图
别墅电气设计施工图cad施工图
现代电影院过道施工图cad施工图
电影院大堂公区施工图cad施工图
电影院卫生间施工图cad施工图
党群服务中心电气施工图cad施工图
篮球羽毛球网球运动球场CAD施工图详图集cad施工图
点击加载更多
分享到
复制链接
保存海报
取消
请选择收藏夹
+新增收藏夹
新增收藏夹
取消
确认
退出查看