模型详情
1/8
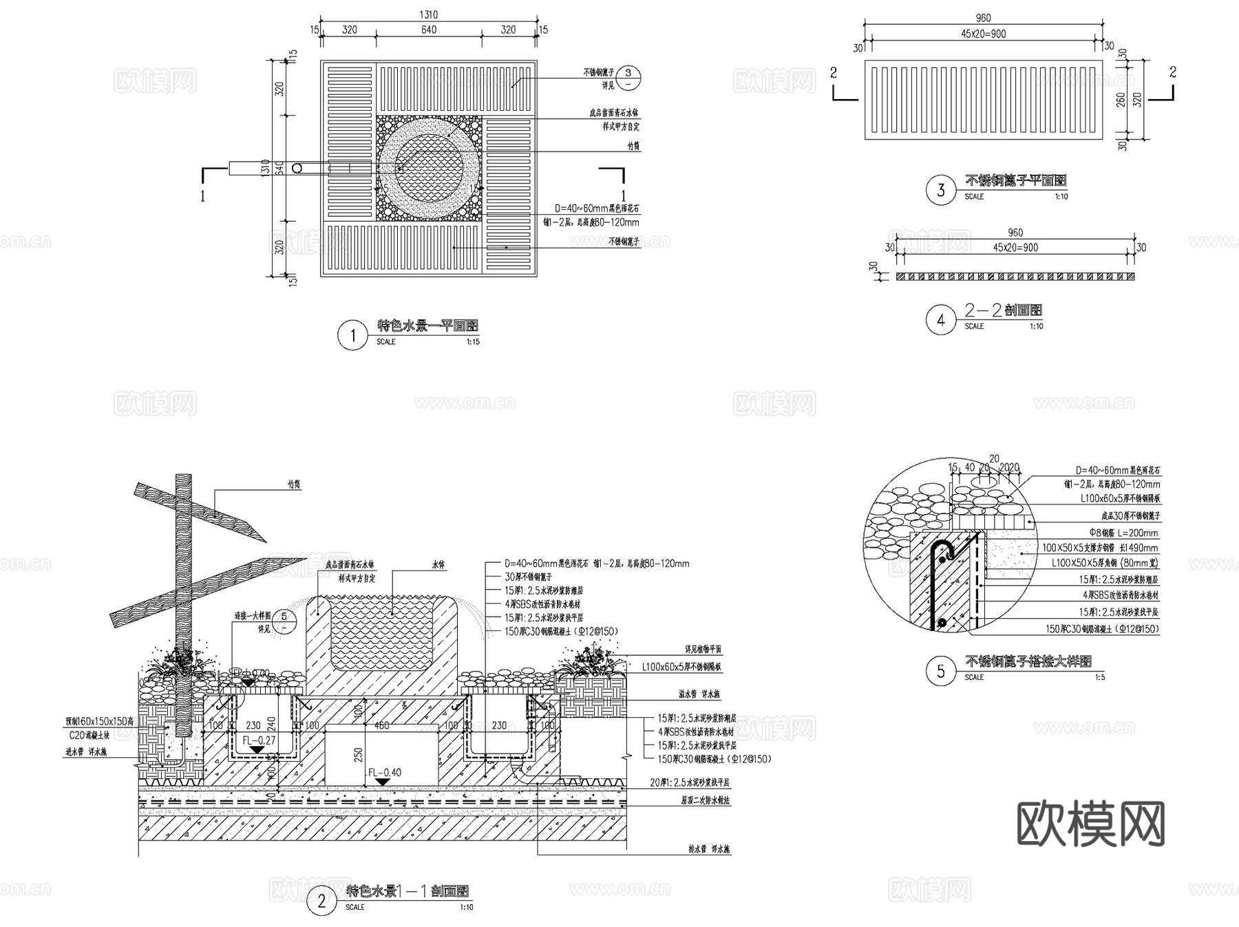
中式净水钵蹲踞洗手台景观小品CAD施工图集 6套cad施工图
ID:
5017280
中式净水钵蹲踞洗手台景观小品CAD施工图集 6套cad施工图 ID-5017280
所需欧币:
36
发布时间:
2025-10-09
下载请使用电脑登录欧模网,建议先收藏
收藏
分享
皮肤干燥
关注
为您推荐
园林景观雕塑小品大样CAD施工图集 3套cad施工图
欧式景观亭CAD详图施工图集cad施工图
现代景观休闲廊架CAD施工图集cad施工图
园林景观花钵花盆大样详图CAD施工图集 16套cad施工图
园林景观花坛花钵种植池CAD施工图集 60套cad施工图
园林景观LOGO标识小品大样CAD施工图集 15套cad施工图
园林景观艺术小品雕塑CAD施工图集 7套cad施工图
新中式景观景墙 CAD施工图集 5套cad施工图
欧式圆顶休闲景观亭CAD施工图集cad施工图
园林景观铺装CAD施工图集cad施工图
法式风格休闲景观亭CAD施工图集cad施工图
园林景观休闲廊架CAD施工图集cad施工图
庭院入口大门景观CAD施工图集cad施工图
新中式风格中心休闲景观亭凉亭CAD施工图集cad施工图cad施工图
景观水景水钵喷泉镜水面CAD施工图集 5套cad施工图
园林景观花钵花盆节点大样CAD施工详图集 23套cad施工图cad施工图
园林景观花钵花盆盆景CAD施工图集 24套cad施工图
中式玻璃顶棚景观休憩廊架CAD施工图详图集cad施工图
中式及欧式园林休闲景观亭CAD施工图集 33套cad施工图
景观垂直绿化植物墙CAD施工图集cad施工图
点击加载更多
分享到
复制链接
保存海报
取消
请选择收藏夹
+新增收藏夹
新增收藏夹
取消
确认
退出查看