模型详情
1/8
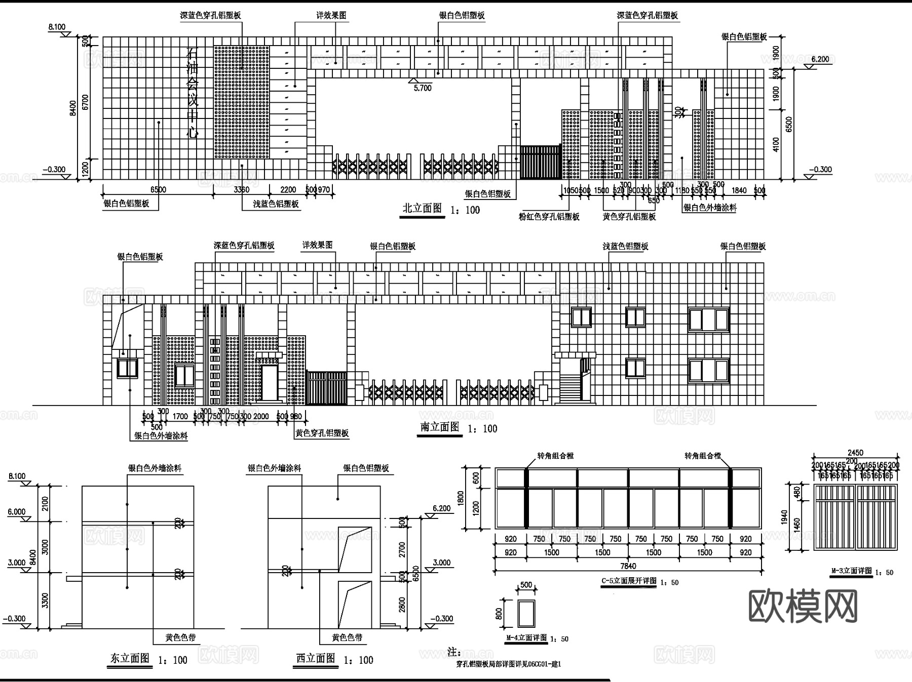
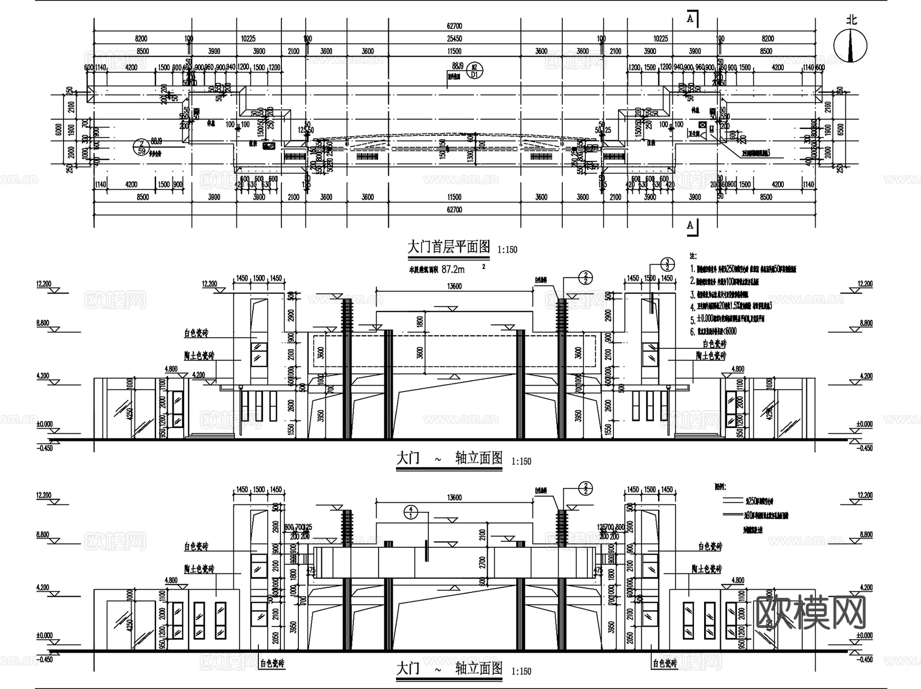
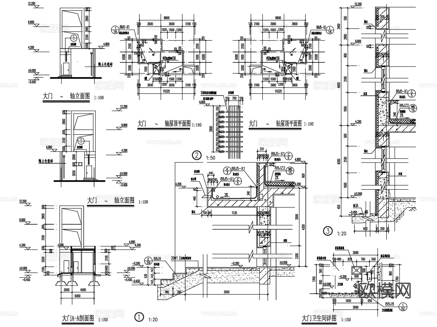
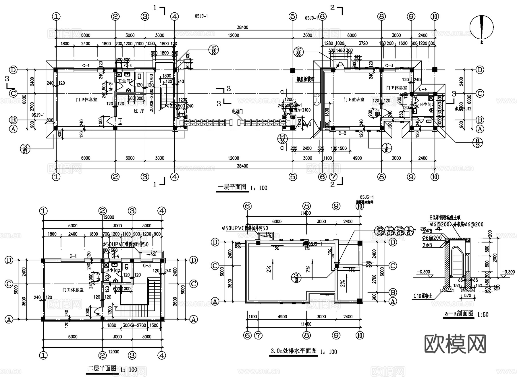
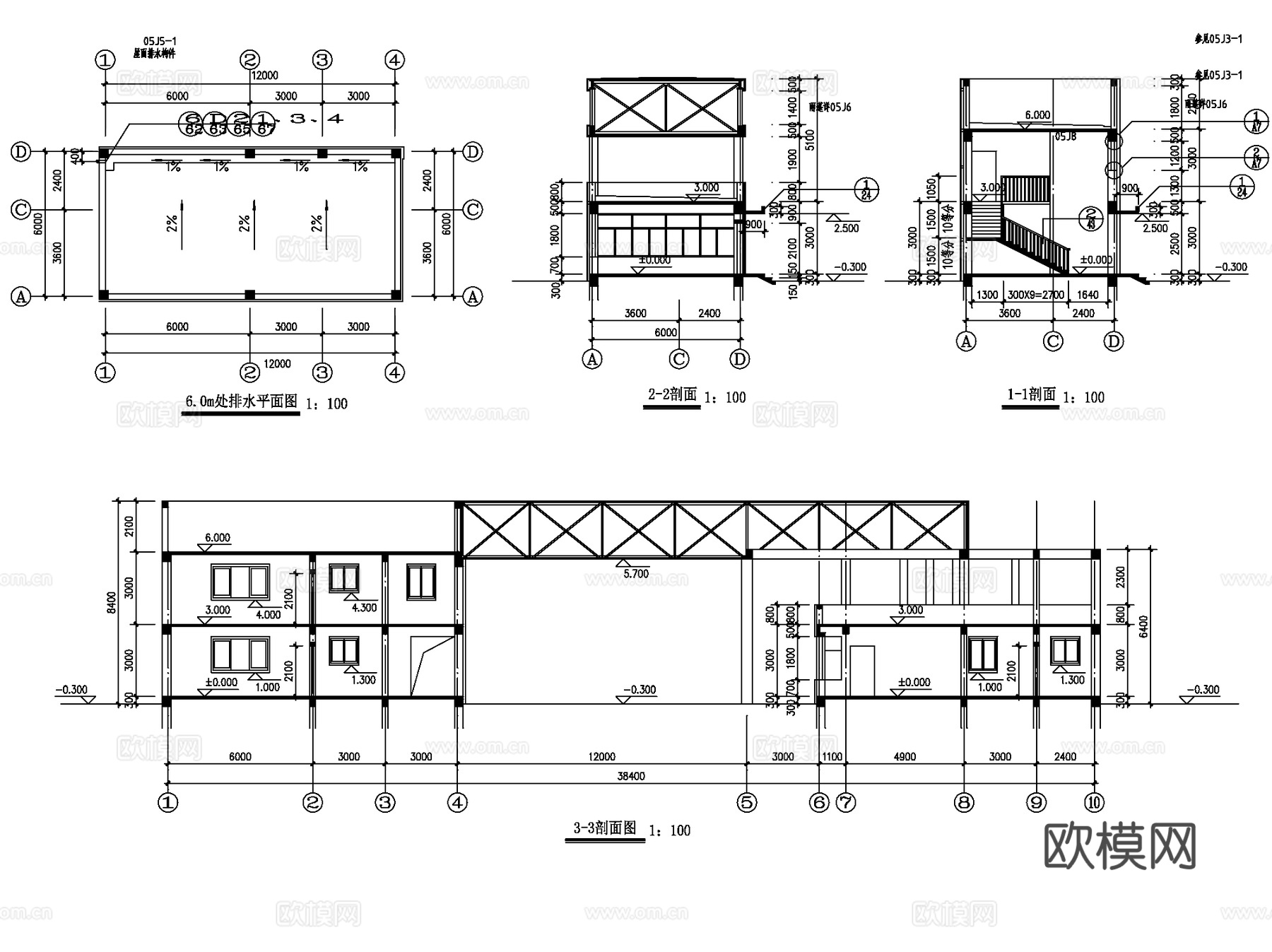
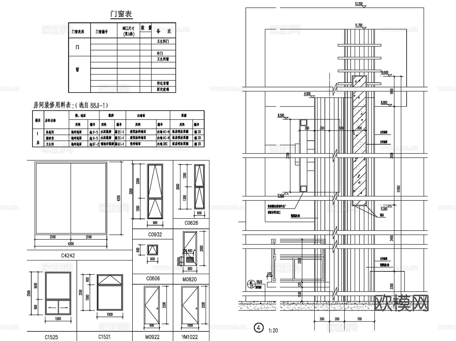
主入口大门门头详图CAD施工图集 3套cad施工图
ID:
5017306
主入口大门门头详图CAD施工图集 3套cad施工图 ID-5017306
所需欧币:
16
发布时间:
2025-10-09
下载请使用电脑登录欧模网,建议先收藏
收藏
分享
皮肤干燥
关注
为您推荐
新中式居住区主入口大门CAD施工图详图集+SU模型cad施工图
中式居住区主入口大门廊架景墙CAD施工详图集全套cad施工图
入口铁艺大门大样详图景观CAD施工图集 15套cad施工图
欧式景观亭CAD详图施工图集cad施工图
屋面节点大样详图CAD施工图集cad施工图
入口门头遮雨棚雨篷节点大样CAD施工详图集 15套cad施工图
景观通用CAD施工图详图集 43套cad施工图
新中式居住区主入口大门景观CAD施工图+SU模型cad施工图
外墙防水节点大样详图CAD施工图集cad施工图
楼梯大样详图CAD施工图集 10套cad施工图
景观雕塑底座做法详图CAD施工图集 7套cad施工图
景观汀步大样详图CAD施工图集 5套cad施工图
新中式景墙CAD施工图详图集 5套cad施工图
幕墙结构节点大样详图CAD施工图集 10套cad施工图
中式玻璃顶棚景观休憩廊架CAD施工图详图集cad施工图
景观休憩休闲廊架CAD施工图详图集 59套cad施工图
室内地面大样做法节点详图CAD施工图集cad施工图
休闲景观桥天桥大样详图CAD施工图集 10套cad施工图
水泵安装节点大样详图CAD施工图集cad施工图
土建通用节点大样详图CAD施工图集 18套cad施工图
点击加载更多
分享到
复制链接
保存海报
取消
请选择收藏夹
+新增收藏夹
新增收藏夹
取消
确认
退出查看