模型详情
1/8
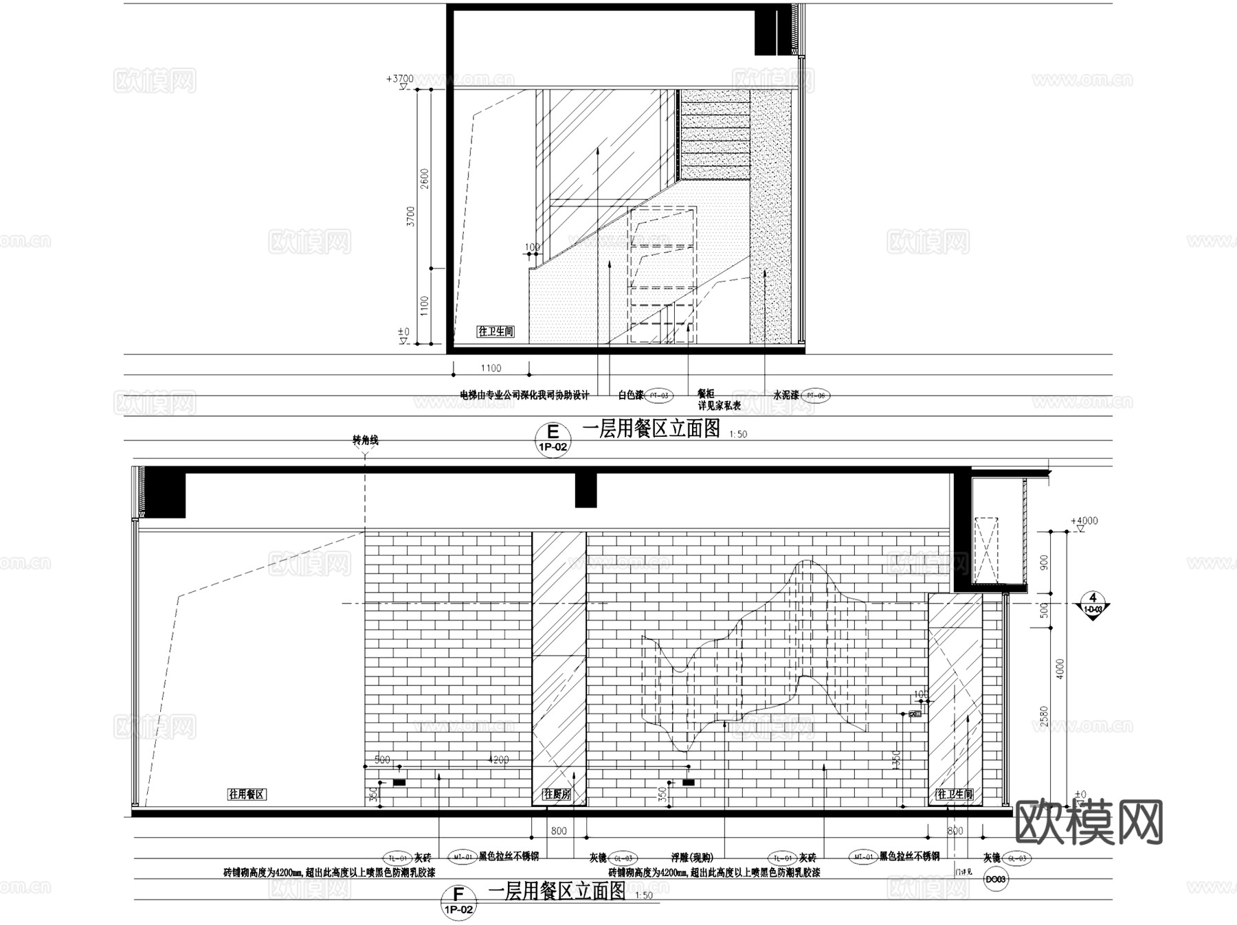
江西新力外滩9号7#拾光火锅店室内工装CAD施工图整套cad施工图
ID:
5017357
江西新力外滩9号7#拾光火锅店室内工装CAD施工图整套cad施工图 ID-5017357
所需欧币:
36
发布时间:
2025-10-09
下载请使用电脑登录欧模网,建议先收藏
收藏
分享
皮肤干燥
关注
为您推荐
新力中心13层办公室室内工装CAD施工图整套+文本cad施工图
鼎悦坊火锅店餐厅室内工装CAD施工图整套cad施工图
常熟虞山天地火锅店餐厅室内工装CAD施工图整套cad施工图
杭州胡须先生餐厅室内工装CAD施工图整套cad施工图
凯乐福玻璃北京展厅室内工装CAD施工图整套cad施工图
Raffles Office 办公室室内工装CAD施工图整套cad施工图
重庆欧式西餐厅室内工装CAD施工图整套cad施工图
新力南昌铂园二层别墅室内家装CAD施工图整套cad施工图
新力铂园叠墅上叠户型室内家装CAD施工图整套cad施工图
新力南昌朝阳新城办公楼室内工装CAD施工图cad施工图
泛谷药业办公室室内工装CAD施工图整套cad施工图
新疆烘焙馆甜品店室内工装CAD施工图整套cad施工图
红舫国际CLUB商务会所室内工装CAD施工图整套cad施工图
南京若航老山酒店室内工装CAD施工图整套cad施工图
INVSON应尚服饰展厅室内工装CAD施工图整套+文本cad施工图
重庆轨道集团李子坝展厅室内工装CAD施工图整套cad施工图
重庆十八梯侘寂风民宿室内工装CAD施工图整套cad施工图
福州凯乐福皮居展厅室内工装CAD施工图整套cad施工图
常州传媒中心影剧院室内工装CAD施工图整套cad施工图
中式滇味彩云餐厅室内工装CAD施工图整套cad施工图
点击加载更多
分享到
复制链接
保存海报
取消
请选择收藏夹
+新增收藏夹
新增收藏夹
取消
确认
退出查看