模型详情
1/8
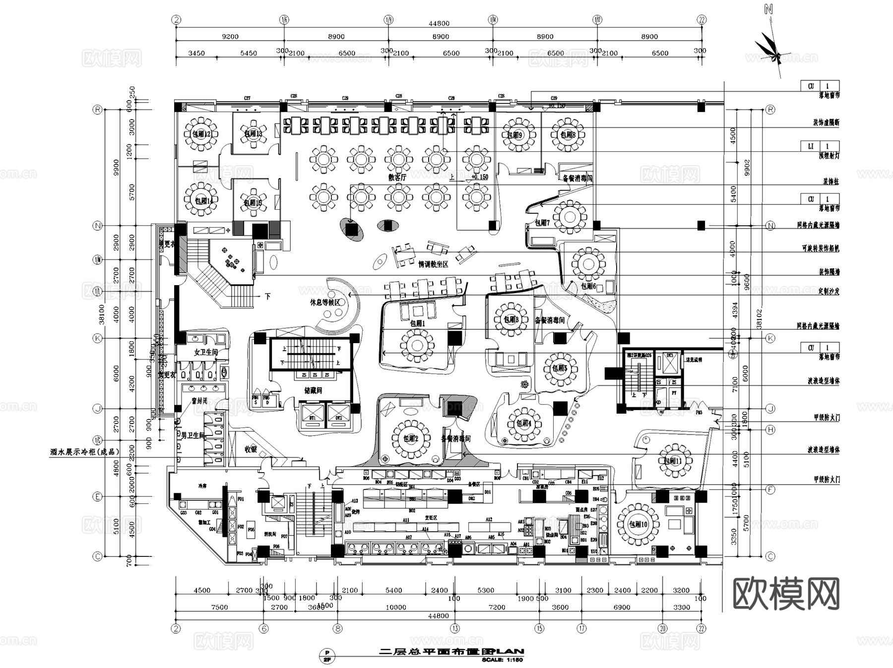
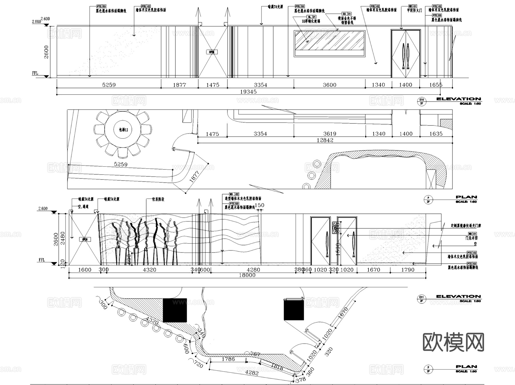
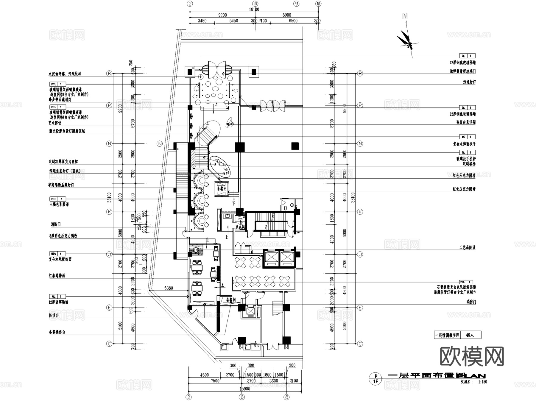
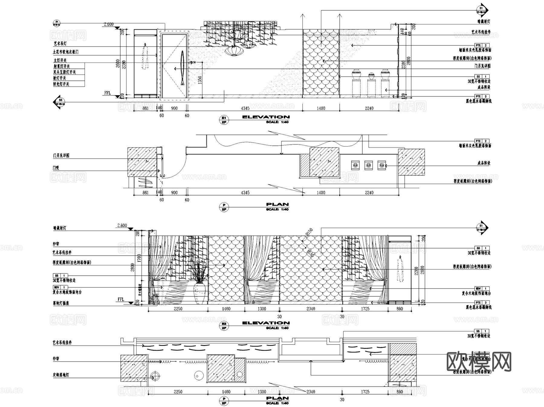
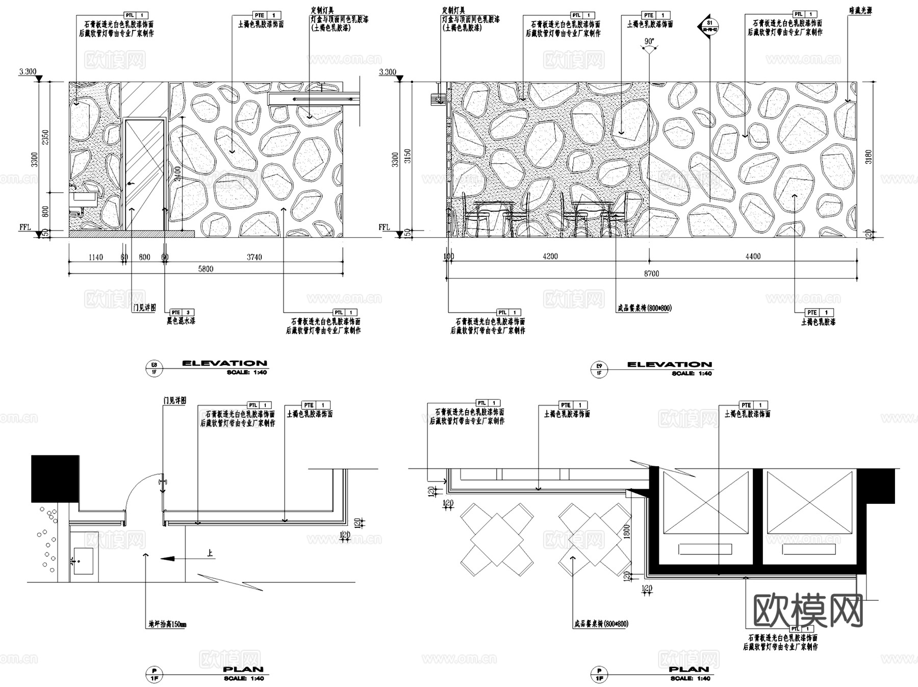
长沙洞庭鱼谣餐厅室内工装CAD施工图整套+文本cad施工图
ID:
5017853
长沙洞庭鱼谣餐厅室内工装CAD施工图整套+文本cad施工图 ID-5017853
所需欧币:
36
发布时间:
2025-10-09
下载请使用电脑登录欧模网,建议先收藏
收藏
分享
皮肤干燥
关注
为您推荐
武汉一风围炉鱼生餐厅室内工装CAD施工图整套cad施工图
INVSON应尚服饰展厅室内工装CAD施工图整套+文本cad施工图
杭州胡须先生餐厅室内工装CAD施工图整套cad施工图
安徽饭店酒店扩建室内工装CAD施工图整套+文本cad施工图
重庆欧式西餐厅室内工装CAD施工图整套cad施工图
戴姆勒中国研发中心办公楼室内工装CAD施工图整套+文本cad施工图
重庆万科办公室室内工装CAD施工图整套+文本cad施工图
成都SAP现代办公室室内工装CAD施工图整套+文本cad施工图
中式滇味彩云餐厅室内工装CAD施工图整套cad施工图
株洲海天渔港酒楼餐厅室内工装CAD施工图整套cad施工图
黄山城市展示馆展陈装饰室内工装CAD施工图整套+文本cad施工图
上海国际财富中心办公楼室内工装CAD施工图整套+文本cad施工图
长威科技软件园企业展厅室内工装CAD施工图整套+文本cad施工图
新中式无锡乡水谣二层餐厅室内工装CAD施工图cad施工图
新力中心13层办公室室内工装CAD施工图整套+文本cad施工图
新荣记上海店海鲜餐厅室内工装CAD施工图整套cad施工图
各主题工业风复古酒吧餐厅室内工装CAD施工图整套cad施工图
堂本家&堂小锅日式餐厅室内工装CAD施工图整套cad施工图
福州朗雅汇海鲜主题餐厅室内工装CAD施工图整套cad施工图
鼎悦坊火锅店餐厅室内工装CAD施工图整套cad施工图
点击加载更多
分享到
复制链接
保存海报
取消
请选择收藏夹
+新增收藏夹
新增收藏夹
取消
确认
退出查看