模型详情
1/8
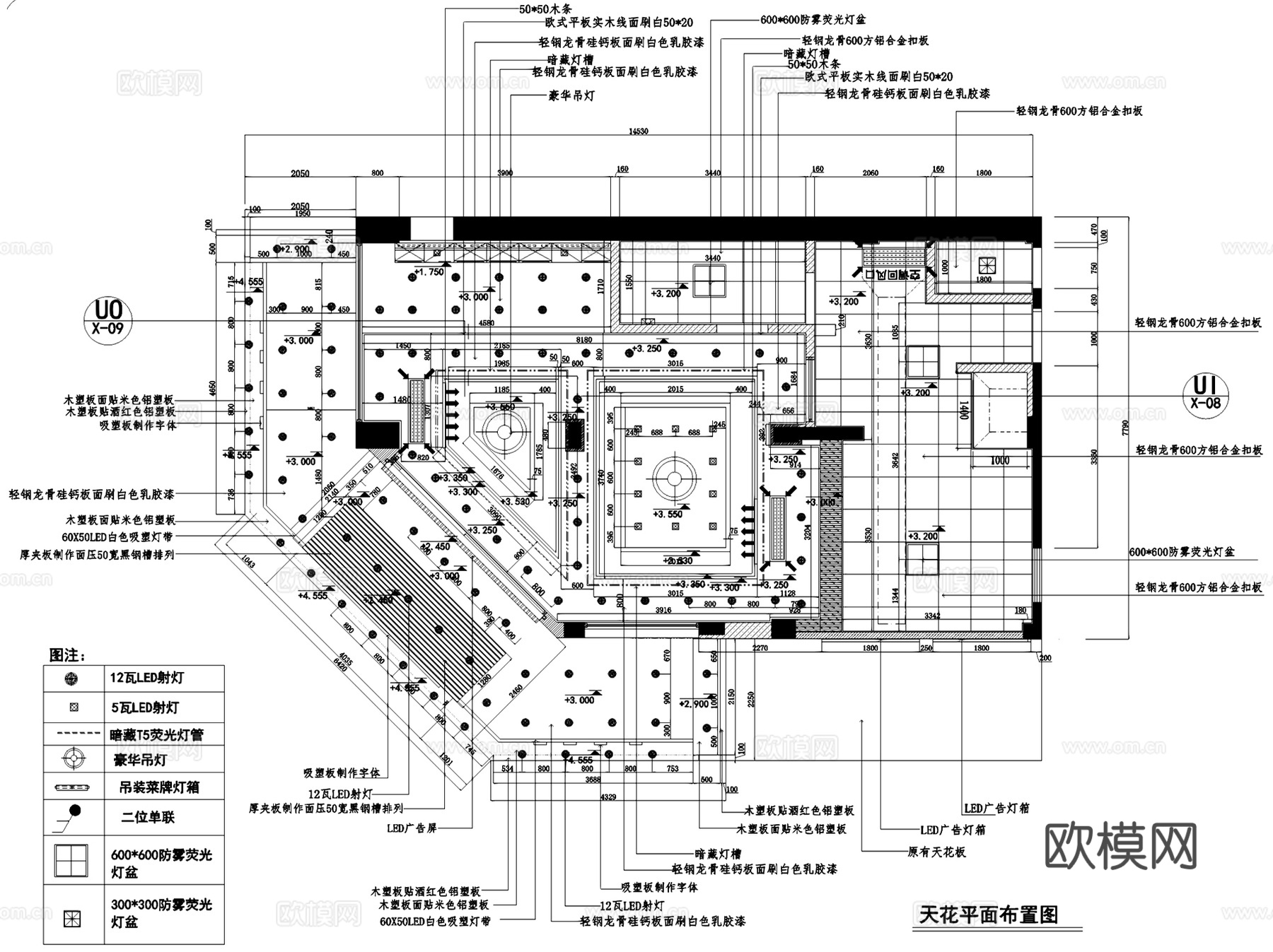
廉江中山四路心思语剧院店面包店室内装饰CAD施工图整套cad施工图
ID:
5018120
廉江中山四路心思语剧院店面包店室内装饰CAD施工图整套cad施工图 ID-5018120
所需欧币:
36
发布时间:
2025-10-09
下载请使用电脑登录欧模网,建议先收藏
收藏
分享
皮肤干燥
关注
为您推荐
廉江心思语同济店面包蛋糕店室内装饰CAD施工图cad施工图
万仟蛋糕甜品店室内装饰CAD施工图整套cad施工图
极致味道蛋糕甜品店室内装饰CAD施工图整套cad施工图
巴黎香吻烘焙蛋糕甜品店室内装饰CAD施工图整套cad施工图
贝可瑞烘焙甜品店室内装饰CAD施工图整套cad施工图
苏州英沃形象美容店室内装饰CAD施工图整套cad施工图
广州西铁城手表腕表店室内装饰CAD施工图整套cad施工图
詹记宫廷桃酥王甜品店室内装饰CAD施工图整套cad施工图
夏芝朵面包甜品店室内装饰CAD施工图整套cad施工图
常州传媒中心影剧院室内工装CAD施工图整套cad施工图
金艾艺甲舒适馆美甲店室内装饰CAD施工图整套cad施工图
美特斯邦威服装店武汉旗舰店室内装饰CAD施工图整套cad施工图
棋牌室休闲娱乐会所室内装饰CAD施工图整套cad施工图
君澜吊顶生活馆商业专卖店室内装饰CAD施工图整套cad施工图
上海红子鸡大酒店一层室内装饰CAD施工图整套cad施工图
北航大北区学生食堂室内装饰CAD施工图整套cad施工图
爱诺艺术婚纱摄影影楼室内装饰CAD施工图整套cad施工图
18套烘焙店面包店CAD施工图cad施工图
工业材料公司展厅办公室室内装饰CAD施工图整套cad施工图
大润发销售中心售楼处室内装饰CAD施工图整套cad施工图
点击加载更多
分享到
复制链接
保存海报
取消
请选择收藏夹
+新增收藏夹
新增收藏夹
取消
确认
退出查看