模型详情
1/8
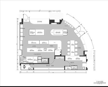
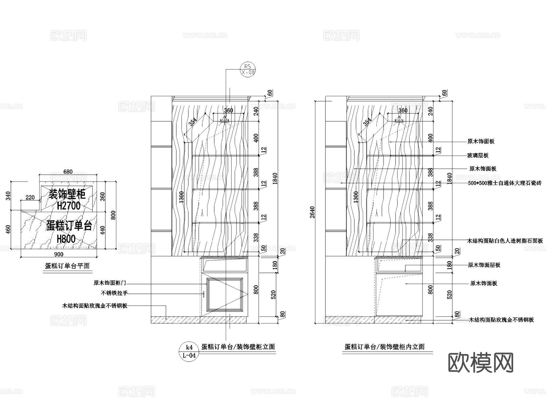
湛江威煌烘焙面包蛋糕店室内装饰CAD施工图集cad施工图
ID:
5018123
湛江威煌烘焙面包蛋糕店室内装饰CAD施工图集cad施工图 ID-5018123
所需欧币:
36
发布时间:
2025-10-09
下载请使用电脑登录欧模网,建议先收藏
收藏
分享
皮肤干燥
关注
为您推荐
Icafe咖啡店面包蛋糕店室内装饰平面CAD施工图集cad施工图
面包烘焙店施工图cad施工图
室内装饰家具图块图库CAD施工图集cad施工图
桑拿洗浴室内装饰CAD施工图集 4套cad施工图
室内装饰工程CAD施工图制图规范图例图集cad施工图
廉江心思语同济店面包蛋糕店室内装饰CAD施工图cad施工图
室内装饰常用家具图块图库CAD施工图集cad施工图
18套烘焙店面包店CAD施工图cad施工图
办公空间室内装饰设计CAD施工图集 23套cad施工图
天花吊顶节点大样室内装饰CAD施工图集cad施工图
金螳螂顶面吊顶室内装饰工艺标准CAD施工图集cad施工图
室内装饰材料收口工艺CAD施工图节点详图集cad施工图
室内装饰家具大样节点图块CAD施工图集 20套cad施工图
室内装饰配套家具平立面图块CAD施工图集cad施工图
银行营业厅ATM机室内装饰CAD施工图集cad施工图
墙面墙体隔墙室内装饰CAD施工图集 26套cad施工图
会议室室内装饰详图CAD施工图集 10套cad施工图
室内装饰设计玻璃大样CAD施工详图集 11套cad施工图
巴黎香吻烘焙蛋糕甜品店室内装饰CAD施工图整套cad施工图
玄关隔断室内装饰节点大样CAD施工图集 160套cad施工图
点击加载更多
分享到
复制链接
保存海报
取消
请选择收藏夹
+新增收藏夹
新增收藏夹
取消
确认
退出查看