模型详情
1/8
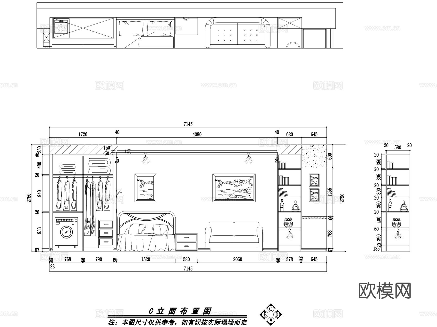
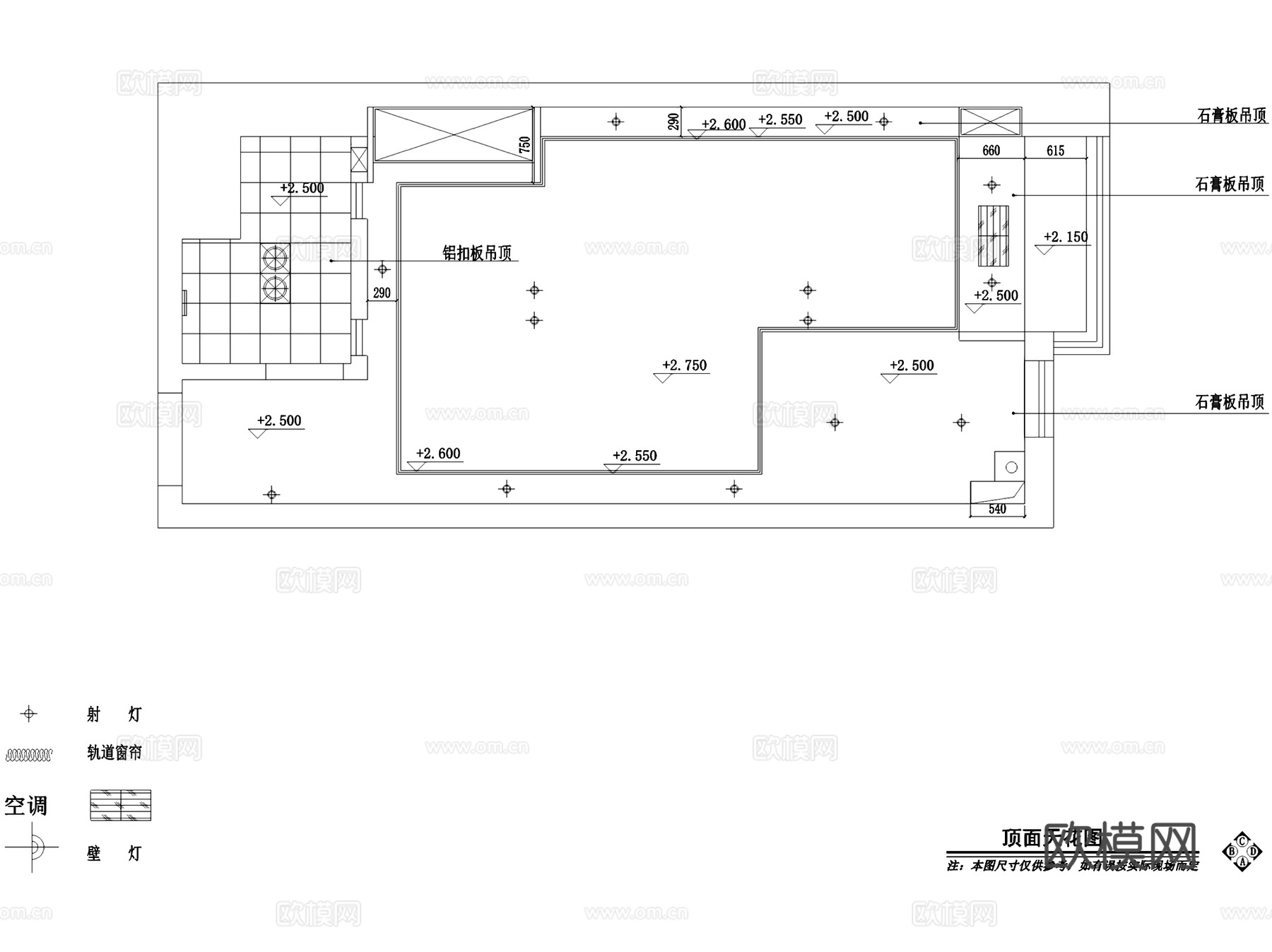
北欧风格公寓一居室室内家装CAD施工图cad施工图
ID:
5018161
北欧风格公寓一居室室内家装CAD施工图cad施工图 ID-5018161
所需欧币:
16
发布时间:
2025-10-09
下载请使用电脑登录欧模网,建议先收藏
收藏
分享
皮肤干燥
关注
为您推荐
中央华城雅居室内家装CAD施工图全套cad施工图
现代风格跃层复式住宅室内家装CAD施工图整套cad施工图
常州国宾一号602室内家装CAD施工图全套cad施工图
美式复古私宅两室一厅一卫室内家装CAD施工图cad施工图
美式两室一厅一卫平层室内家装CAD施工图cad施工图
两室两厅一卫中式室内家装CAD施工图cad施工图
现代风格四室两厅大平层室内家装CAD施工图cad施工图
北欧田园风杭州私宅三室两厅一卫室内家装CAD施工图cad施工图
御河湾住宅室内家装CAD施工图全套cad施工图
室内家装家具设计CAD施工图图块合集cad施工图
翰林珑城两室两厅一卫室内家装CAD施工图cad施工图
汤臣一品新中式复式跃层私宅室内家装CAD施工图整套cad施工图
山西阳泉欧式跃层公寓四室两厅室内家装CAD施工图cad施工图
绿地华尔道北欧风三室两厅一卫室内家装CAD施工图cad施工图
国际百纳三室两厅两卫私宅雅居室内家装CAD施工图cad施工图
北欧风三室两厅私宅室内家装CAD施工图cad施工图
室内家装装饰全套CAD施工图 5套cad施工图
君临新城1706住宅室内家装CAD施工图全套cad施工图
室内装修家装空间模块家具CAD施工图块合集cad施工图
现代平层住宅室内家装CAD施工图全套cad施工图
点击加载更多
分享到
复制链接
保存海报
取消
请选择收藏夹
+新增收藏夹
新增收藏夹
取消
确认
退出查看