模型详情
1/8
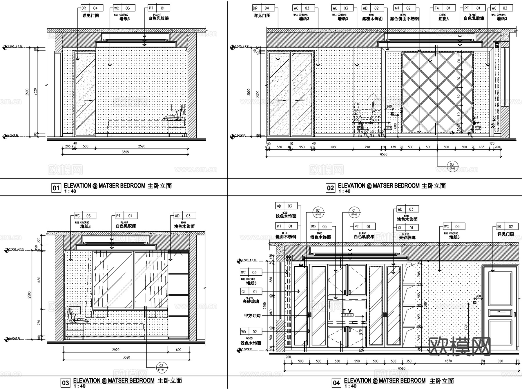
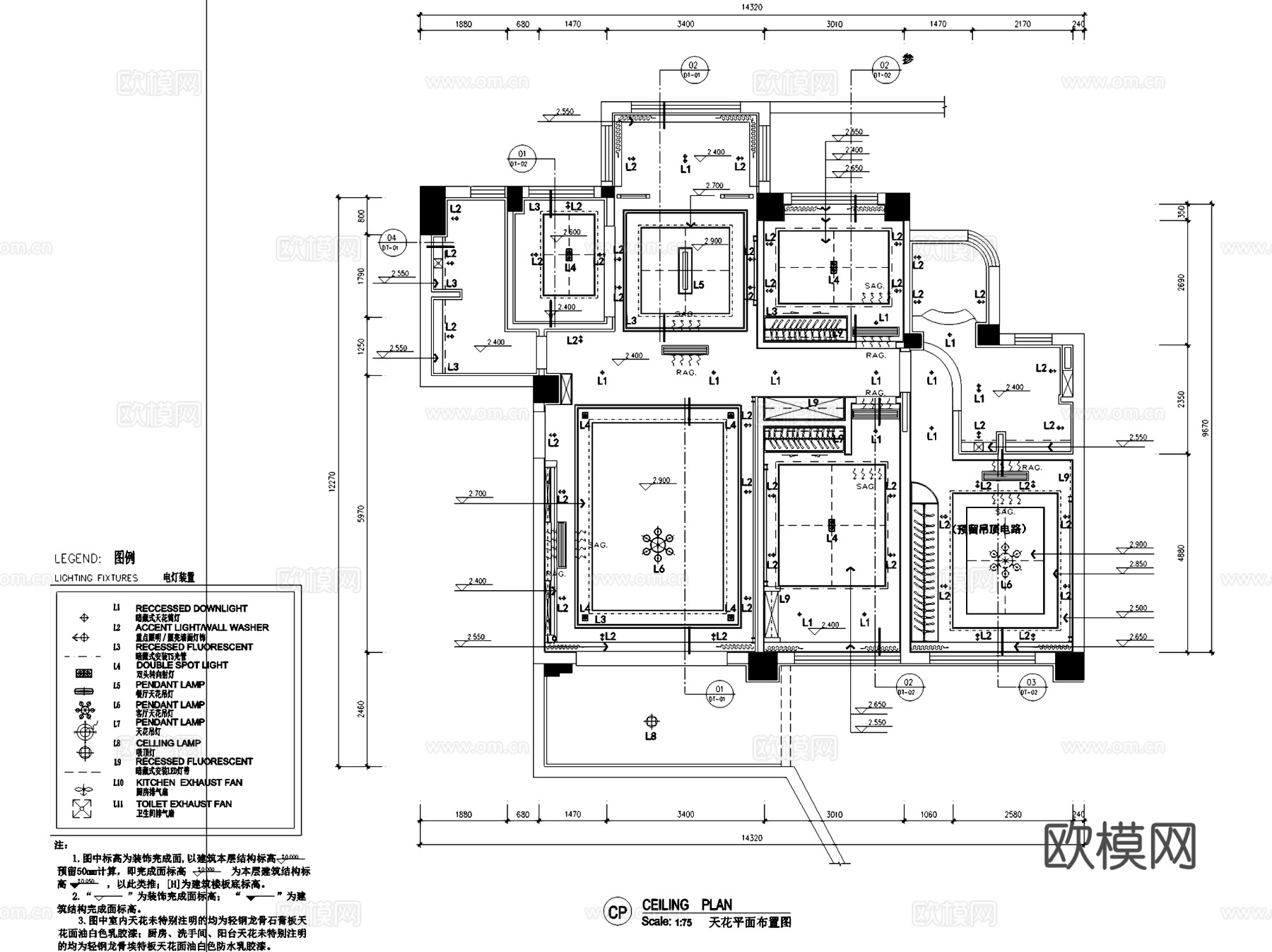
广州东晖名苑三室两厅两卫室内家装CAD施工图整套cad施工图
ID:
5019226
广州东晖名苑三室两厅两卫室内家装CAD施工图整套cad施工图 ID-5019226
所需欧币:
36
发布时间:
2025-10-09
下载请使用电脑登录欧模网,建议先收藏
收藏
分享
皮肤干燥
关注
为您推荐
美式三室两厅两卫室内家装CAD施工图cad施工图
朗诗未来街区-素木三室两厅两卫室内家装CAD施工图整套cad施工图
欧式三室两厅两卫私宅室内家装CAD施工图cad施工图
新中式三室两厅两卫室内家装CAD施工图cad施工图
三室两厅两卫大平层室内家装CAD施工图cad施工图
欧式三室两厅两卫私宅室内家装CAD施工图cad施工图
毫州现代三室两厅两卫室内家装CAD施工图cad施工图
汕尾融创109户型三室两厅两卫室内家装CAD施工图整套cad施工图
奥山世纪三室两厅两卫室内家装CAD施工图cad施工图
揽月苑6#201三室两厅两卫室内家装CAD施工图+3Dmaxcad施工图
世贸1幢2902三室两厅两卫室内家装CAD施工图cad施工图
株洲御山河苑2期7-508三室两厅两卫私宅室内家装CADcad施工图
厦门北欧风三室两厅两卫私宅室内家装CAD施工图cad施工图
西安蔚蓝观园三室两厅两卫中式室内家装CAD施工图cad施工图
富贵天城201室三室两厅两卫室内家装CAD施工图cad施工图
美式简约三室两厅两卫一厨私宅室内家装CAD施工图cad施工图
复地东湖国际欧式三室两厅两卫室内家装CAD施工图cad施工图
广州颐和上院私宅室内家装CAD施工图整套cad施工图
两室两厅两卫美式室内家装CAD施工图cad施工图
新疆私宅三室两厅一卫室内家装CAD施工图整套+3Dmax模型cad施工图
点击加载更多
分享到
复制链接
保存海报
取消
请选择收藏夹
+新增收藏夹
新增收藏夹
取消
确认
退出查看