模型详情
1/8
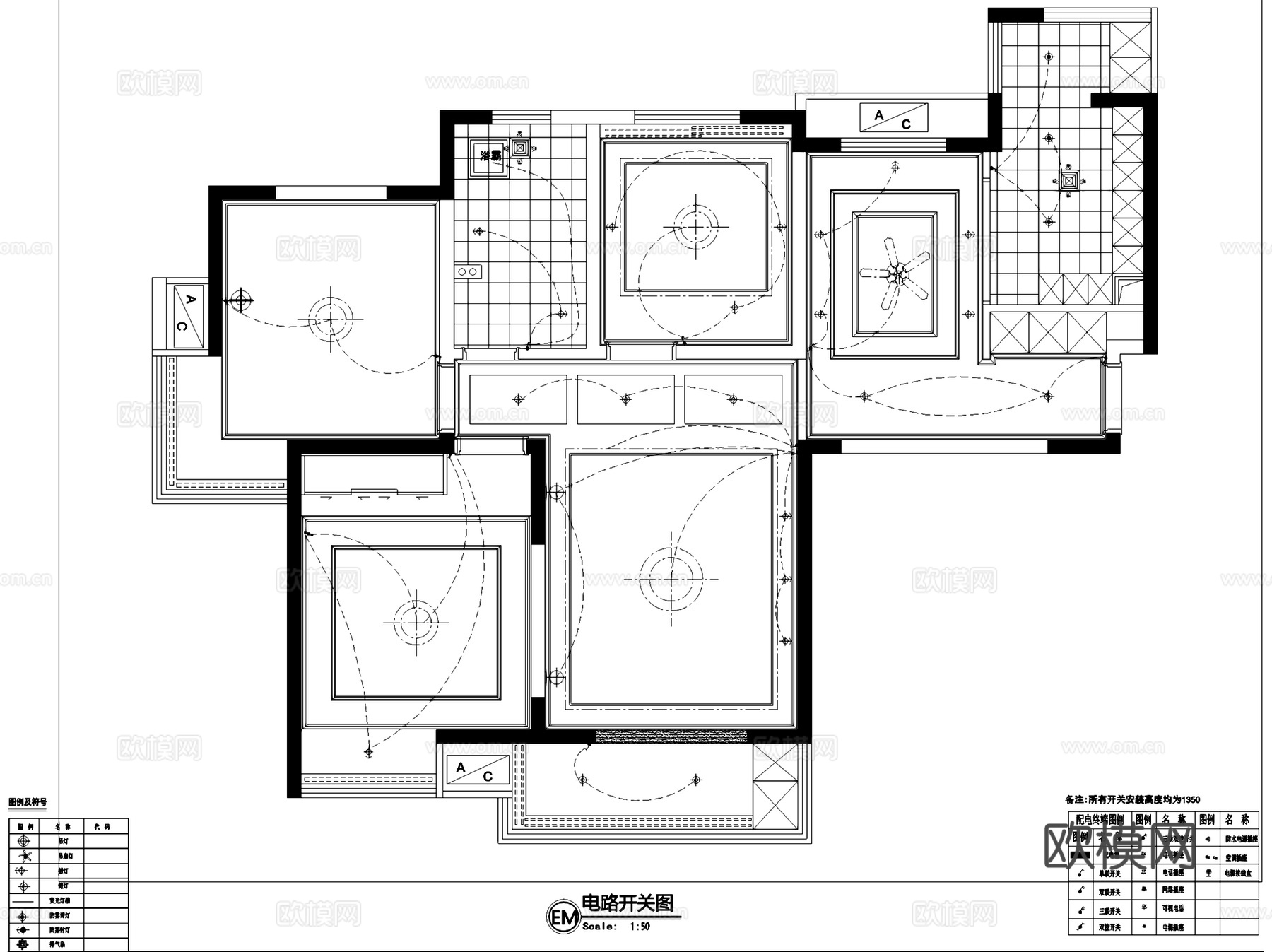
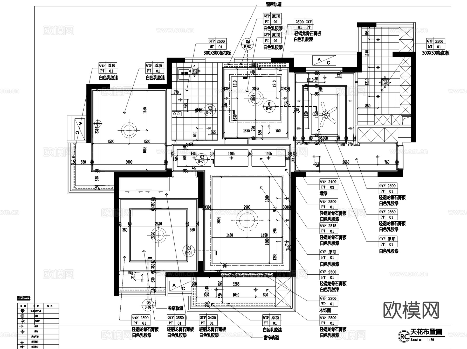
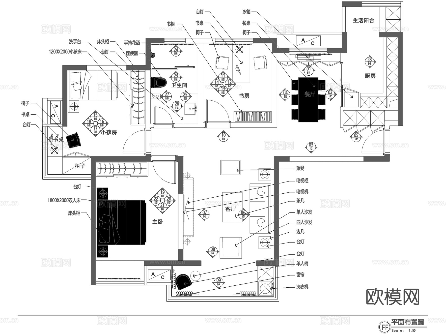
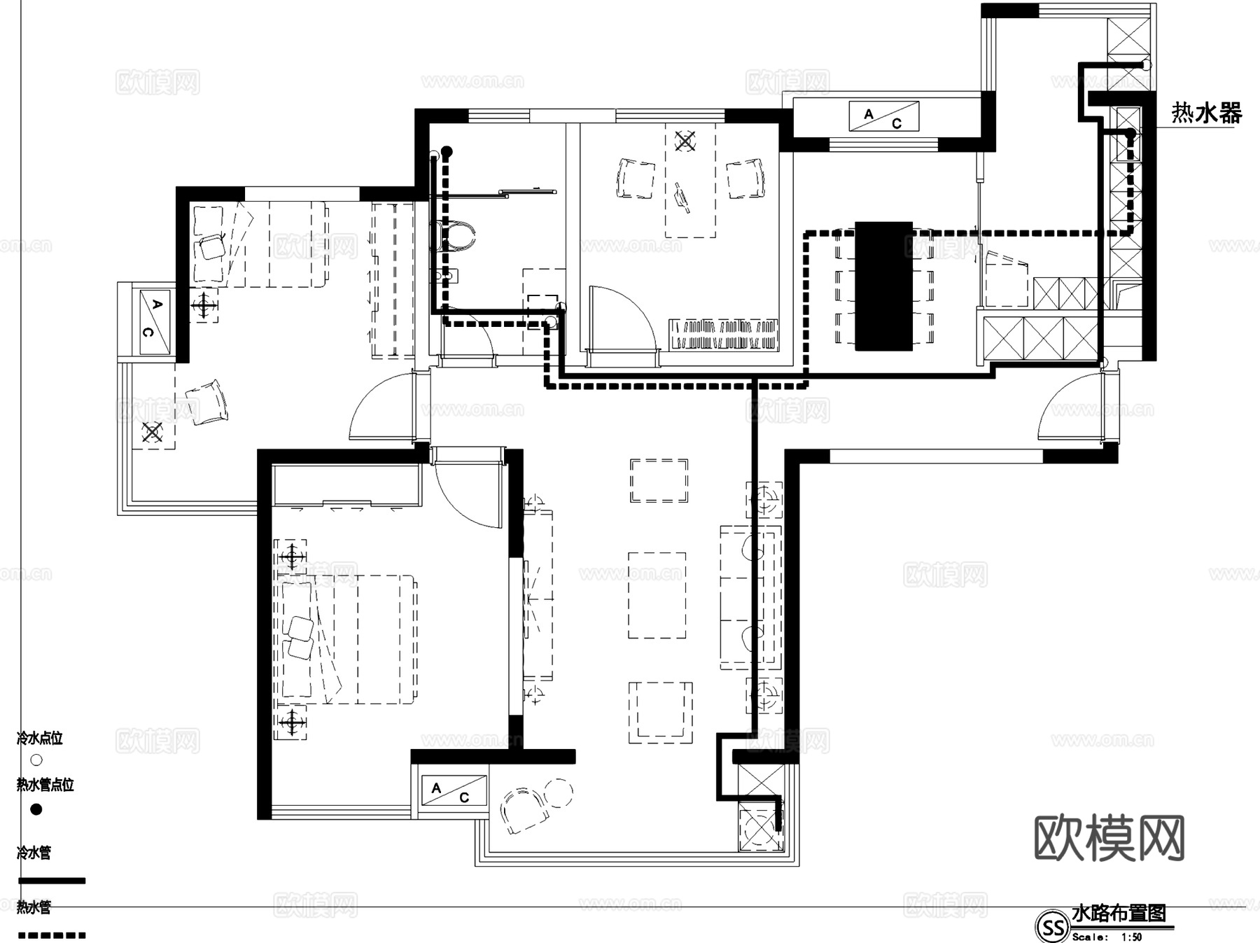
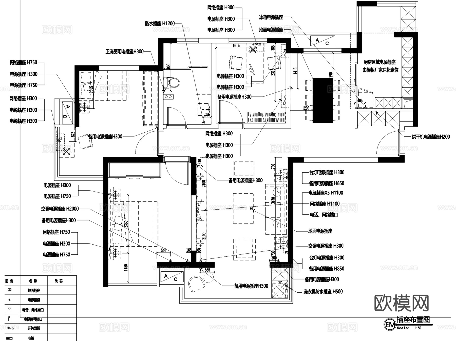
美式三室两厅一卫私宅室内家装平面系统图CAD施工图cad施工图
ID:
5029368
美式三室两厅一卫私宅室内家装平面系统图CAD施工图cad施工图 ID-5029368
所需欧币:
16
发布时间:
2025-10-10
下载请使用电脑登录欧模网,建议先收藏
收藏
分享
皮肤干燥
关注
为您推荐
欧式田园风三室两厅一卫私宅室内家装CAD施工图cad施工图
北欧田园风杭州私宅三室两厅一卫室内家装CAD施工图cad施工图
地中海风私宅三室两厅一卫室内家装CAD施工图cad施工图
美式复古私宅两室一厅一卫室内家装CAD施工图cad施工图
北欧风三室两厅私宅室内家装CAD施工图cad施工图
新疆私宅三室两厅一卫室内家装CAD施工图整套+3Dmax模型cad施工图
美式简约三室两厅两卫一厨私宅室内家装CAD施工图cad施工图
欧式三室两厅两卫私宅室内家装CAD施工图cad施工图
欧式三室两厅两卫私宅室内家装CAD施工图cad施工图
七里香都24#2104三室两厅一卫室内家装平面系统图CADcad施工图
美式三室两厅两卫室内家装CAD施工图cad施工图
美式四室两厅两卫私宅室内家装CAD施工图cad施工图
绿地华尔道北欧风三室两厅一卫室内家装CAD施工图cad施工图
厦门北欧风三室两厅两卫私宅室内家装CAD施工图cad施工图
美式两室一厅一卫平层室内家装CAD施工图cad施工图
广州颐和上院私宅室内家装CAD施工图整套cad施工图
国际百纳三室两厅两卫私宅雅居室内家装CAD施工图cad施工图
宏润国际花园三室两厅一卫室内家装CAD施工图cad施工图
两室两厅一卫中式室内家装CAD施工图cad施工图
上海私宅现代简约清新室内家装立面装饰CAD施工图cad施工图
点击加载更多
分享到
复制链接
保存海报
取消
请选择收藏夹
+新增收藏夹
新增收藏夹
取消
确认
退出查看