模型详情
1/8
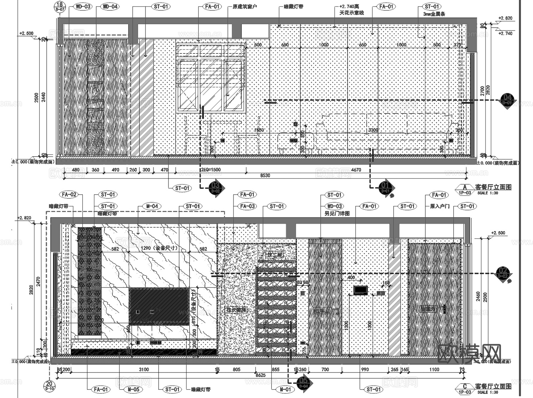
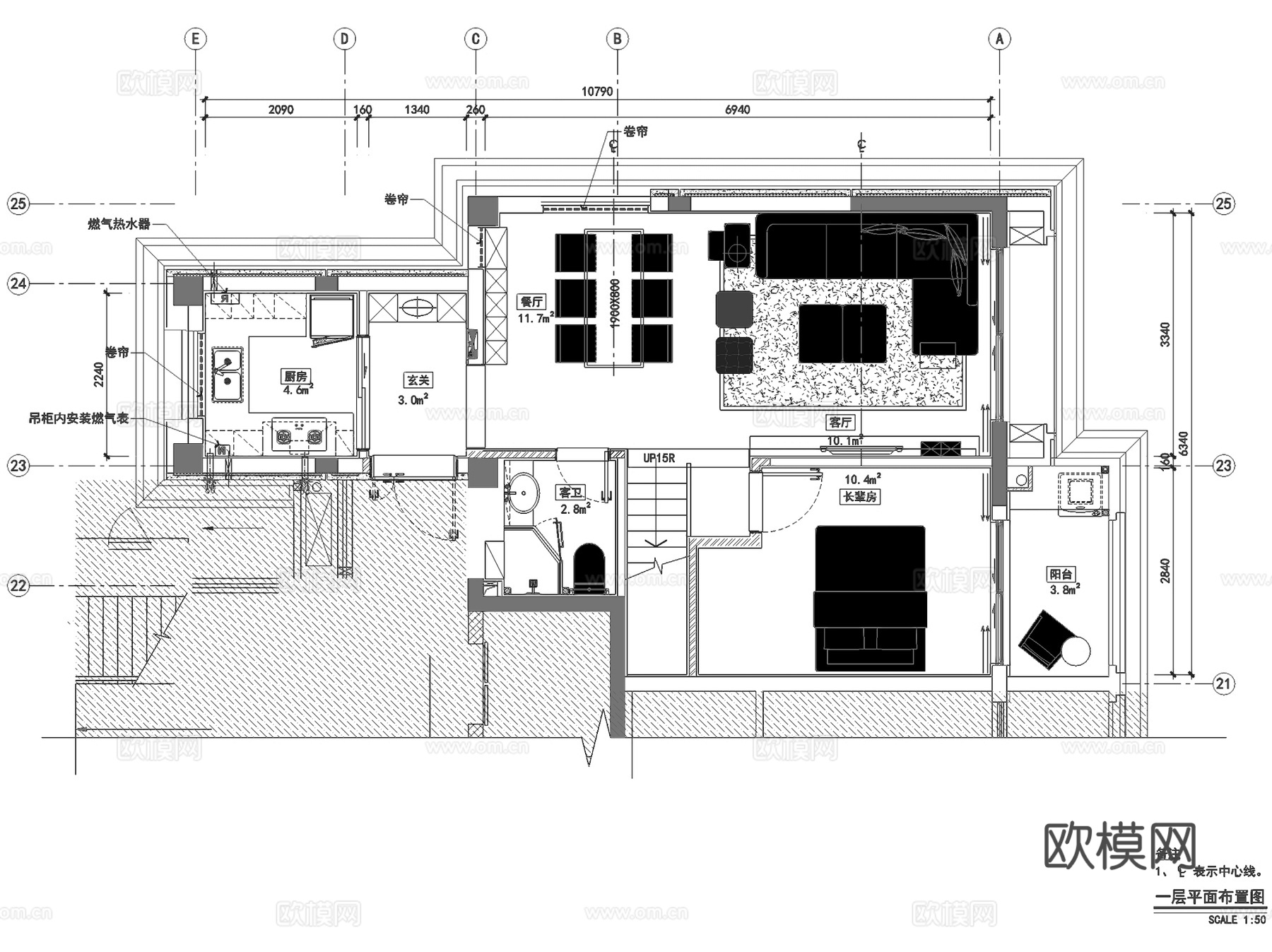
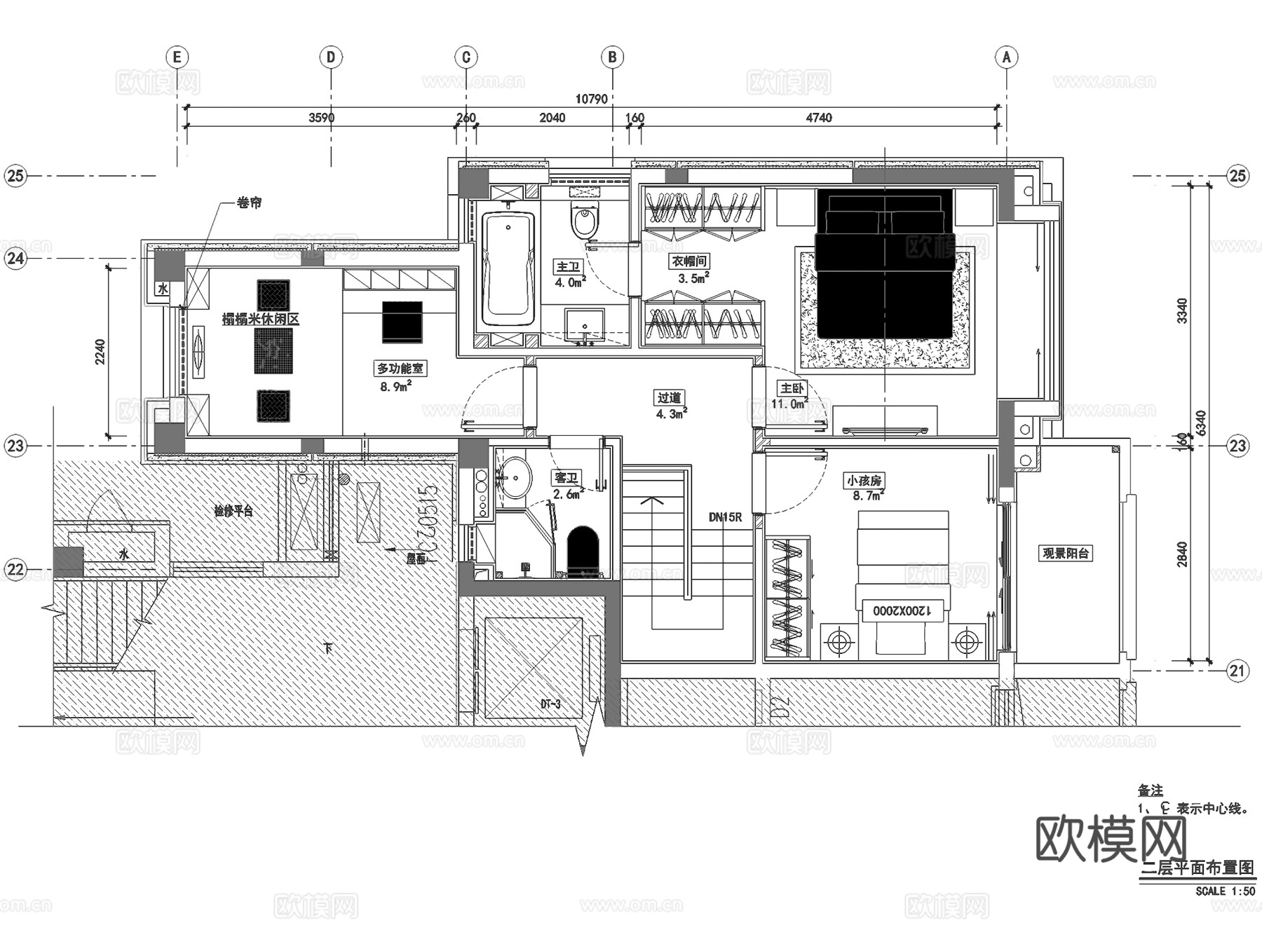
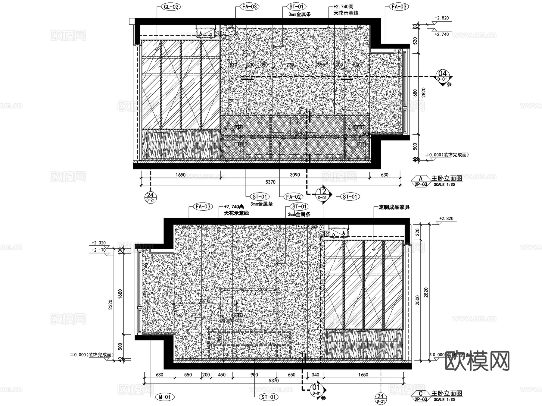
上海招商海德花园五期下叠二层别墅样板房室内家装CAD施工图整cad施工图
ID:
5029462
上海招商海德花园五期下叠二层别墅样板房室内家装CAD施工图整cad施工图 ID-5029462
所需欧币:
36
发布时间:
2025-10-10
下载请使用电脑登录欧模网,建议先收藏
收藏
分享
皮肤干燥
关注
为您推荐
方兴上海大宁东区下叠墅A-1a户型室内家装CAD施工图cad施工图
雅居乐郑州龙湖215下叠户型中式别墅室内家装CAD施工图整套cad施工图
新力铂园叠墅上叠户型室内家装CAD施工图整套cad施工图
新力南昌铂园二层别墅室内家装CAD施工图整套cad施工图
绿城桃李春风E1二层别墅样板房室内家装CAD施工图整套cad施工图
贵谷16#04A5户型二层别墅样板房室内家装CAD施工图cad施工图
上海东樱C-2户型样板房室内家装CAD施工图cad施工图
上海私宅现代简约清新室内家装立面装饰CAD施工图cad施工图
现代黑白风二层别墅室内家装CAD施工图+3Dmax模型cad施工图
丽湾域43#402北欧风二层别墅室内家装CAD施工图cad施工图
佛山招商依云雍景湾四层别墅样板房室内家装CAD3Dmax模型cad施工图
二层庭院别墅建筑CAD施工图cad施工图
成都麓山国际二层别墅室内家装CAD施工图+3Dmax模型cad施工图
燕西华府联排二层别墅63#室内家装CAD施工图+3Dmaxcad施工图
新中式三层别墅室内家装CAD施工图cad施工图
懋源孙河A-2叠墅户型室内家装CAD施工图整套cad施工图
海德双人沙发cad施工图
上海欧式四室两厅三卫私宅室内家装CAD施工图cad施工图
上海四季酒店二层中餐厅室内工装CAD施工图整套cad施工图
海德公园7#609三室两厅两卫室内家装CAD施工图cad施工图
点击加载更多
分享到
复制链接
保存海报
取消
请选择收藏夹
+新增收藏夹
新增收藏夹
取消
确认
退出查看