模型详情
1/8
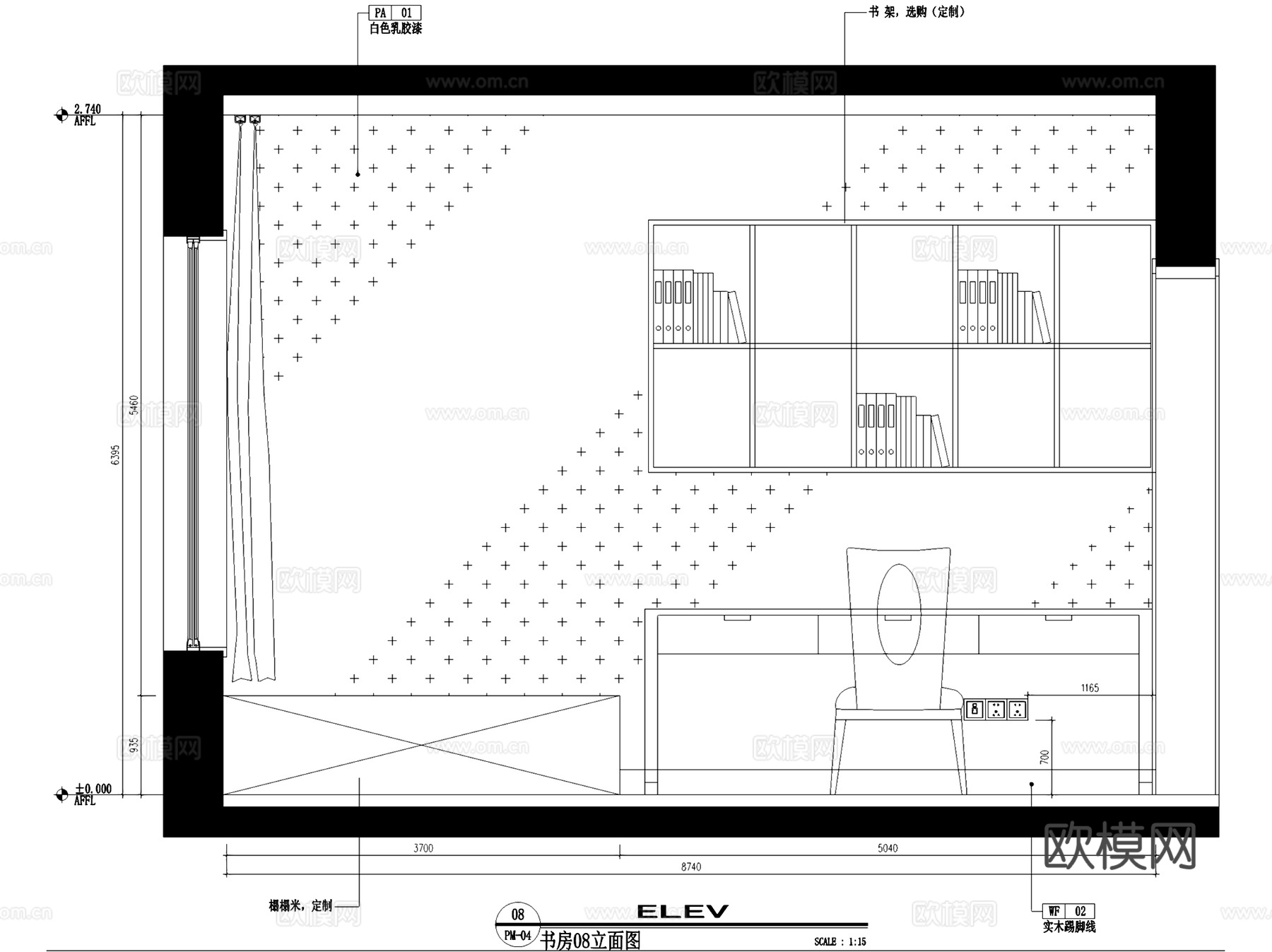
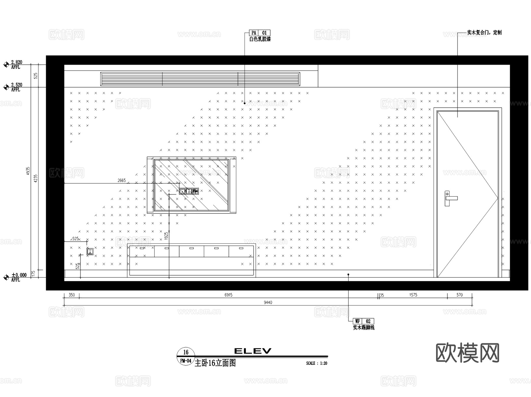
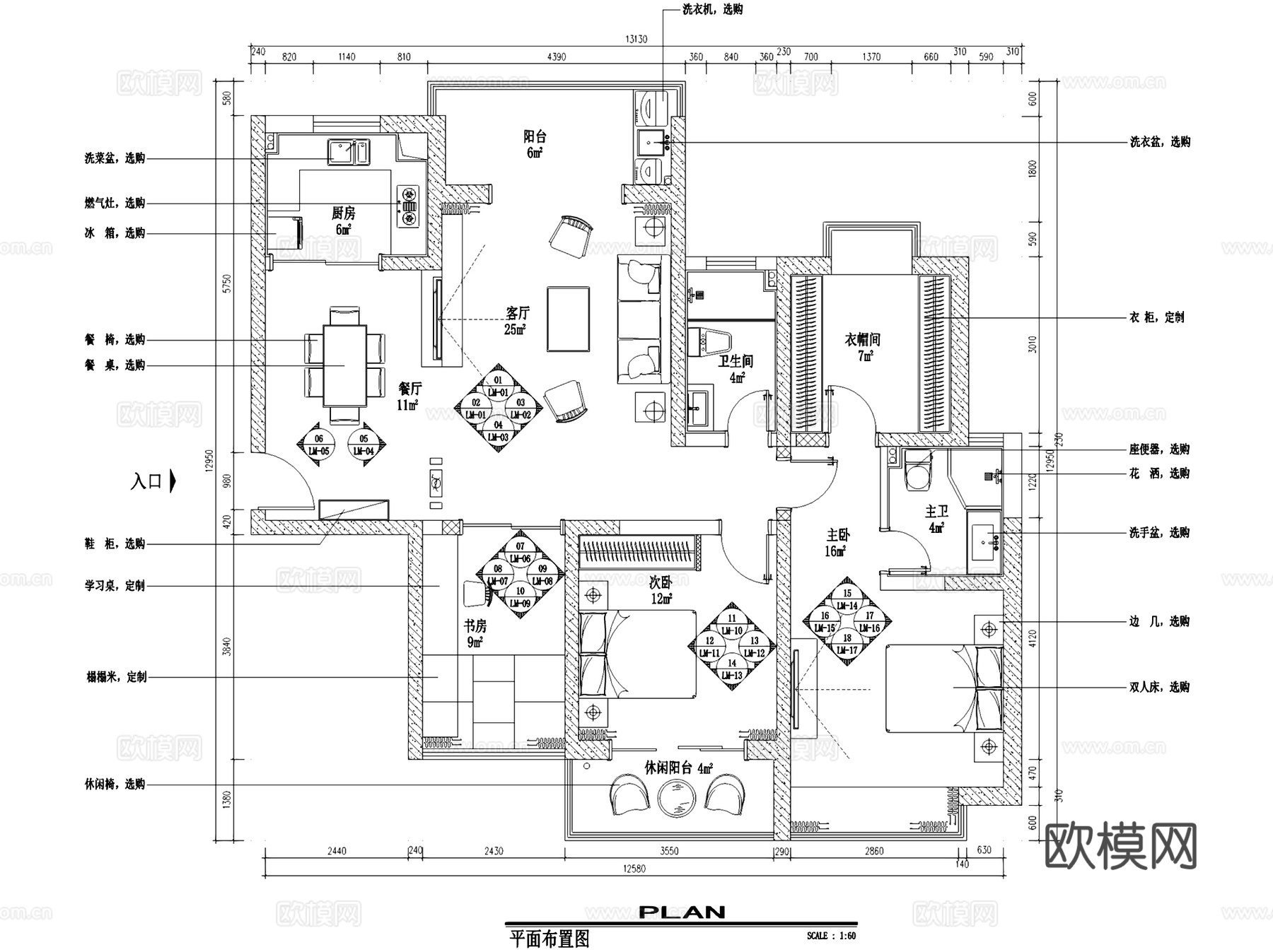
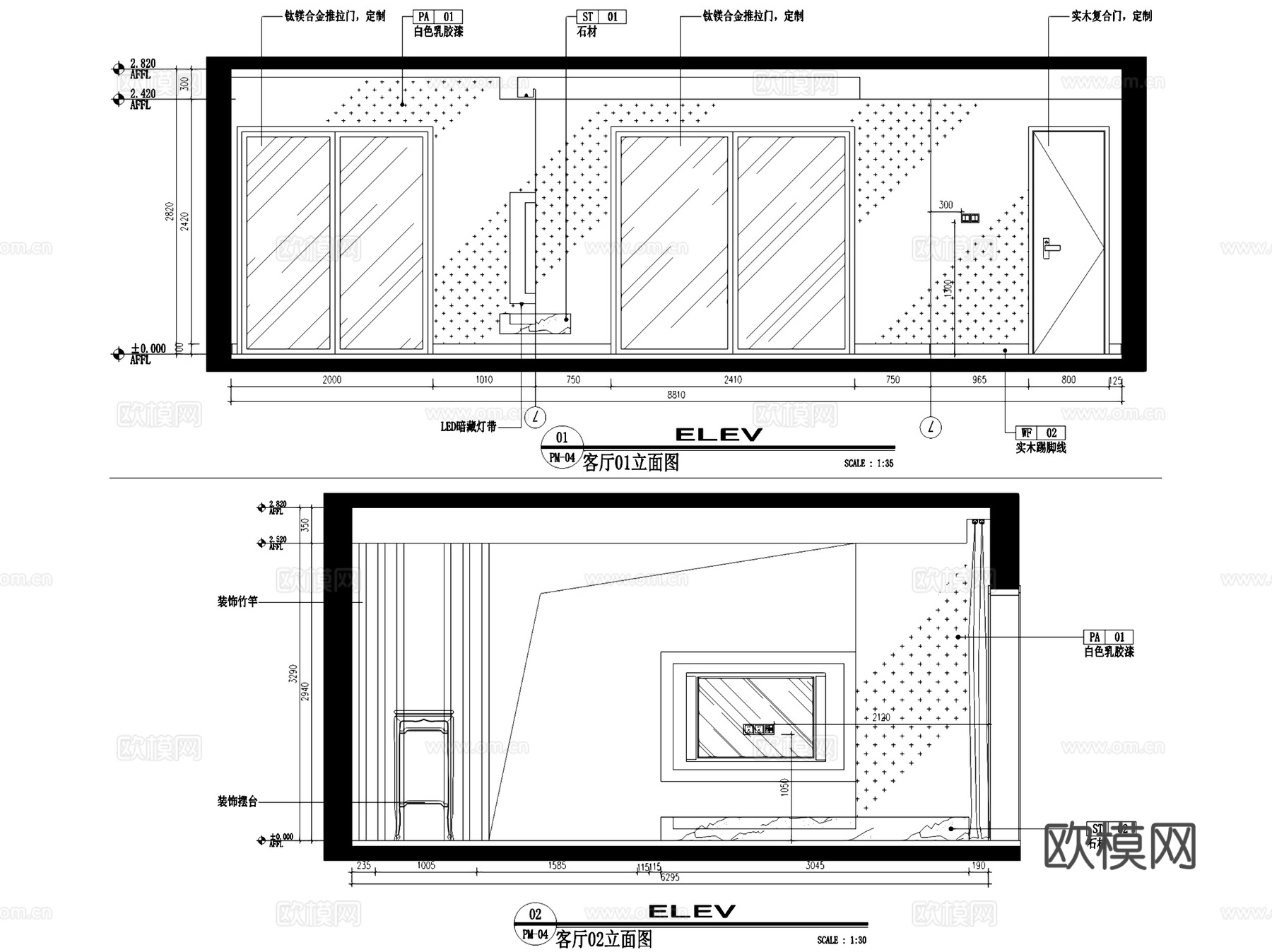
天虹国际3#2604三室两厅室内家装CAD施工图cad施工图
ID:
5029696
天虹国际3#2604三室两厅室内家装CAD施工图cad施工图 ID-5029696
所需欧币:
36
发布时间:
2025-10-10
下载请使用电脑登录欧模网,建议先收藏
收藏
分享
皮肤干燥
关注
为您推荐
复地东湖国际欧式三室两厅两卫室内家装CAD施工图cad施工图
国际百纳三室两厅两卫私宅雅居室内家装CAD施工图cad施工图
富贵天城201室三室两厅两卫室内家装CAD施工图cad施工图
赤壁西湖国际广场住宅室内家装CAD施工图全套cad施工图
宏润国际花园三室两厅一卫室内家装CAD施工图cad施工图
美式三室两厅两卫室内家装CAD施工图cad施工图
武汉复地东湖国际住宅室内家装CAD施工图全套cad施工图
北欧风三室两厅私宅室内家装CAD施工图cad施工图
欧式三室两厅两卫私宅室内家装CAD施工图cad施工图
欧式三室两厅两卫私宅室内家装CAD施工图cad施工图
毫州现代三室两厅两卫室内家装CAD施工图cad施工图
新中式三室两厅两卫室内家装CAD施工图cad施工图
三室两厅两卫大平层室内家装CAD施工图cad施工图
奥山世纪三室两厅两卫室内家装CAD施工图cad施工图
成都仁和春天国际花园室内家装CAD施工图cad施工图
地中海风三室两厅四卫室内家装CAD施工图cad施工图
湖墅金典3#2605美式三室两厅室内家装CAD施工图cad施工图cad施工图
世贸1幢2902三室两厅两卫室内家装CAD施工图cad施工图
富阳山水国际复式室内家装CAD施工图+3Dmax模型cad施工图
欧式田园风三室两厅一卫私宅室内家装CAD施工图cad施工图
点击加载更多
分享到
复制链接
保存海报
取消
请选择收藏夹
+新增收藏夹
新增收藏夹
取消
确认
退出查看