模型详情
1/1
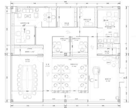
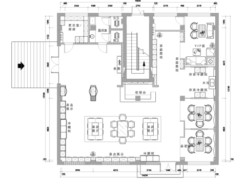
CCD富力500平别墅整套设计图cad施工图
ID:
5056786
CCD富力500平别墅整套设计图cad施工图 ID-5056786
所需欧币:
16
发布时间:
2025-10-16
下载请使用电脑登录欧模网,建议先收藏
收藏
分享
裴工
关注
为您推荐
别墅整套设计图cad施工图
星河别墅整套设计图包含平面和立面图cad施工图
500平茶楼 最新全套施工图合集cad施工图
别墅平面,别墅彩平cad施工图
新力南昌铂园二层别墅室内家装CAD施工图整套cad施工图
500平办公室 最新全套施工图合集cad施工图
上海中信泰富青浦朱家角二层别墅样板房室内家装CAD施工图整套cad施工图
500平办公室 最新平面施工图合集cad施工图
500平办公室 最新平面施工图合集cad施工图
意大利风三层别墅室内家装CAD施工图整套cad施工图
中式三层别墅私宅室内家装CAD施工图整套cad施工图
普宁中式二层别墅室内家装CAD施工图整套cad施工图
新力铂园叠墅上叠户型室内家装CAD施工图整套cad施工图
别墅花园庭院景观设计整套CAD施工图集 13套cad施工图
新力中心13层办公室室内工装CAD施工图整套+文本cad施工图
欧式古典二层别墅室内家装CAD施工图整套cad施工图
遂宁大院轻奢三层别墅室内家装CAD施工图整套cad施工图
泸州新中式三层别墅室内家装CAD施工图整套cad施工图
万邦国际138㎡平层样板间室内家装CAD施工图整套cad施工图
临平玉园销售展厅售楼处室内工装CAD施工图整套cad施工图
点击加载更多
分享到
复制链接
保存海报
取消
请选择收藏夹
+新增收藏夹
新增收藏夹
取消
确认
退出查看