模型详情
1/8
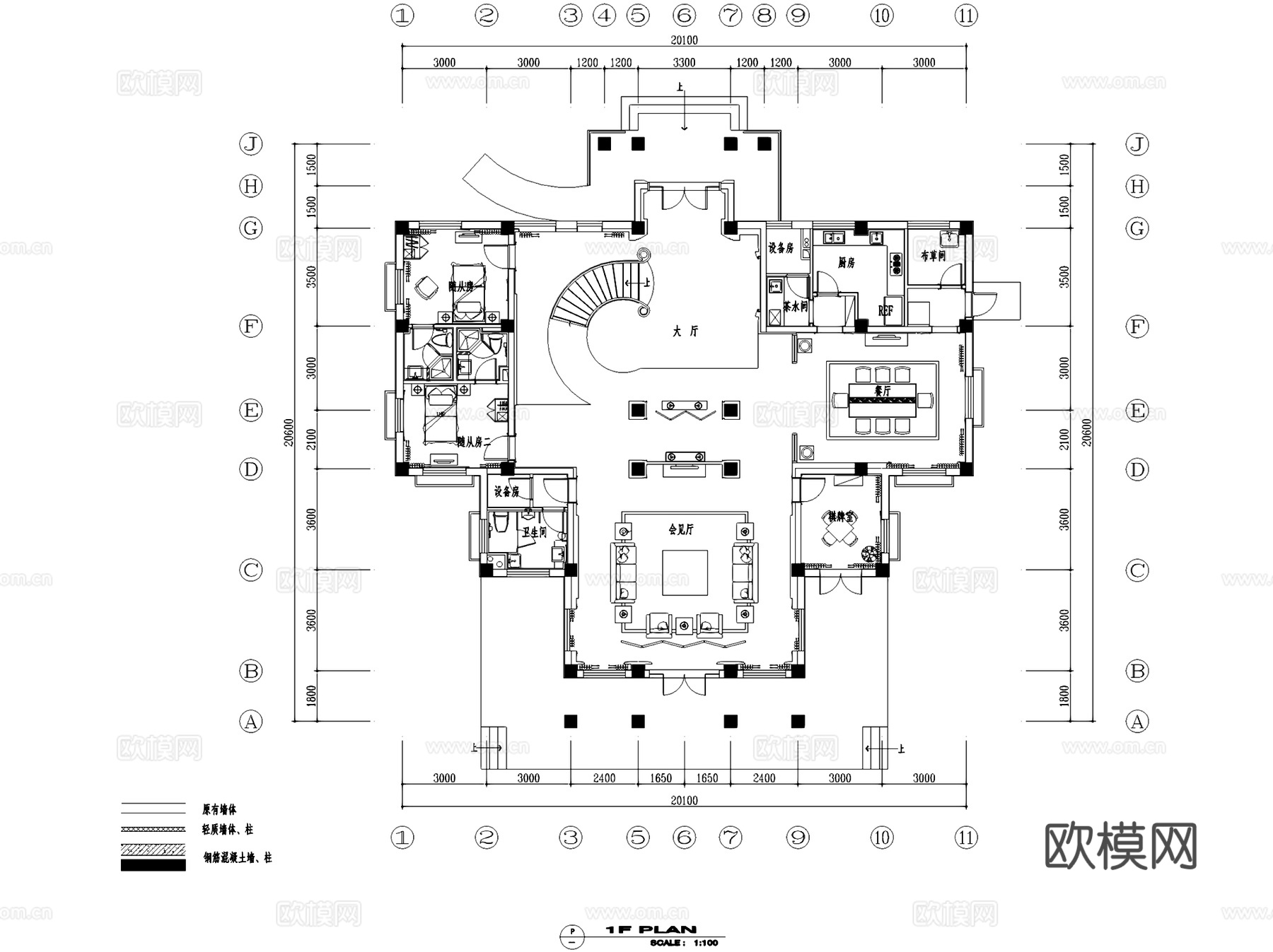
平顶山建国迎宾馆酒店室内工装CAD施工图cad施工图
ID:
5059067
平顶山建国迎宾馆酒店室内工装CAD施工图cad施工图 ID-5059067
所需欧币:
36
发布时间:
2025-10-17
下载请使用电脑登录欧模网,建议先收藏
收藏
分享
皮肤干燥
关注
为您推荐
绍兴园林会议酒店室内工装CAD施工图cad施工图
青岛德馨温泉酒店室内工装CAD施工图cad施工图
四甲大酒店餐厅室内工装CAD施工图cad施工图
福清卓越酒店大堂及餐厅室内工装CAD施工图cad施工图
酒店首层及客房层室内工装平面CAD施工图cad施工图
深圳欢乐假日酒店室内工装CAD施工图cad施工图
合肥洲际酒店公区室内工装CAD施工图cad施工图
上海华侨城宝格丽酒店室内工装CAD施工图cad施工图
家富国际大酒店室内工装CAD施工图cad施工图
中式宾馆酒店室内工装CAD施工图cad施工图
重庆希尔顿酒店室内工装CAD施工图cad施工图
利川酒店室内工装平面图CAD施工图cad施工图
牡丹苑大酒店餐厅室内工装CAD施工图cad施工图
宁波欣达东吴酒店室内工装CAD施工图cad施工图
柬埔寨酒店法式餐厅及雪茄吧室内工装CAD施工图cad施工图
深圳京基瑞吉酒店室内工装CAD施工图cad施工图
洛阳凯悦酒店室内工装平面CAD施工图+文本cad施工图
广州青蓝莓主题酒店室内工装平面CAD施工图cad施工图
歙县花园酒店室内工装CAD施工图cad施工图
沙特TAIF塔伊夫酒店室内工装CAD施工图cad施工图
点击加载更多
分享到
复制链接
保存海报
取消
请选择收藏夹
+新增收藏夹
新增收藏夹
取消
确认
退出查看