模型详情
1/8
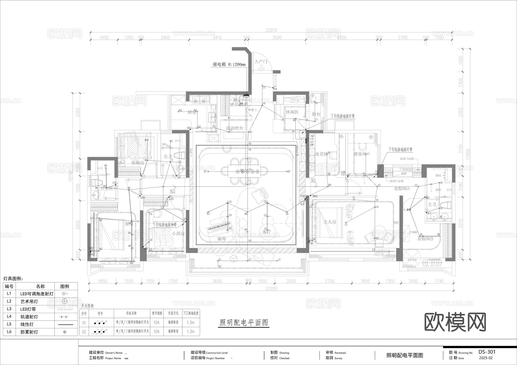
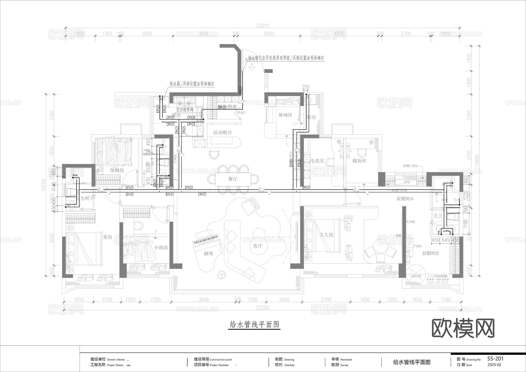
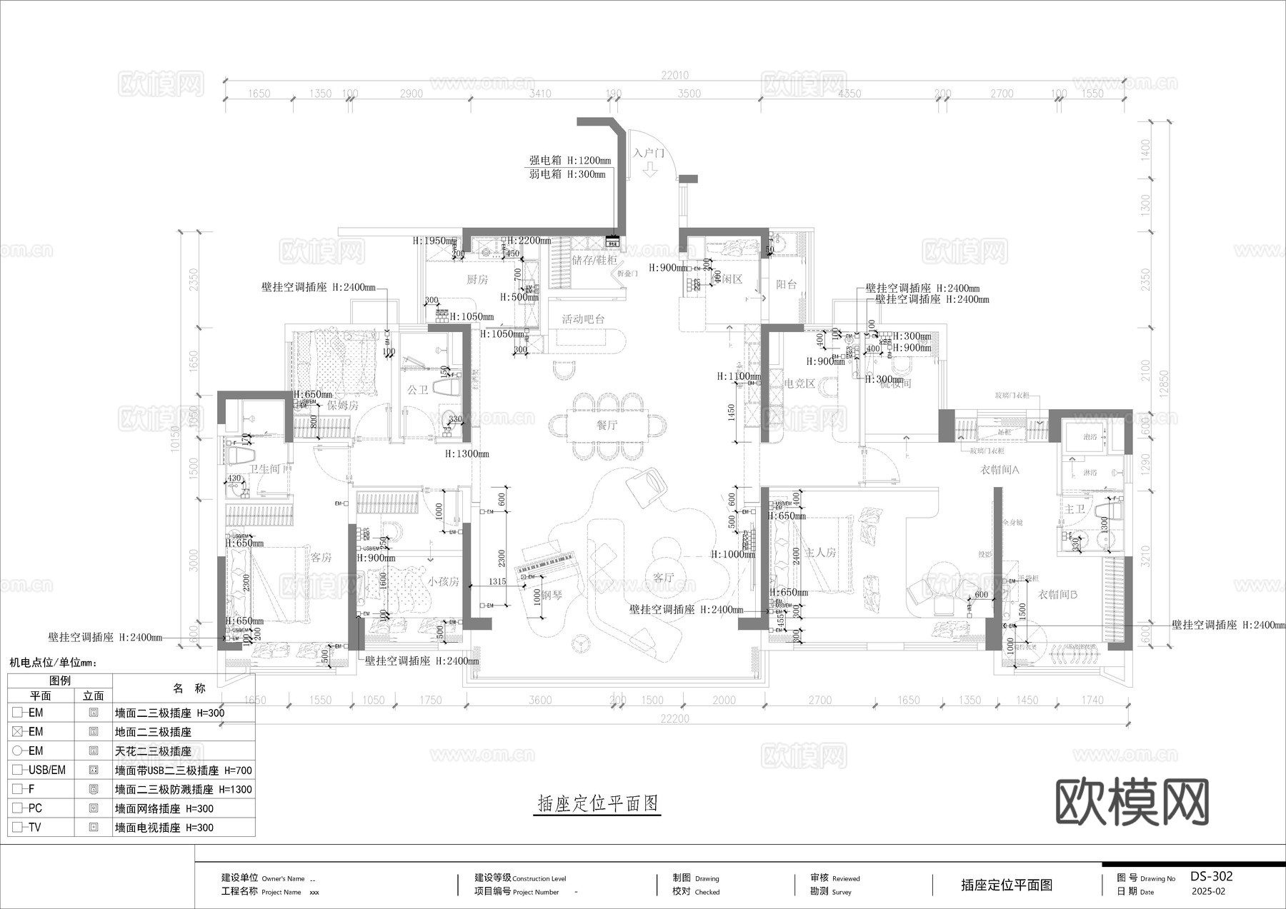
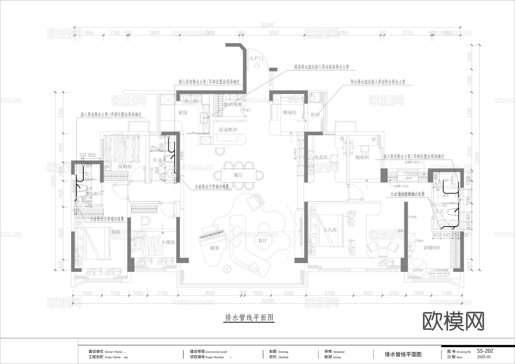
复式大平层水电施工图,完整的水路系统图 电路系统图cad施工图
ID:
5079701
复式大平层水电施工图,完整的水路系统图 电路系统图cad施工图 ID-5079701
所需欧币:
56
发布时间:
2025-10-21
下载请使用电脑登录欧模网,建议先收藏
收藏
分享
om_saO6AQ
关注
为您推荐
办公水电施工图 完整的水路系统图 电路系统图cad施工图
小酒吧水电施工图完整的水路系统图 电路系统图cad施工图
办公室水电施工图 完整的水路系统图 电路系统图cad施工图
现代二层复式室内家装CAD施工图cad施工图
200平大平层cad施工图
茶室会所水电施工图cad施工图
最新完整版spa足浴店施工图合集cad施工图cad施工图
最新完整版会所施工图合集cad施工图
最新完整版KTV施工图合集cad施工图
阳光檀苑私宅欧式大平层室内家装CAD施工图整套cad施工图cad施工图
北京欧式二层复式室内家装CAD施工图cad施工图
六层建筑施工图cad施工图
大学食堂水电暖施工图cad施工图
六层建筑施工图cad施工图
最新完整版美容医院施工图合集cad施工图
最新完整版足浴店施工图合集cad施工图
最新完整版美容院施工图合集cad施工图
最新完整版美容院施工图合集cad施工图
最新完整版美容医院施工图合集cad施工图
最新完整版欧式会所施工图合集cad施工图
点击加载更多
分享到
复制链接
保存海报
取消
请选择收藏夹
+新增收藏夹
新增收藏夹
取消
确认
退出查看