模型详情
1/8
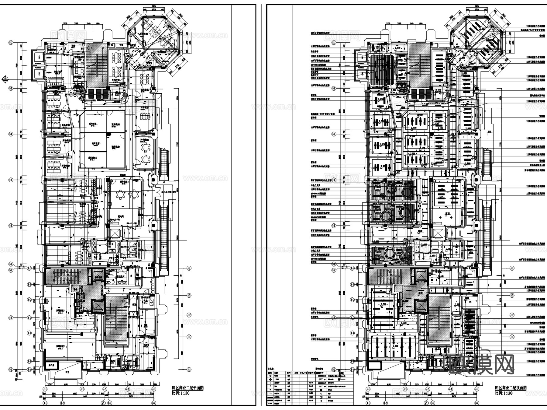
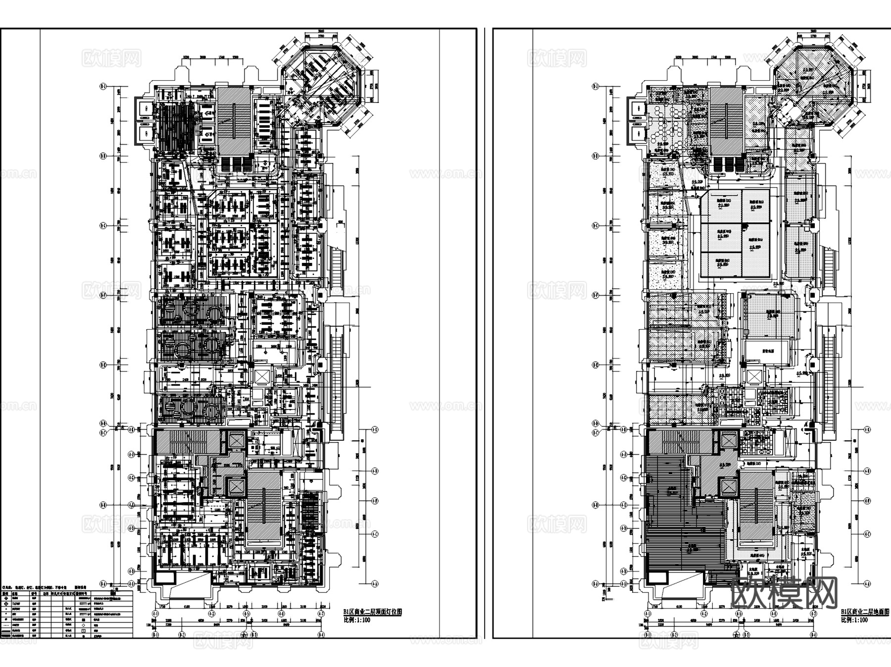
哇哈哈未来城儿童培训中心室内工装CAD施工图cad施工图
ID:
5091815
哇哈哈未来城儿童培训中心室内工装CAD施工图cad施工图 ID-5091815
所需欧币:
36
发布时间:
2025-10-23
下载请使用电脑登录欧模网,建议先收藏
收藏
分享
皮肤干燥
关注
为您推荐
Babilou早教培训中心室内工装CAD施工图cad施工图
上海华侨城宝格丽酒店室内工装CAD施工图cad施工图
IZOLA上海漫游城服装店室内工装CAD施工图cad施工图
恩施康帝娱乐城酒店室内工装CAD施工图cad施工图
星巴克咖啡台州椒江青悦城店室内工装CAD施工图整套cad施工图
赣州万象城唯典故事冰淇淋店室内工装CAD施工图cad施工图
上海元祖梦世界儿童启蒙乐园室内工装CAD施工图cad施工图
昆山花桥国际商务城酒店公寓室内工装CAD施工图cad施工图
万象城赤坂日本料理店餐厅室内工装CAD施工图cad施工图
泊然澳洲精选生活馆万象城店室内工装CAD施工图cad施工图
上海中庚漫游城大龍發记港式茶餐厅室内工装CAD施工图cad施工图
翡翠城四层别墅室内家装CAD施工图cad施工图
启皓華都食街餐厅美食城室内工装施工图cad施工图
MIEN STUNNING服装店室内工装CAD施工图cad施工图
上海超越台球俱乐部室内工装CAD施工图cad施工图
VAMPIR婚纱专卖店室内工装CAD施工图cad施工图
潘多拉珠宝店室内工装CAD施工图cad施工图
ZhouYan洲艳服饰展厅室内工装CAD施工图cad施工图
北京Fimes衣柜展厅室内工装CAD施工图cad施工图
杭州胡须先生餐厅室内工装CAD施工图整套cad施工图
点击加载更多
分享到
复制链接
保存海报
取消
请选择收藏夹
+新增收藏夹
新增收藏夹
取消
确认
退出查看