模型详情
1/8
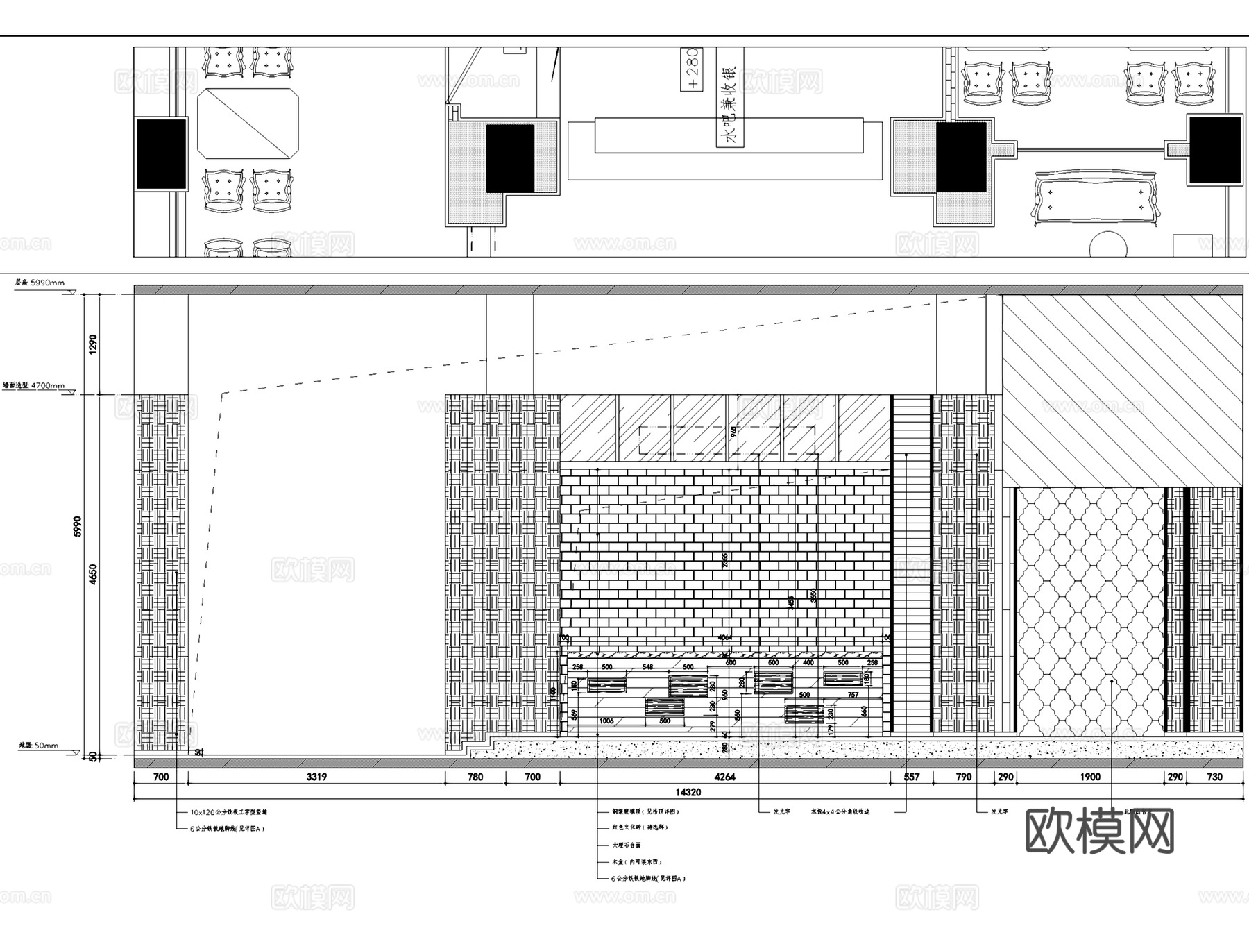
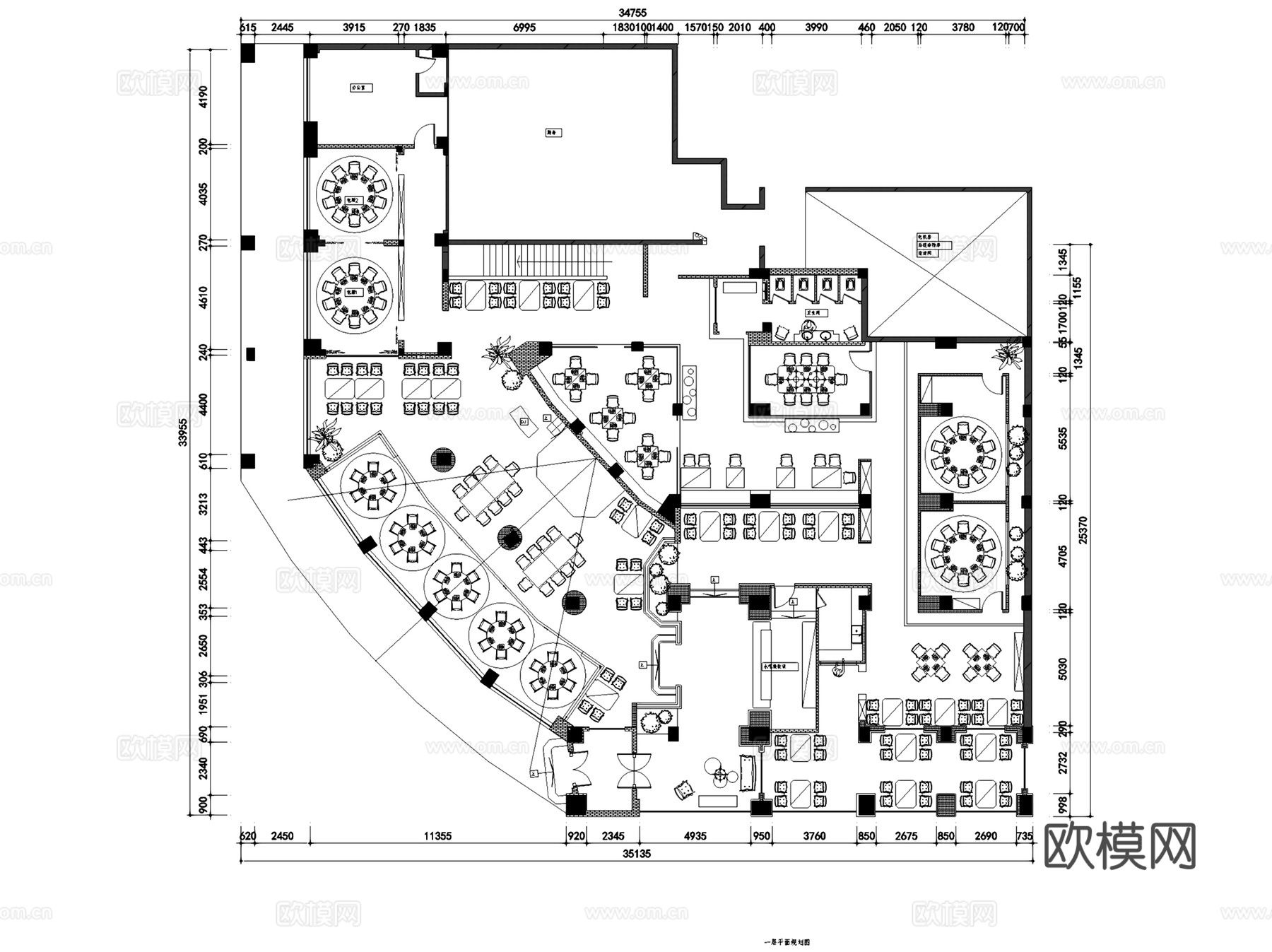
二层慢生活音乐餐厅室内工装CAD施工图cad施工图
ID:
5092631
二层慢生活音乐餐厅室内工装CAD施工图cad施工图 ID-5092631
所需欧币:
36
发布时间:
2025-10-23
下载请使用电脑登录欧模网,建议先收藏
收藏
分享
皮肤干燥
关注
为您推荐
珠海胡桃里音乐酒吧餐厅室内工装CAD施工图cad施工图
青柠一夏二层餐厅室内工装CAD施工图cad施工图
宜兴二层艺术茶餐厅1988室内工装CAD施工图整套cad施工图
新中式无锡乡水谣二层餐厅室内工装CAD施工图cad施工图
70㎡AnKoo二层服装店室内工装CAD施工图cad施工图
现代二层咖啡店室内工装CAD施工图整套cad施工图
通化二层多福肥牛火锅店室内工装CAD施工图cad施工图
二层奶茶店室内工装CAD施工图+SU模型cad施工图
上海四季酒店二层中餐厅室内工装CAD施工图整套cad施工图
大儒世家酒庄二层酒类专卖店室内工装CAD施工图cad施工图
飒飒西服新中式二层服装店室内工装CAD施工图cad施工图
曲阳英雄峰荟火锅生活馆室内工装CAD施工图整套cad施工图
杭州胡须先生餐厅室内工装CAD施工图整套cad施工图
滁州汇嘉茶餐厅室内工装CAD施工图cad施工图
二层上岛咖啡店南环新路店室内工装CAD施工图cad施工图
UIN国际名品长乐二层服装店室内工装CAD施工图整套cad施工图
二层新中式茶楼茶室会所室内工装CAD施工图整套cad施工图
现代上海创客二层办公室室内工装CAD施工图整套cad施工图
四甲大酒店餐厅室内工装CAD施工图cad施工图
福清卓越酒店大堂及餐厅室内工装CAD施工图cad施工图
点击加载更多
分享到
复制链接
保存海报
取消
请选择收藏夹
+新增收藏夹
新增收藏夹
取消
确认
退出查看