模型详情
1/8
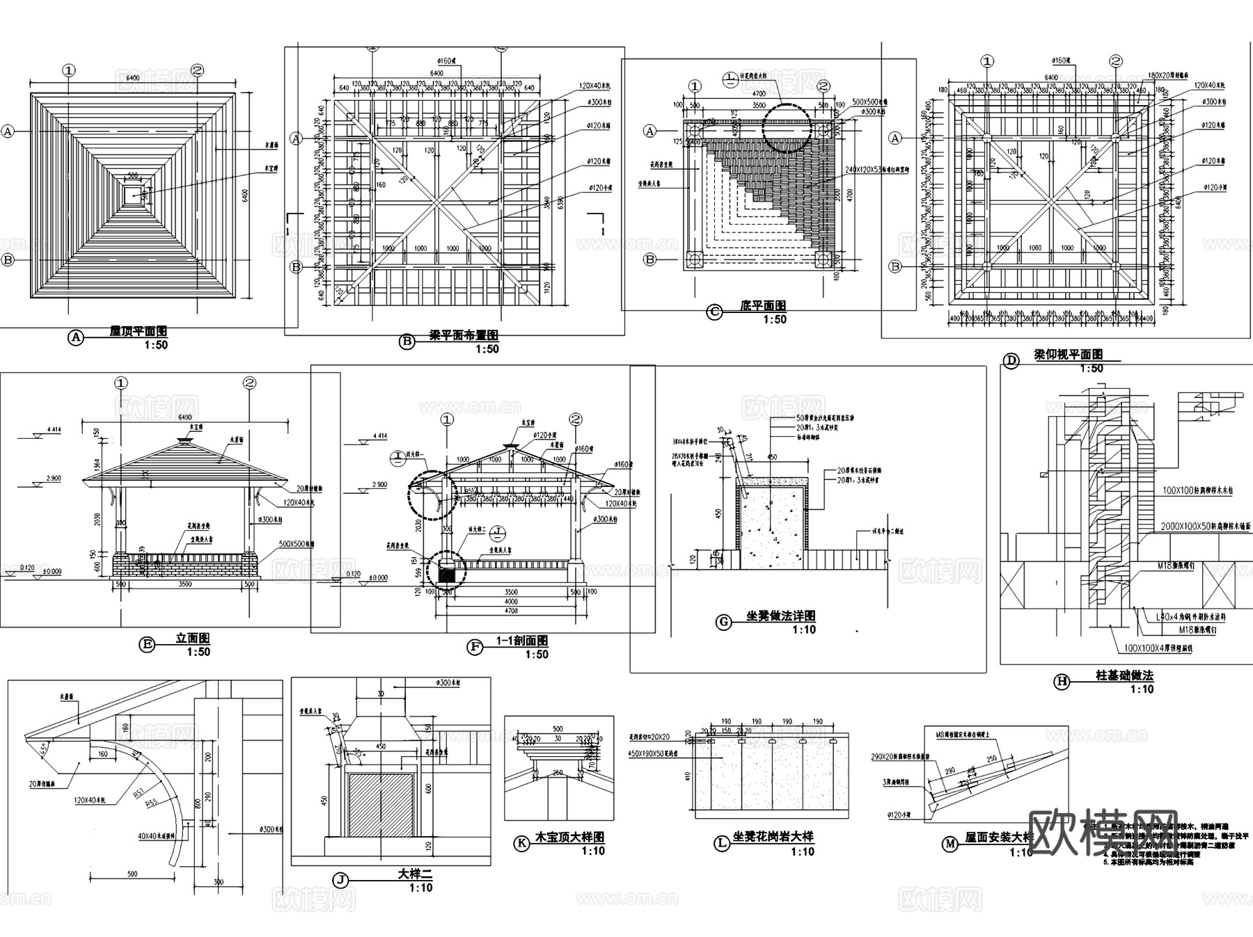
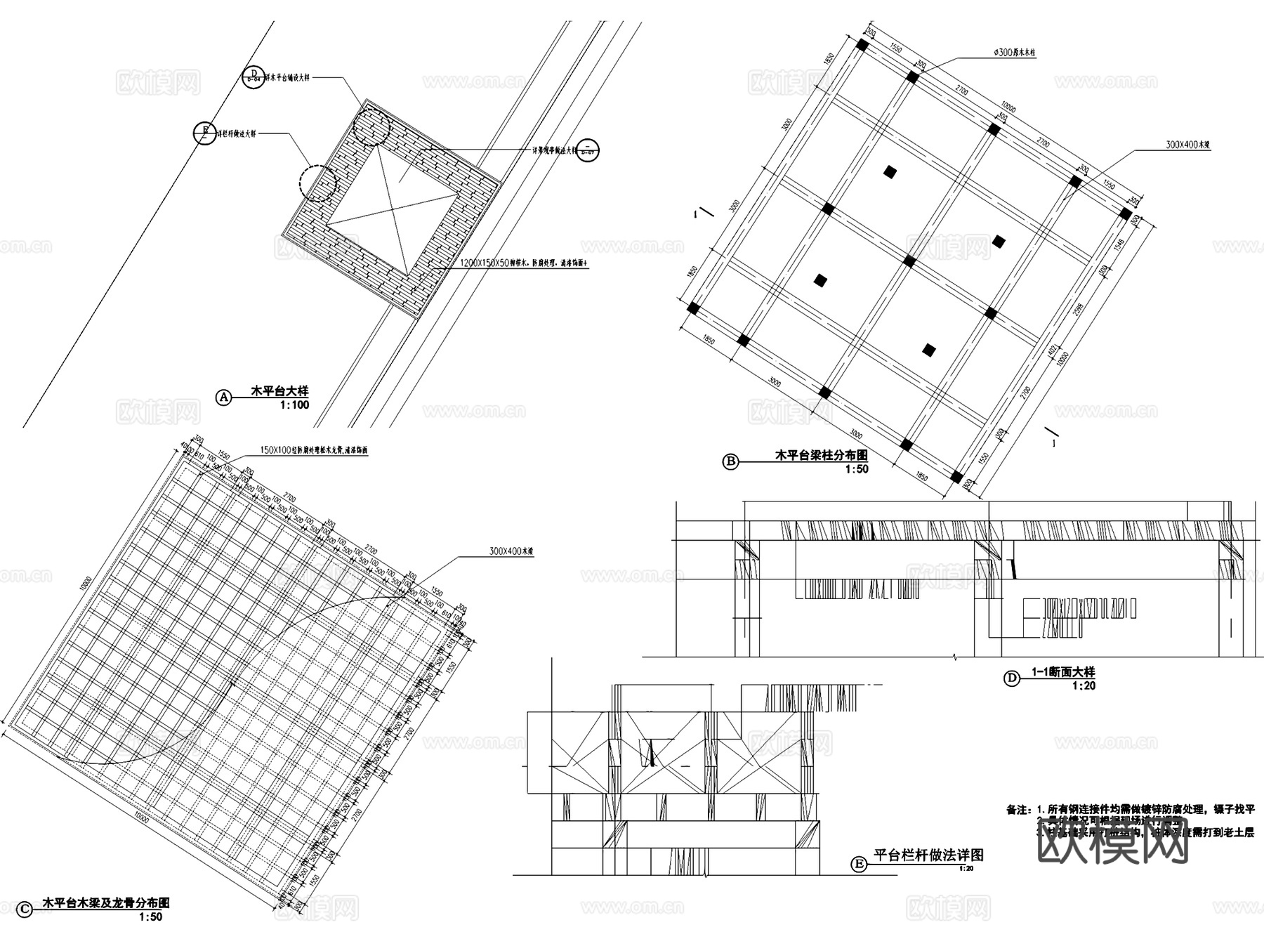
如皋东风滩生态养生园垂钓区景观CAD施工图整套cad施工图
ID:
5092809
如皋东风滩生态养生园垂钓区景观CAD施工图整套cad施工图 ID-5092809
所需欧币:
36
发布时间:
2025-10-23
下载请使用电脑登录欧模网,建议先收藏
收藏
分享
皮肤干燥
关注
为您推荐
百汇花园社区幼儿园建筑CAD施工图整套cad施工图
上海仁恒河滨花园大区景观CAD施工图合集 完整套图cad施工图
屋顶花园展示区景观全套CAD施工图cad施工图
南宁荣和公园里西区景观大区CAD施工图整套cad施工图
汉中兴元生态旅游示范区汉文化商业街建筑CAD施工图整套cad施工图
绿城北京诚园展示区示范区样板区景观CAD施工图全套cad施工图
宁乡玉屏山生态公园景观CAD施工图全套cad施工图
深圳龙华第三幼儿园建筑CAD施工图整套cad施工图
郑州苏园一号餐厅室内外工装CAD施工图整套cad施工图
深圳益田花园中式室内家装CAD施工图整套cad施工图
漳浦县前亭延源酒店景观CAD施工图整套cad施工图
园林景观生态驳岸剖面大样CAD施工图详图集cad施工图
现代滨水生态湿地公园景观CAD施工图全套cad施工图
别墅花园庭院景观设计整套CAD施工图集 13套cad施工图
庭院花园景观cad图块cad施工图
现代屋顶花园景观CAD施工图全套cad施工图
昆山颐景园中式大区景观CAD施工图全套cad施工图
中加生态示范区枫博园三层别墅室内家装CAD施工图cad施工图
成都天府软件园戴尔办公室室内工装CAD施工图整套cad施工图
长威科技软件园企业展厅室内工装CAD施工图整套+文本cad施工图
点击加载更多
分享到
复制链接
保存海报
取消
请选择收藏夹
+新增收藏夹
新增收藏夹
取消
确认
退出查看