模型详情
1/2
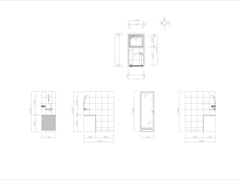
家居卫浴用品 马桶 纸巾盒花洒 坐便器cad施工图
ID:
5109800
家居卫浴用品 马桶 纸巾盒花洒 坐便器cad施工图 ID-5109800
所需欧币:
16
发布时间:
2025-10-27
下载请使用电脑登录欧模网,建议先收藏
收藏
分享
妮子1973
关注
为您推荐
现代卫浴设施 小便池 座便 器马桶 卫浴用品平立面图cad施工图
家居沐浴间 卧室卫生间立面图 卫浴用品cad施工图
蹲便器 座便器 台盆 卫浴用品平面图cad施工图
现代卫浴设施 洗手盆 台盆 卫浴用品平立面图cad施工图
卫浴洁具CAD图块cad施工图
厨房卫浴CAD图块cad施工图
手持花洒套装 淋浴花洒套装 手持淋浴器套装 花洒喷头套装cad施工图
卫浴洁具平立面CAD图块cad施工图
厨房设施 卫浴设施 水龙头 花洒 毛巾架 平立面图cad施工图
马桶台盆等CAD图库cad施工图
35个马桶CAD图块cad施工图
蹲便马桶CAD图块cad施工图
2025马桶图库cad施工图
卫浴用品 洗衣机 壁挂式洗衣机 家用洗衣机 MINI洗衣机cad施工图
淋浴房排水节点cad施工图
卫生间 淋浴间cad施工图
卫生间 淋浴间cad施工图
卫生间台盆 卫浴柜体 镜子 卫浴节点cad施工图cad施工图
现代风格家居空间家具动态CAD施工图库 47组cad施工图
淋浴房节点 淋浴间 卫生间玻璃隔断 淋浴间挡水条cad施工图
点击加载更多
分享到
复制链接
保存海报
取消
请选择收藏夹
+新增收藏夹
新增收藏夹
取消
确认
退出查看