模型详情
1/2
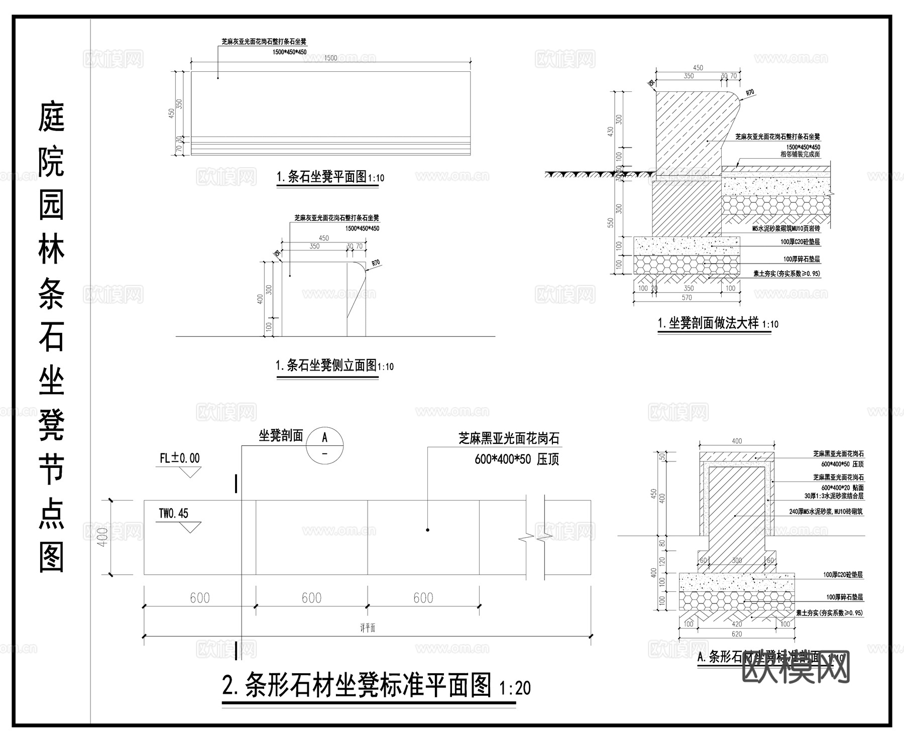
园林户外坐凳 庭院坐凳 条形石凳 坐凳节点图cad施工图
ID:
5112431
园林户外坐凳 庭院坐凳 条形石凳 坐凳节点图cad施工图 ID-5112431
所需欧币:
36
发布时间:
2025-10-28
下载请使用电脑登录欧模网,建议先收藏
收藏
分享
妮子1973
关注
为您推荐
明清家具坐凳cad施工图
园林景观户外休闲坐凳CAD扩初施工图集 26套cad施工图
园林景观座凳坐凳树池节点大样CAD施工详图集 27套cad施工图
园林景观座椅座凳坐凳CAD施工详图集 104套cad施工图
现代异形特色景观座椅坐凳 CAD施工图集 8套cad施工图
现代简约常规景观座椅坐凳 CAD施工图集 21套cad施工图
圆矩形树池景观坐凳坐椅CAD施工图集 122套cad施工图
景观座椅座凳坐凳大样CAD施工详图集 5套cad施工图
景观坐凳 透光混凝土座椅 透光混凝土 景观座椅 景观树池cad施工图
庭院节点 庭院大样图 庭院通用做法详图 园林通用做法大样图cad施工图
公园树池园林景观节点CADcad施工图
园林景观常用节点大样CAD施工图集 13套cad施工图
铝格栅墙面造型节点图 施工图 节点 结构节点图cad施工图
屋檐节点施工图CADcad施工图
园林树池 庭院花池 石凳木凳异形凳 景观小品平面图cad施工图
园林景观小节点CAD施工详图集 6套cad施工图
现代风庭院CAD施工图cad施工图
景观庭院CAD施工图cad施工图
园林景观水景墙节点CAD施工图集 5套cad施工图
地坪节点CADcad施工图
点击加载更多
分享到
复制链接
保存海报
取消
请选择收藏夹
+新增收藏夹
新增收藏夹
取消
确认
退出查看