模型详情
1/5
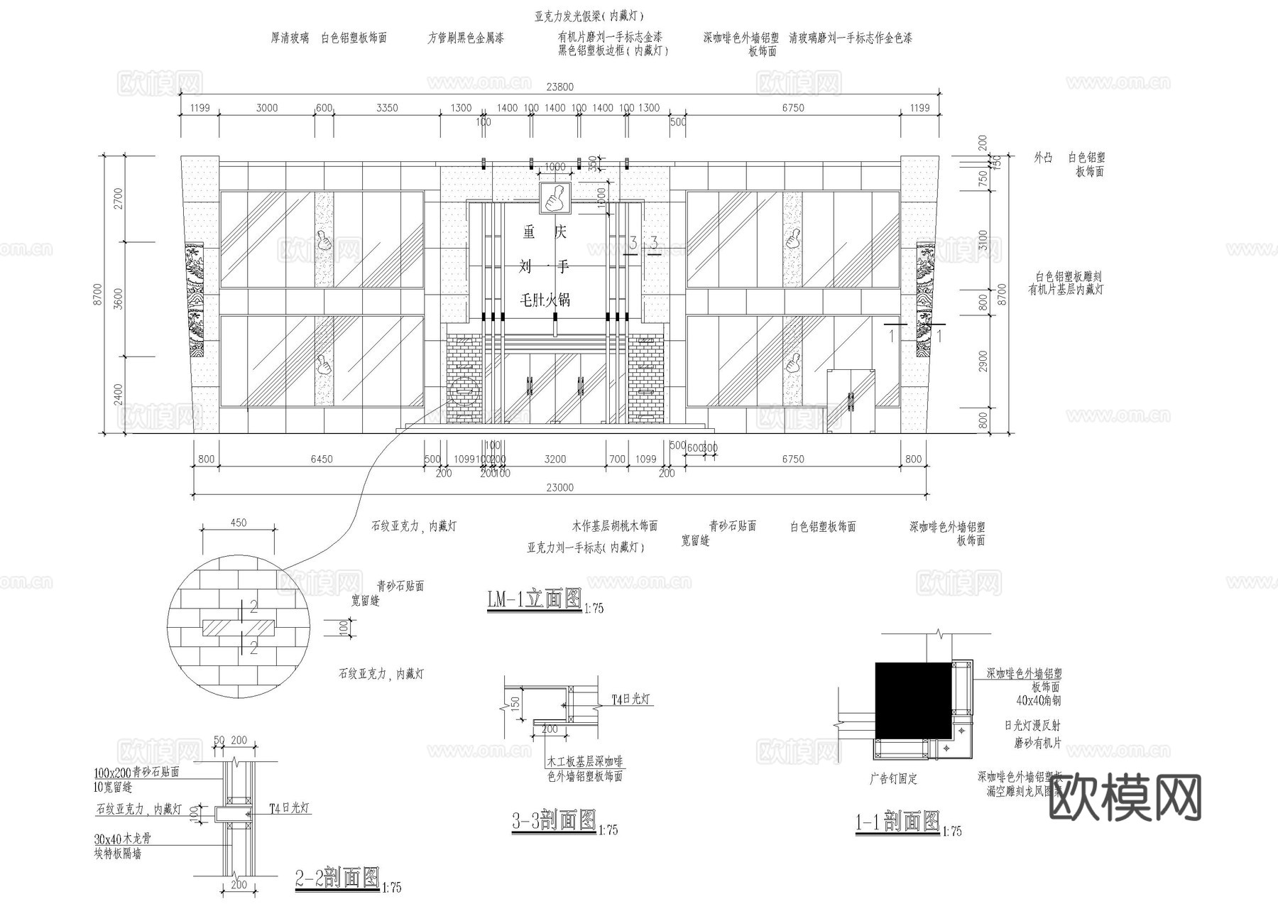
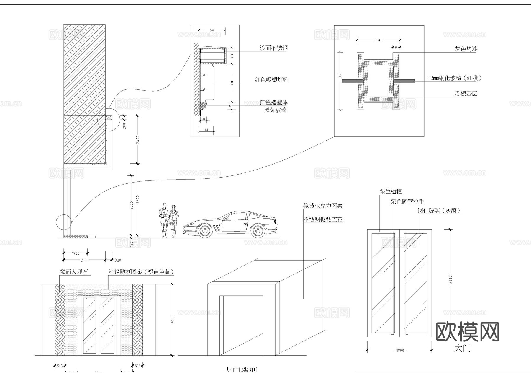
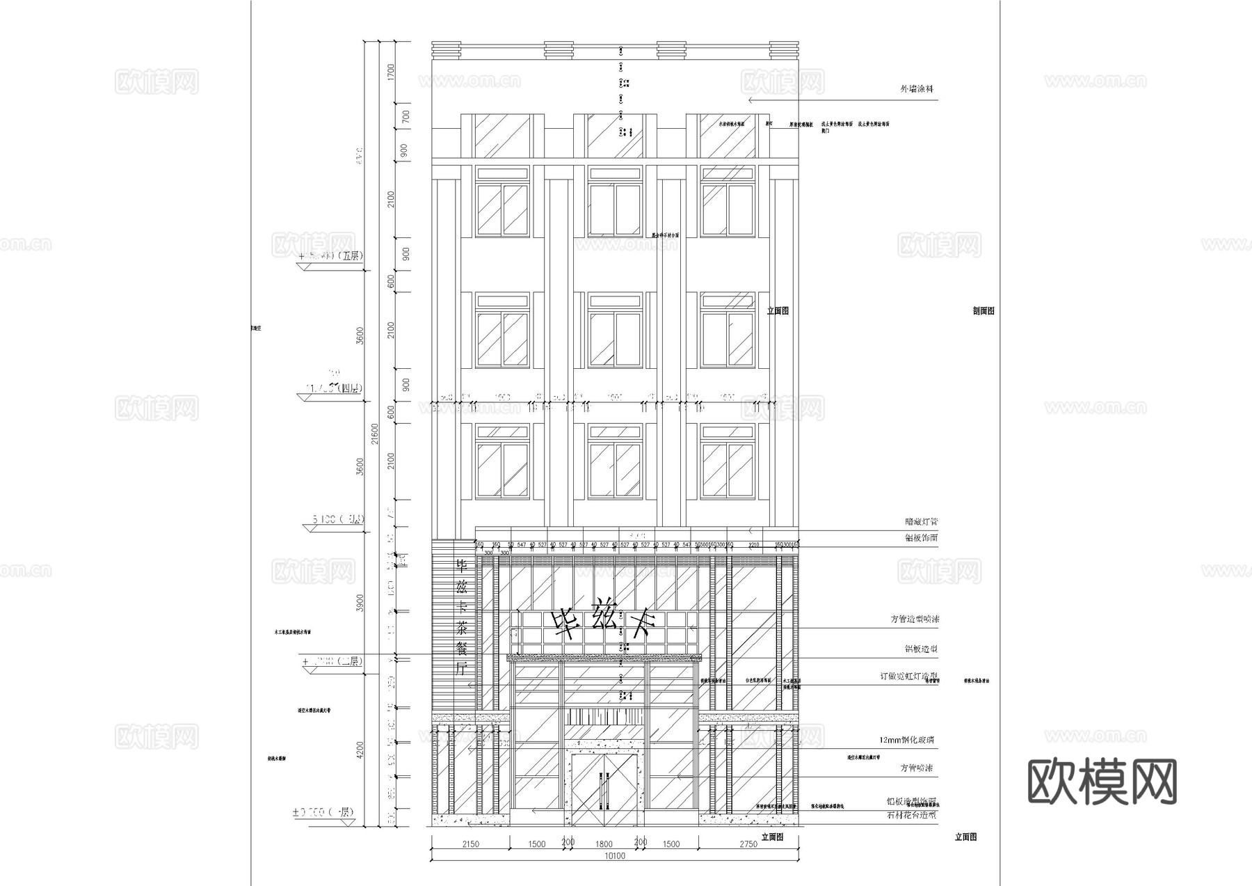
20套火锅店门头施工图cad施工图
ID:
5121244
20套火锅店门头施工图cad施工图 ID-5121244
所需欧币:
56
发布时间:
2025-10-31
下载请使用电脑登录欧模网,建议先收藏
收藏
分享
LL设计
关注
为您推荐
火锅店门头施工图cad施工图
现代火锅店门头施工图cad施工图
火锅店施工图cad施工图
火锅店平面施工图cad施工图
中式火锅店施工图cad施工图
火锅店平面施工图cad施工图
2800㎡火锅店施工图cad施工图
18套火锅店施工图cad施工图
茶餐厅门头施工图cad施工图
中式餐饮门头施工图cad施工图
20套自助餐厅火锅店CAD施工图cad施工图
火锅店平面图cad施工图
现代火锅店 1500㎡ 大型连锁火锅 施工图cad施工图
中式餐厅门头招牌施工图cad施工图
60套火锅店餐厅餐饮空间饭店CAD施工图cad施工图
最新12套 火锅店 中餐厅 施工图合集cad施工图
最新13套 火锅店 中餐厅 施工图合集cad施工图
鼎悦坊火锅店餐厅室内工装CAD施工图整套cad施工图
最新6套 火锅店 中餐厅 施工图合集cad施工图
最新6套 火锅店 中餐厅 施工图合集cad施工图
点击加载更多
分享到
复制链接
保存海报
取消
请选择收藏夹
+新增收藏夹
新增收藏夹
取消
确认
退出查看