模型详情
1/8
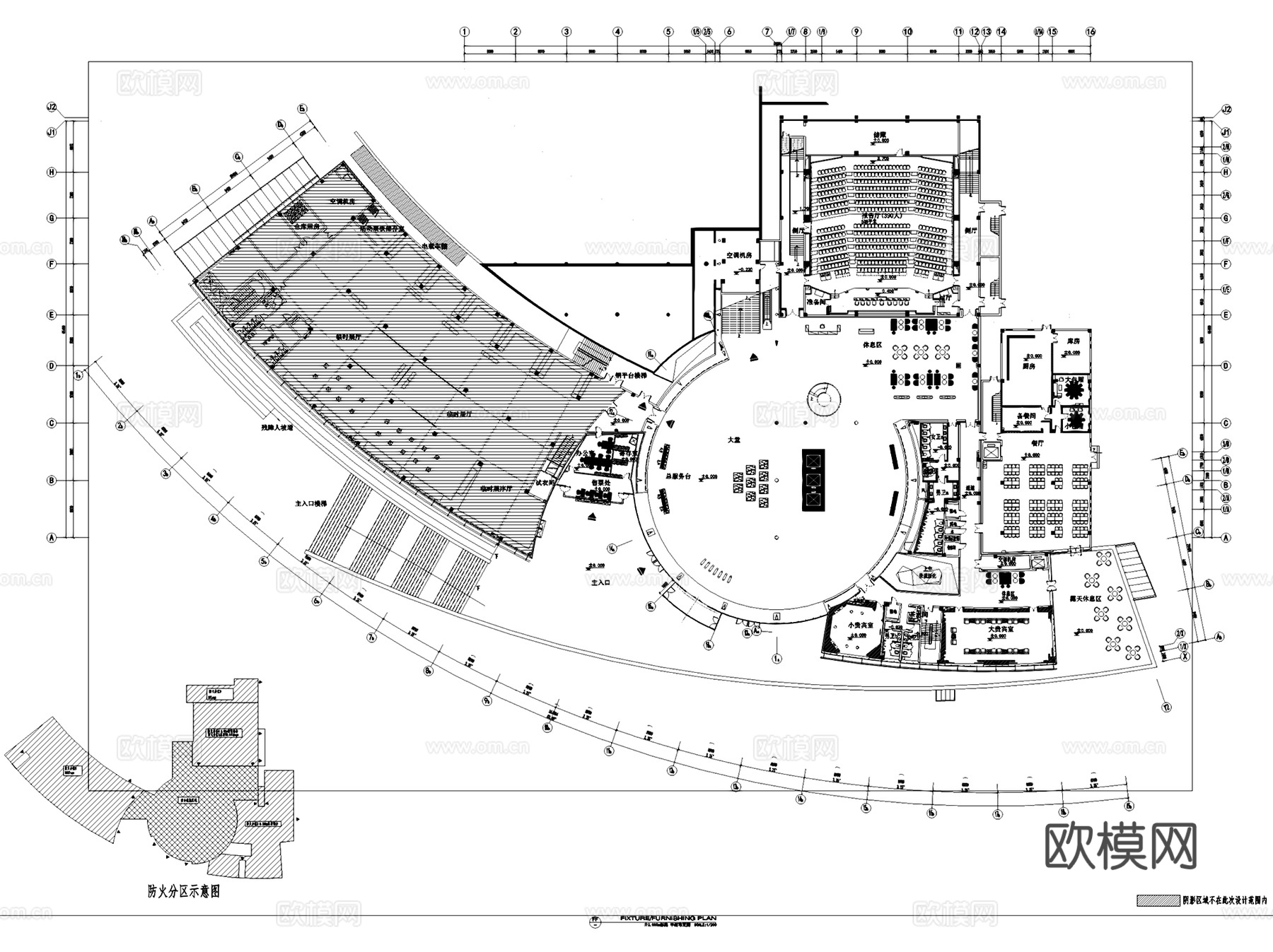
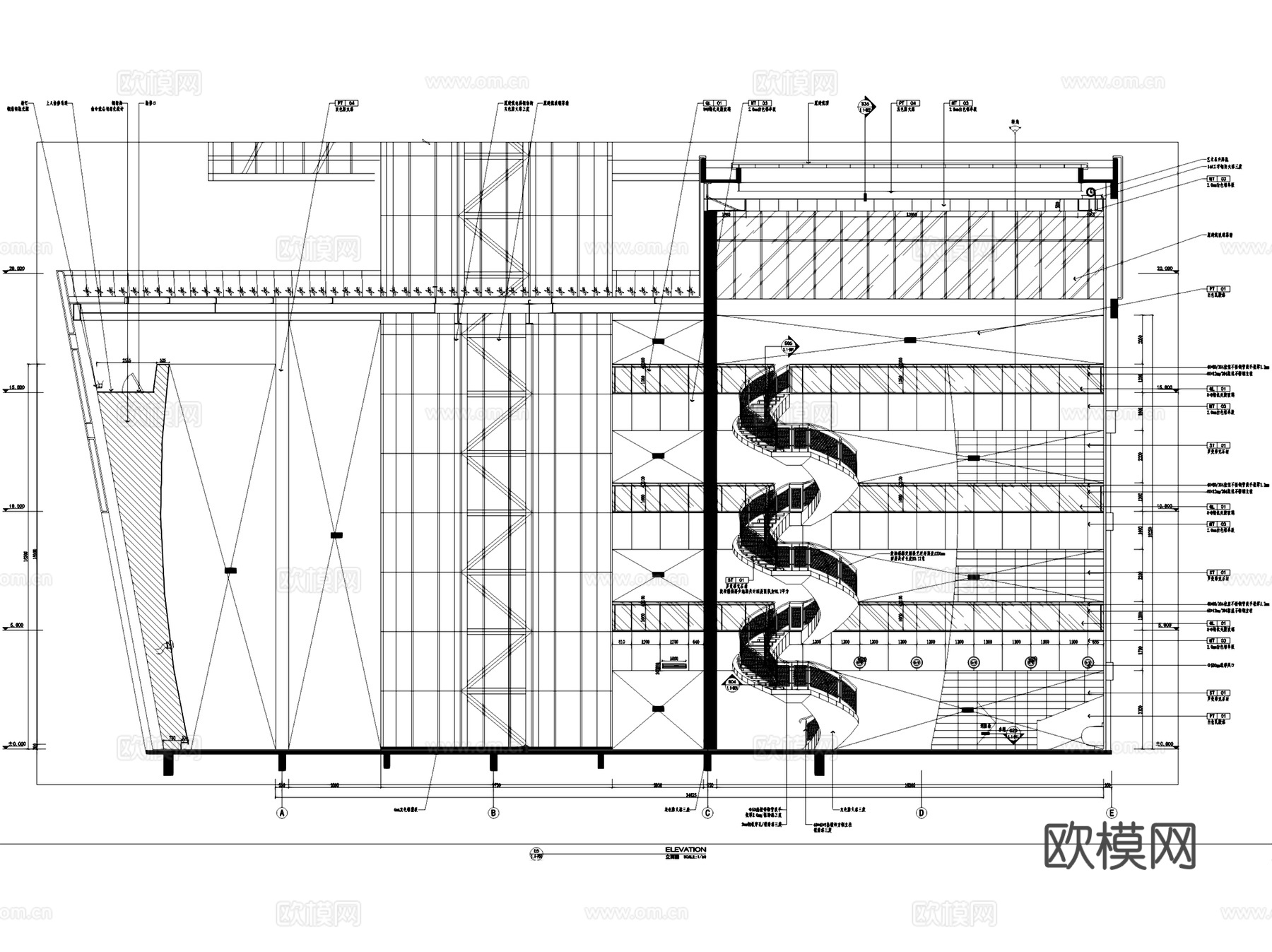
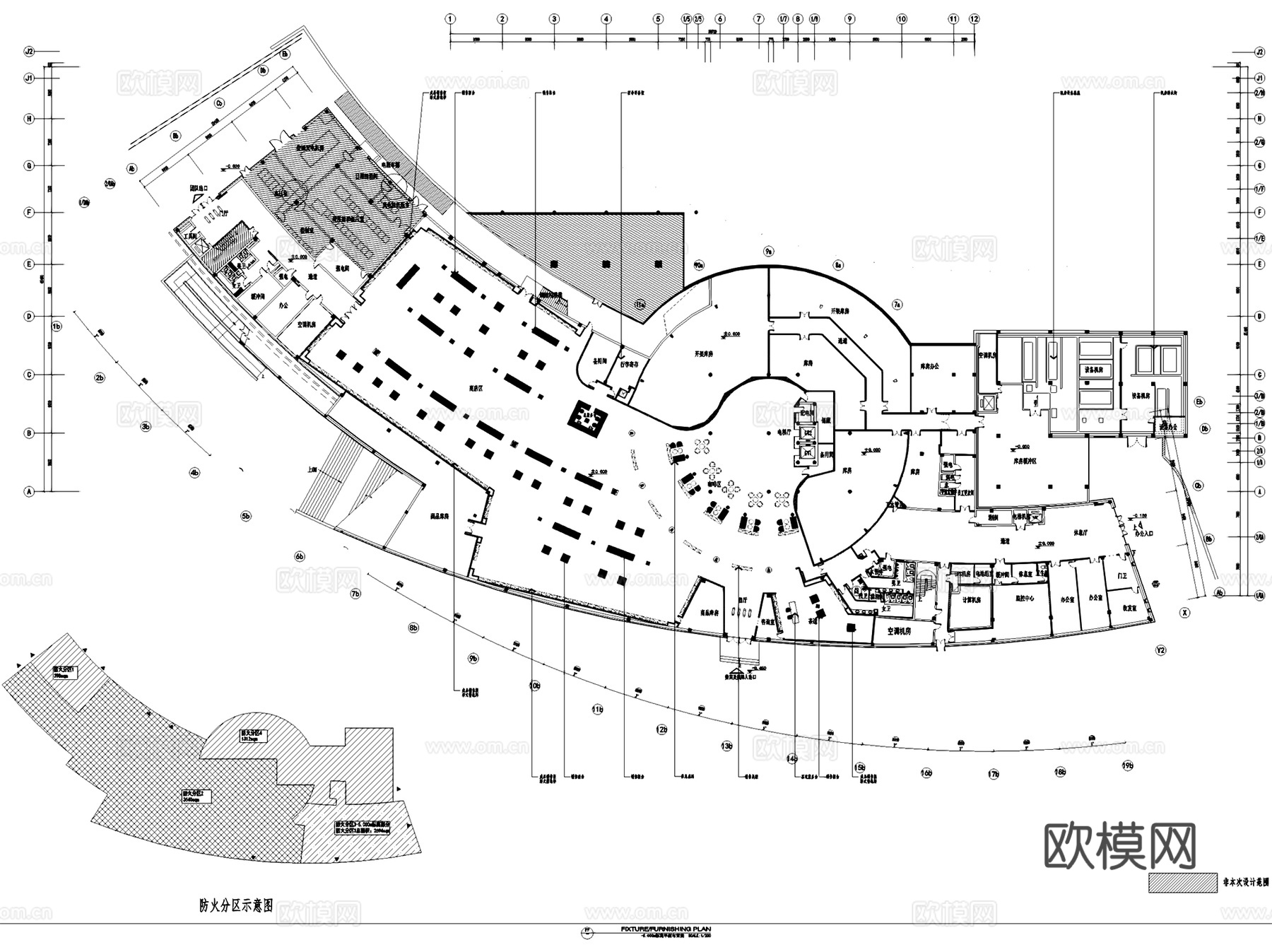
景德镇中国陶瓷博物馆展厅装修室内工装CAD施工图整套cad施工图
ID:
5126180
景德镇中国陶瓷博物馆展厅装修室内工装CAD施工图整套cad施工图 ID-5126180
所需欧币:
36
发布时间:
2025-11-03
下载请使用电脑登录欧模网,建议先收藏
收藏
分享
皮肤干燥
关注
为您推荐
凯乐福玻璃北京展厅室内工装CAD施工图整套cad施工图
INVSON应尚服饰展厅室内工装CAD施工图整套+文本cad施工图
重庆轨道集团李子坝展厅室内工装CAD施工图整套cad施工图
福州凯乐福皮居展厅室内工装CAD施工图整套cad施工图
宁乡美妆谷一期展厅室内工装CAD施工图整套cad施工图
美迪克家具装饰品展厅室内工装CAD施工图整套cad施工图
长威科技软件园企业展厅室内工装CAD施工图整套+文本cad施工图
供电局客服中心节能展厅改造室内工装CAD施工图整套cad施工图
银河国际中心蔚来汽车展厅室内工装CAD施工图整套cad施工图
临平玉园销售展厅售楼处室内工装CAD施工图整套cad施工图
苏州博物馆新馆室内工装CAD施工图cad施工图
ZhouYan洲艳服饰展厅室内工装CAD施工图cad施工图
北京Fimes衣柜展厅室内工装CAD施工图cad施工图
Boutique新乡韩文店服装店室内工装CAD施工图整套cad施工图
南宁海王生命与健康科普馆室内工装CAD施工图整套cad施工图
浙江华茂艺术教育博物馆建筑室内CAD施工图整套cad施工图cad施工图
武汉广场IMM尹默服装店室内工装CAD施工图整套cad施工图
南京MINI MOOK句容店服装店室内工装CAD施工图整套cad施工图
广东连南瑶族博物馆展厅室内平面CAD施工图cad施工图
黄山城市展示馆展陈装饰室内工装CAD施工图整套+文本cad施工图
点击加载更多
分享到
复制链接
保存海报
取消
请选择收藏夹
+新增收藏夹
新增收藏夹
取消
确认
退出查看