模型详情
1/8
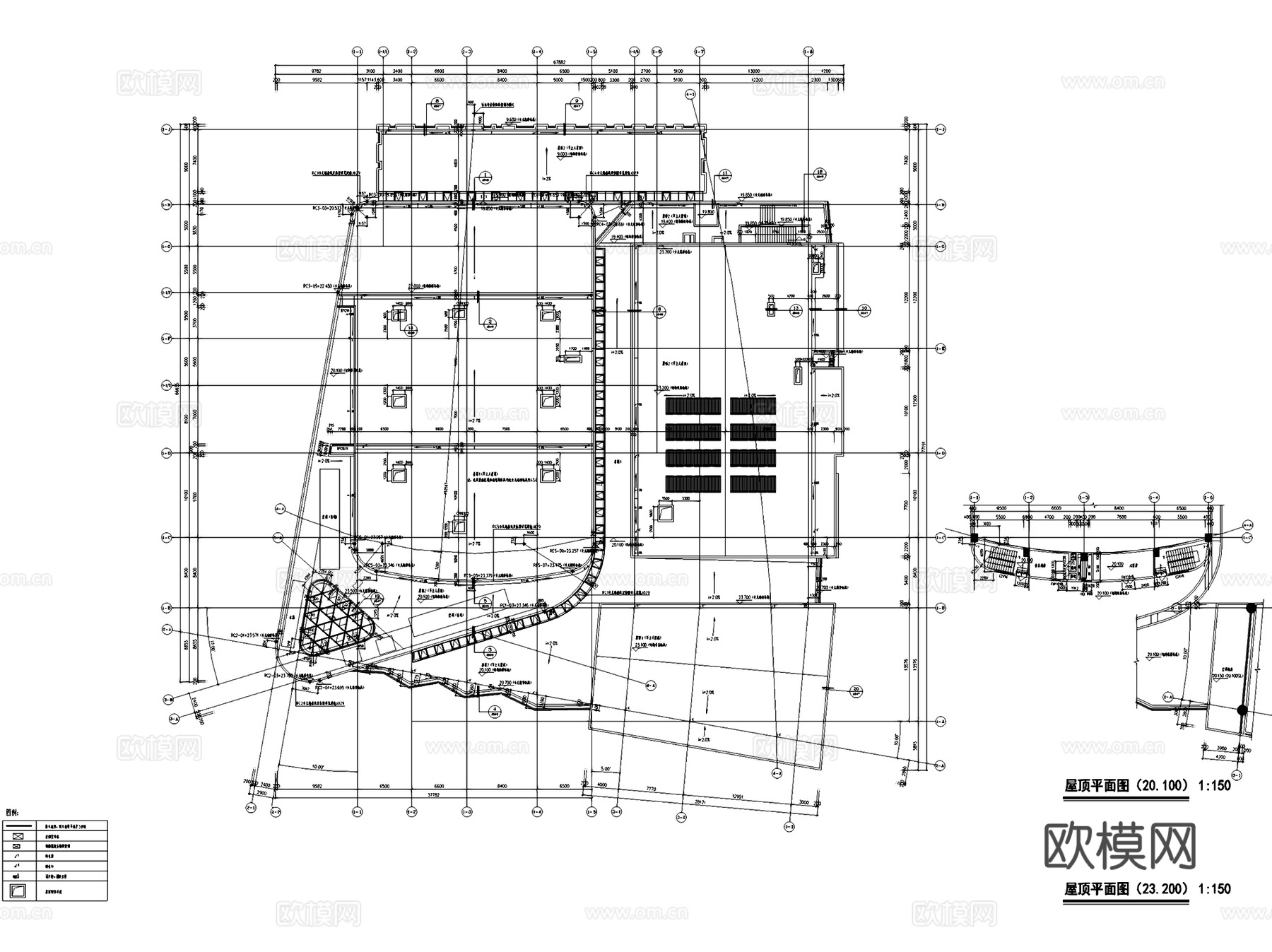
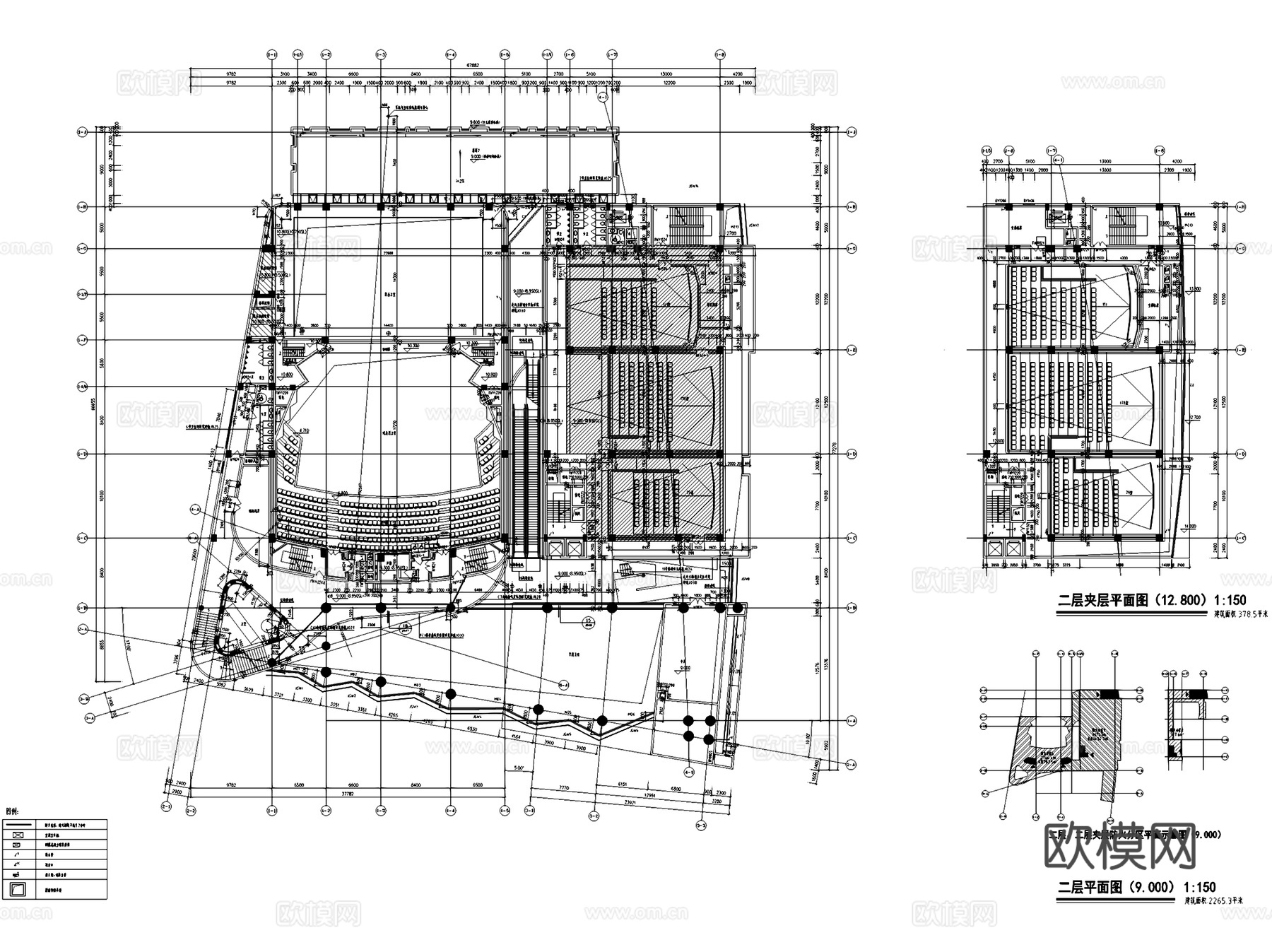
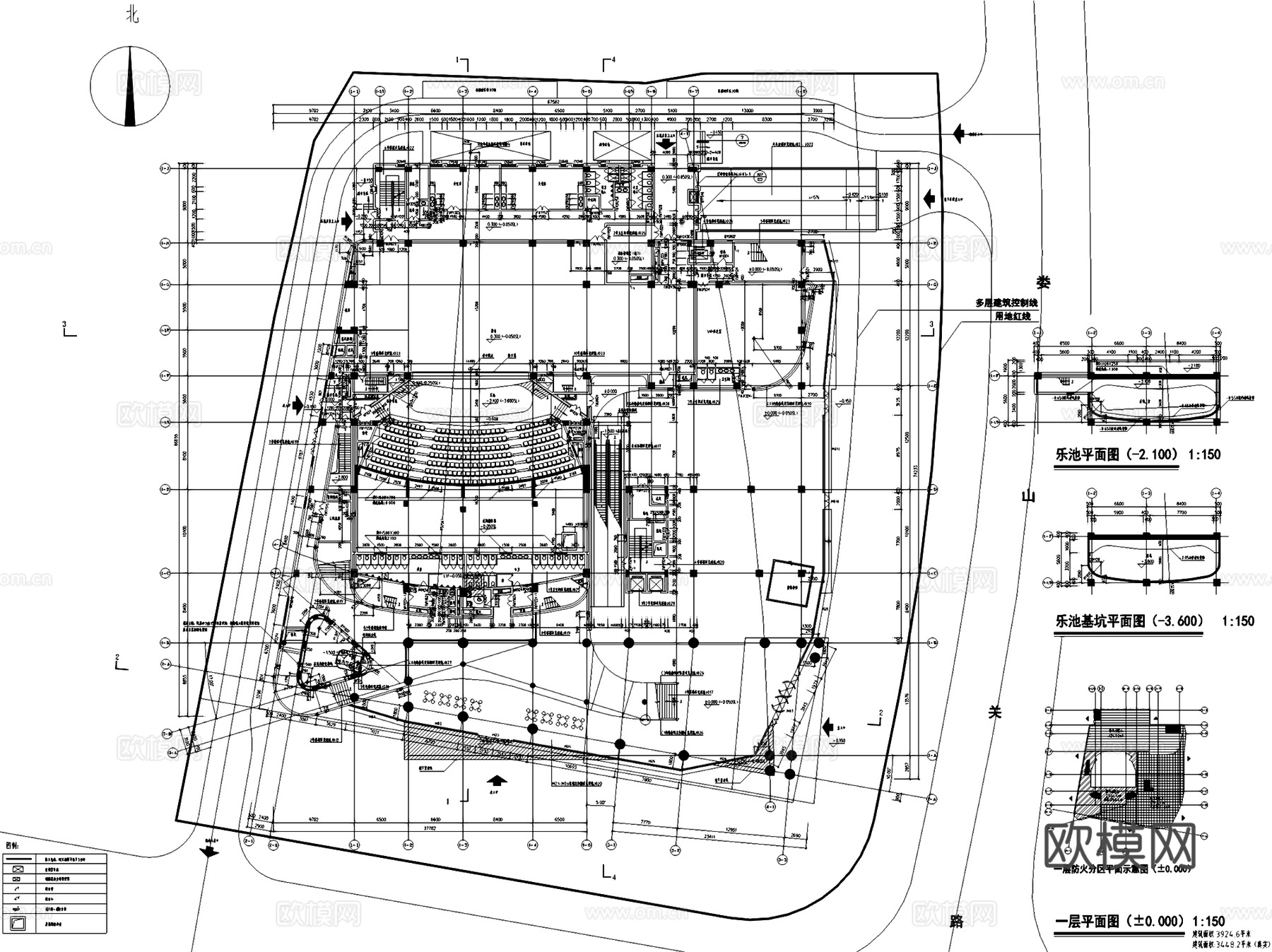
上海虹桥文化艺术中心天山电影院改扩建建筑CAD施工图cad施工图
ID:
5126191
上海虹桥文化艺术中心天山电影院改扩建建筑CAD施工图cad施工图 ID-5126191
所需欧币:
36
发布时间:
2025-11-03
下载请使用电脑登录欧模网,建议先收藏
收藏
分享
皮肤干燥
关注
为您推荐
虹桥文化艺术中心 电影院改造室内工装CAD施工图+文本cad施工图
上海鲁能艾迪逊酒店改造建筑CAD施工图cad施工图
电影院平面施工图cad施工图
电影院影厅施工图cad施工图
深圳龙岗横岗人民医院改扩建建筑CAD施工图整套+文本cad施工图
眉山万达影城大堂施工图cad施工图
上海创智天地商业办公景观CAD施工图全套+文本cad施工图
上海超越台球俱乐部室内工装CAD施工图cad施工图
别墅建筑cad施工图
墓地建筑cad施工图
上海中山医院门急诊医疗综合楼建筑CAD施工图全套cad施工图
现代电影院过道施工图cad施工图
电影院大堂公区施工图cad施工图
电影院巨幕影厅施工图cad施工图
电影院卫生间施工图cad施工图
运动体育馆建筑施工图cad施工图cad施工图
上海华侨城宝格丽酒店室内工装CAD施工图cad施工图
上海葛洲坝大厦办公室室内工装CAD施工图cad施工图
上海徐汇万科中心办公景观CAD施工图全套+文本cad施工图
虹桥花园3幢一单元601跃层室内家装CAD施工图cad施工图
点击加载更多
分享到
复制链接
保存海报
取消
请选择收藏夹
+新增收藏夹
新增收藏夹
取消
确认
退出查看