模型详情
1/8
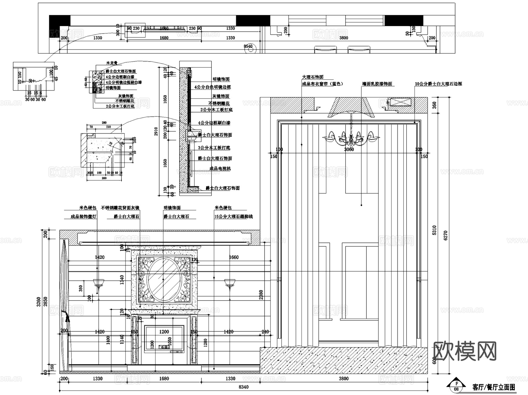
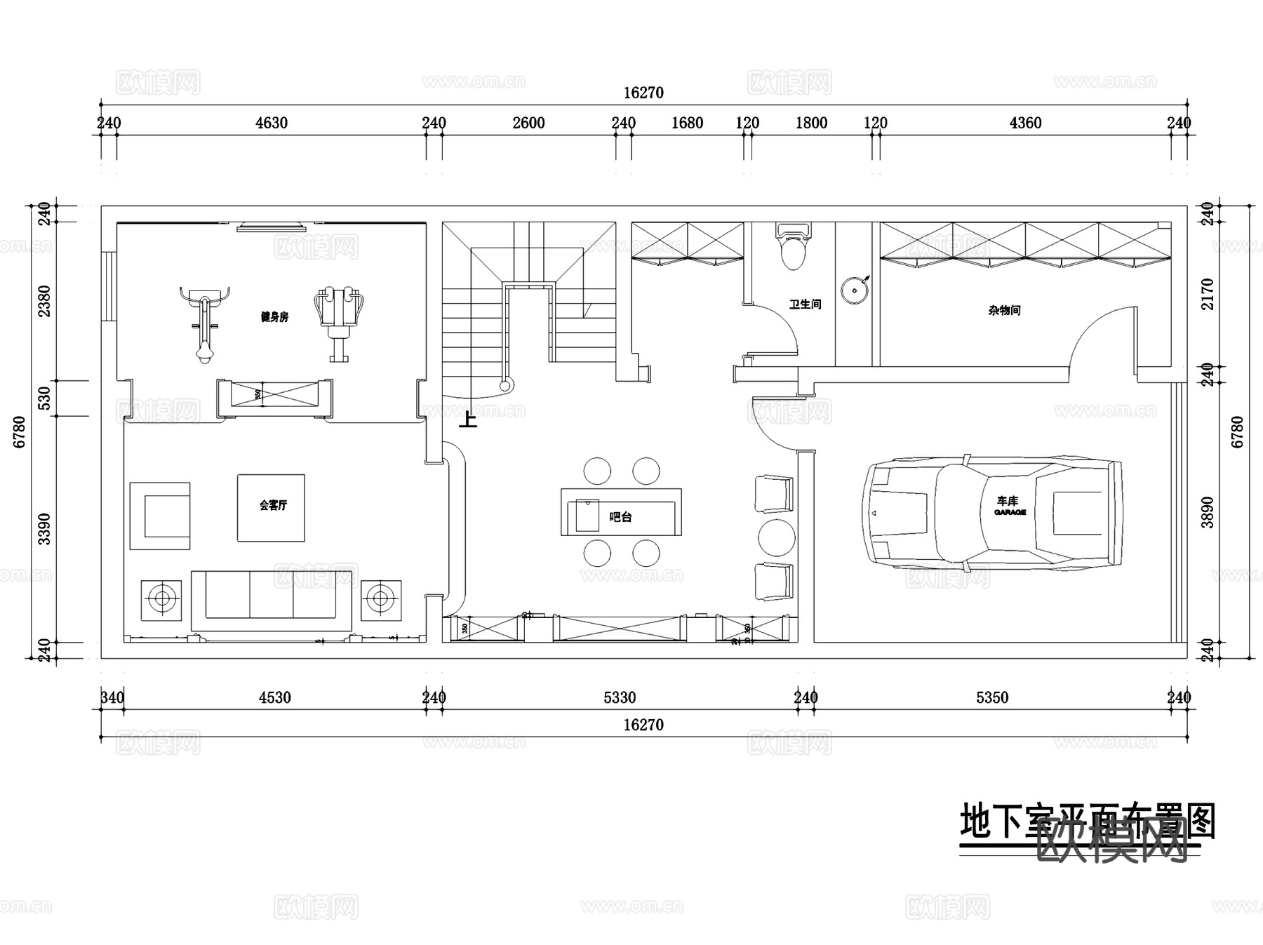
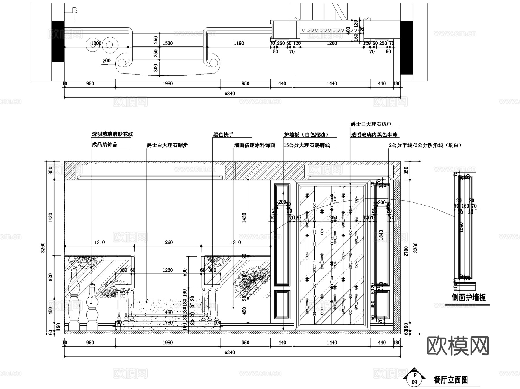
衡山一号新古典三层别墅室内家装CAD施工图cad施工图
ID:
5126329
衡山一号新古典三层别墅室内家装CAD施工图cad施工图 ID-5126329
所需欧币:
36
发布时间:
2025-11-03
下载请使用电脑登录欧模网,建议先收藏
收藏
分享
皮肤干燥
关注
为您推荐
美式新古典三层别墅室内家装CAD施工图cad施工图
三层别墅室内家装CAD施工图cad施工图
中式三层别墅室内家装CAD施工图cad施工图
欧式三层别墅室内家装CAD施工图cad施工图
古典三层别墅室内家装CAD施工图cad施工图
欧式三层别墅室内家装CAD施工图cad施工图
公园道一号A区1#204三层别墅室内家装CAD施工图cad施工图
现代简欧三层别墅室内家装CAD施工图cad施工图
欧式三层别墅私宅室内家装CAD施工图cad施工图
小汤山现代三层别墅室内家装CAD施工图cad施工图
山西中式三层别墅室内家装CAD施工图cad施工图
意大利风三层别墅室内家装CAD施工图整套cad施工图
现代三层私宅别墅室内家装CAD施工图cad施工图
中式三层别墅私宅室内家装CAD施工图cad施工图
上海美式三层别墅私宅室内家装CAD施工图cad施工图
相遇海和院三层别墅室内家装CAD施工图cad施工图
中式三层别墅私宅室内家装CAD施工图整套cad施工图
上海欧式三层别墅庄园室内家装CAD施工图cad施工图
扬州现代三层别墅私宅室内家装CAD施工图cad施工图
欧式三层6A#别墅室内家装CAD施工图cad施工图
点击加载更多
分享到
复制链接
保存海报
取消
请选择收藏夹
+新增收藏夹
新增收藏夹
取消
确认
退出查看