模型详情
1/2
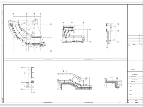
庭院广场园路台阶做法 石材台阶 木平台做法详图cad施工图
ID:
5146730
庭院广场园路台阶做法 石材台阶 木平台做法详图cad施工图 ID-5146730
所需欧币:
36
发布时间:
2025-11-11
下载请使用电脑登录欧模网,建议先收藏
收藏
分享
妮子1973
关注
为您推荐
木平台 台阶 CAD施工图cad施工图
景观台阶踏步坡道草坡草阶剖面做法工艺详图节点CAD素材图库cad施工图
园路及停车场做法cad施工图
室外台阶无障碍坡道汽车坡道踏步做法剖面详图节点大样CAD素材cad施工图
塑木平台 端头 台阶 CAD施工图cad施工图
墙地相接工艺做法CAD详图集cad施工图
透水沥青铺装做法详图cad施工图
墙面与顶面材质相接工艺做法CAD详图集cad施工图
景观桥汀园桥园林步行道庭院汀步做法工艺详图节点CAD素材图库cad施工图
景观喷泉园林喷泉广场喷泉剖面做法工艺详图节点CAD素材图库cad施工图
台阶 坡道cad施工图
景观庭院灯柱剖面做法工艺详图节点CAD素材图库cad施工图
木平台 文字标识 台阶坐凳 LED灯带 CAD施工图cad施工图
吊顶工艺做法节点大样CAD施工详图集cad施工图
地平做法工艺节点大样CAD施工详图集cad施工图
天花吊顶反支撑做法节点详图CAD施工图cad施工图
庭院围墙别墅围墙栏杆护栏剖面做法工艺详图节点CAD素材图库cad施工图
庭院围墙别墅围墙栏杆护栏剖面做法工艺详图节点CAD素材图库cad施工图
门详图房门推门剖面做法工艺详图节点CAD素材图库cad施工图
天花吊顶剖面做法工艺详图节点CAD素材图库cad施工图
点击加载更多
分享到
复制链接
保存海报
取消
请选择收藏夹
+新增收藏夹
新增收藏夹
取消
确认
退出查看