模型详情
1/8
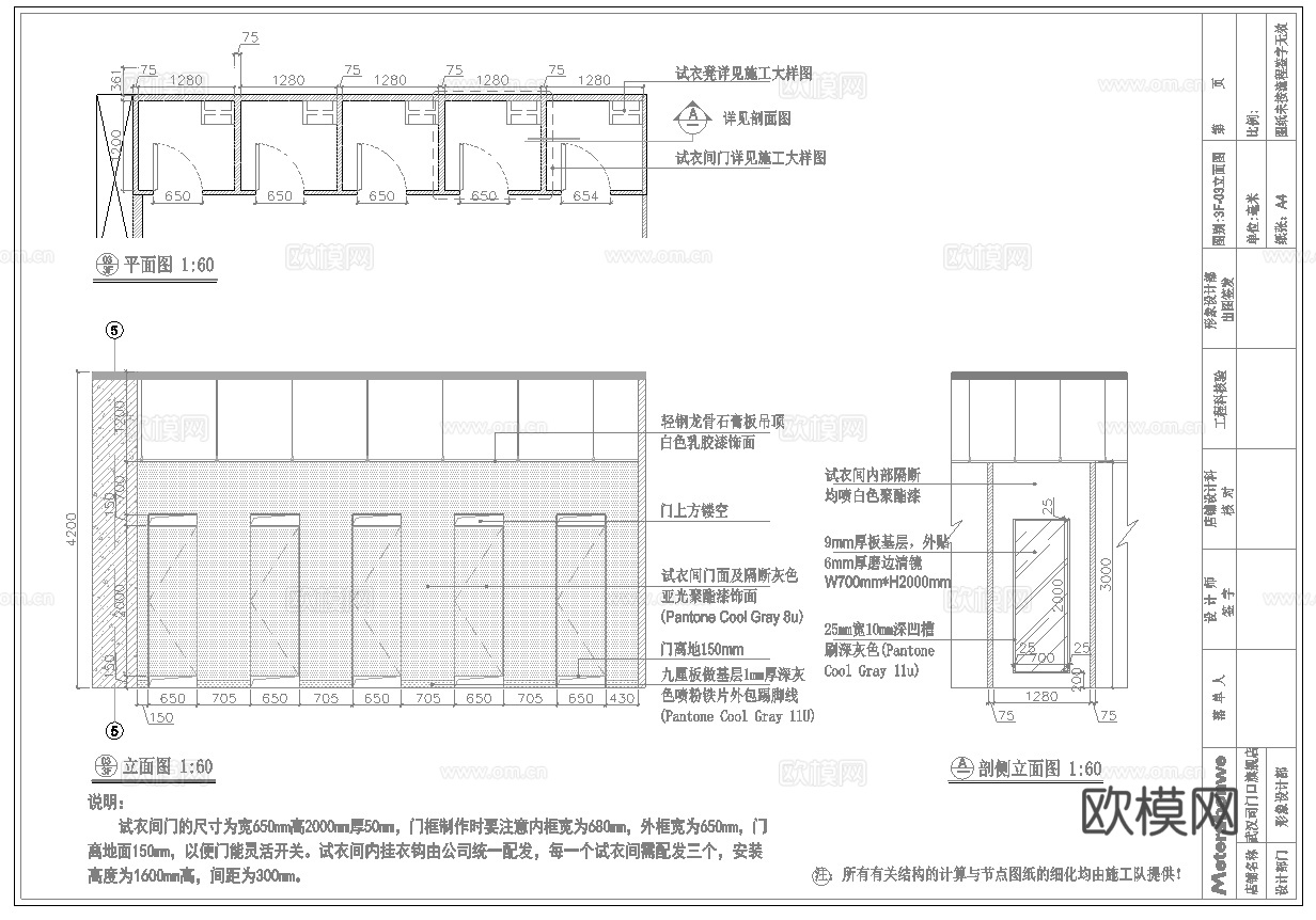
最新4套全套 公司展厅 陶瓷展厅 服装展厅 施工图 效果图合cad施工图
ID:
5168437
最新4套全套 公司展厅 陶瓷展厅 服装展厅 施工图 效果图合cad施工图 ID-5168437
所需欧币:
86
发布时间:
2025-11-18
下载请使用电脑登录欧模网,建议先收藏
收藏
分享
微笑丶纯属礼貌
关注
为您推荐
茶叶展厅 最新全套施工图 效果图合集cad施工图
文创展厅 最新全套施工图 效果图合集cad施工图
文创展厅 最新全套施工图 效果图合集cad施工图
史馆展厅 最新全套施工图 效果图合集cad施工图
华为智能展厅 最新全套施工图 效果图合集cad施工图
最新5套 企业展厅 玩具展厅 施工图合集cad施工图cad施工图
农产品 土特产展厅 最新全套施工图 效果图合集cad施工图
文化展厅 博物馆 非遗展厅 企业展厅 民俗展厅 展厅图库cad施工图
文化展厅 最新平面施工图合集cad施工图
土特产展厅 花艺店 最新全套施工图 效果图合集cad施工图
文创展厅 最新平面施工图合集cad施工图
文创店展厅 最新平面施工图合集cad施工图
民俗文化展厅平面图 瓷器展厅cad施工图cad施工图
茶文化展厅 企业展厅平面图cad施工图
科技展厅 核能展厅平面图cad施工图
科技展厅cad施工图
党建展厅平面图 清正廉洁展厅cad施工图
党建展厅平面图 清正廉洁展厅cad施工图
党建展厅平面图 清正廉洁展厅cad施工图
最新全套 服装店 施工图合集cad施工图
点击加载更多
分享到
复制链接
保存海报
取消
请选择收藏夹
+新增收藏夹
新增收藏夹
取消
确认
退出查看